EasyManua.ls Logo

Lenze E82EV302K4C - Page 452

Lenze E82EV302K4C
588 pages
Print Icon
To Next Page IconTo Next Page
To Next Page IconTo Next Page
To Previous Page IconTo Previous Page
To Previous Page IconTo Previous Page
Loading...
Code table
10
Function library
10.20
L
10.20-40
EDS82EV903-1.0-11/2002
Code IMPORTANTPossible settings
No. SelectionLenzeName
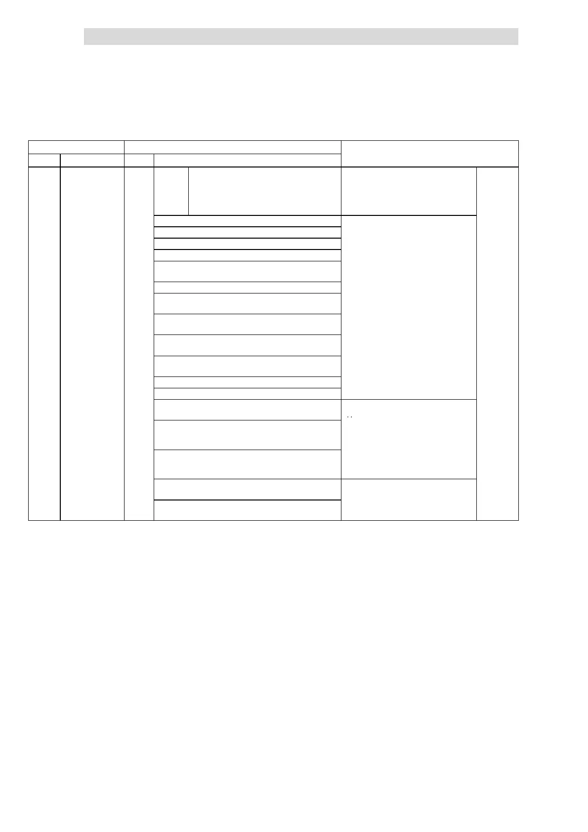
C0421*
v
(cont.)
Possible an alog signals for C0421
Selection 9 ... 25 correspond to the digital
functions of the re lay output K1 (C0008) or
the digital o utput A1 (C0117):
LOW = 0
HIGH = 1023
^
10.12-10
9 Ready for operation (DCTRL1-RDY)
10 TRIP fault message (DCTRL1-TRIP)
11 Motor is running (DCTRL1-RUN)
12 Motor is running / CW rotation (DCTRL1-RUN-CW)
13 Motor is running / CCW rotation
(DCTRL1-RUN-CCW)
14 Output frequency = 0 (DCTRL1-NOUT=0)
15 Frequency setpoint reached
(DCTRL1-RFG1=NOUT)
16 Value has fallen below frequency t hresho ld Q
min
(f < C0017) (PCTRL1-QMIN)
17 I
max
limit reached (MCTRL1-IMAX)
C0014 = - 5- : Torque setpoint reached
18 Overtemperature (ϑ
max
-5°C)
(DCTRL1-OH-WARN)
19 TRIP or Q
min
or pulse inhibit (IMP) (DCTRL1-IMP)
20 PTC warning (DCTRL1-PTC-WARN)
21 Apparent motor current < current threshold
(DCTRL1-IMOT<ILIM)
Belt monitoring
Apparent motor current = C0054
22 Apparent motor current < current threshold and
output frequenc y > frequency threshold Q
min
(DCTRL1-(IMOT<ILIM)-QMIN)
p
p
Current t hreshold = C0156
Frequency threshold Q
min
= C0017
23 Apparent motor current < current threshold and
RFG 1: Input = output
(DCTRL1-(IMOT<ILIM)-RFG-I= 0)
24 Warning motor phase failure
(DCTRL1-LP1-WARN)
25 Minimum output frequency reached (f C0010)
(PCTRL1-NMIN)
Show/Hide Bookmarks

Table of Contents

Related product manuals