EasyManua.ls Logo

Lenze E82EV302K4C - Fig. 15.2-1 Principle Wiring of a Pressure Regulation

Lenze E82EV302K4C
588 pages
Print Icon
To Next Page IconTo Next Page
To Next Page IconTo Next Page
To Previous Page IconTo Previous Page
To Previous Page IconTo Previous Page
Loading...
Pressure control
15
Application examples
15.2
L
15.2-4
EDS82EV903-1.0-11/2002
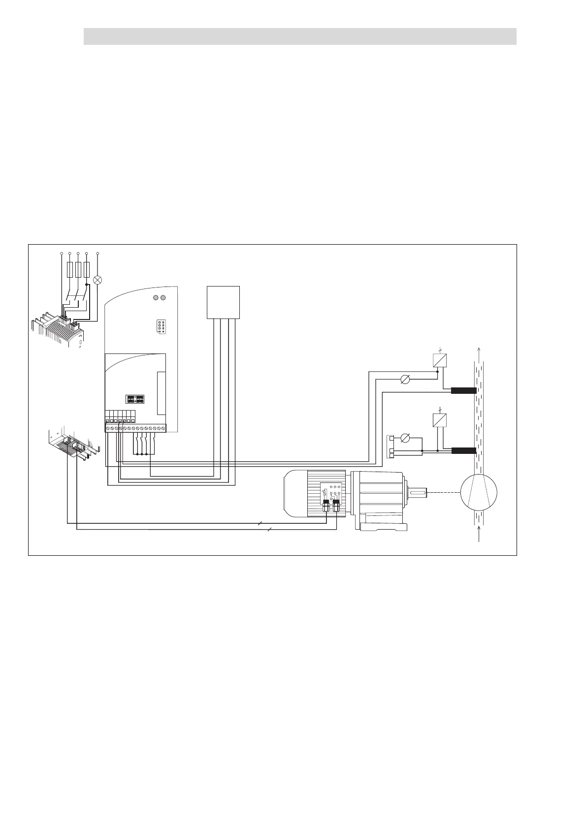
Jumper positions at application I/O
l
Jumper A in position 7-9 (actual pressure value 0 ... 10 V at X3/1U)
l Remove jumper B (setpoint selection via master current at X3/2I), (see
C0034)
l Jumper C in position 3-5 (actual pressure value output as current signal at
X3/62)
l Jumper D in position 2-4 or 4-6, since X3/63 is not assigned.
PE
W
2
U
2
V
2
U
PE
1
V
1
W
1
K12
K14
2
4
0...20mA
0 ... 20 mA
+
+
-
-
0 ... +10 V
0 ... +10 V
SPS
GND
JOG1
TRIP
4 ... 20 mA
L1
F1
K1
L2
L3
N
+-
~
2
+-
~
2
UP
DOWN
H/Re
CINH
62
1U
7
A2A1 7 7
A4
59 20 28 E1
E2
E3 E4
E5 E6
1U 1I
2U
2I
62
63 9
Application-I/O
1
2
T
2
T
1
Fig. 15.2-1 Principle wiring of a pressure regulation
Mains contactor
Analog display for actual pressure value
External power supply
2 conductor pressure sensor
3 conductor pressure sensor
, : use one pressure sensor only
Pump
Light on = ready for operation

Table of Contents

Related product manuals