EasyManua.ls Logo

Lenze E94AZMP0084 - Befestigungsraster

Lenze E94AZMP0084
Print Icon
To Next Page IconTo Next Page
To Next Page IconTo Next Page
To Previous Page IconTo Previous Page
To Previous Page IconTo Previous Page
Loading...
Mechanische Installation
Befestigungsraster
5
20
EDK94AZMP DE/EN/FR/ES/IT 8.0
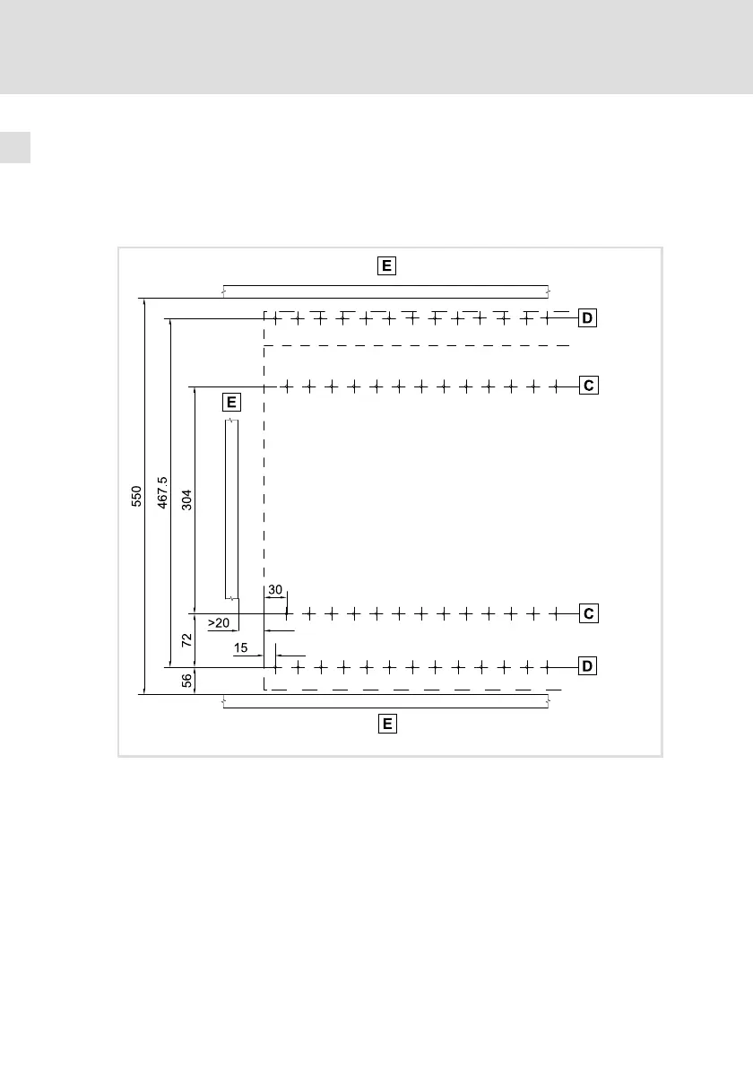
5.3 Befestigungsraster
Verwendung mit 9400
Wir empfehlen zur Befestigung der Geräte ein M5−Gewindelochraster in die
Montageplatte einzubringen. Durch diese Vorbereitung sind die Geräte einfach
zu befestigen. Die Gerätegrößen 1, 2, ... n sind so direkt anreihbar.
SSP94NF311
Abb. 5−3 Abmessungen [mm]
Lochraster für Montagesockel (Gerätegröße 1 bis 3)
Lochraster für andere Gerätegrößen oder Filter im Unterbau (nur Single Drive)
Kabelkanal
Verwendung mit i700
Bei Verwendung mit der Reihe i700 ist die Befestigung im Lochraster nicht mög-
lich. Die Befestigungslöcher sind entsprechend der Maßzeichnung links neben
dem Versorgungsmodul E70ACPS... zu setzen.

Table of Contents

Related product manuals