EasyManua.ls Logo

Lenze E94AZMP0084 - Mounting Grid

Lenze E94AZMP0084
Print Icon
To Next Page IconTo Next Page
To Next Page IconTo Next Page
To Previous Page IconTo Previous Page
To Previous Page IconTo Previous Page
Loading...
Mechanical installation
Mounting grid
5
48
EDK94AZMP DE/EN/FR/ES/IT 8.0
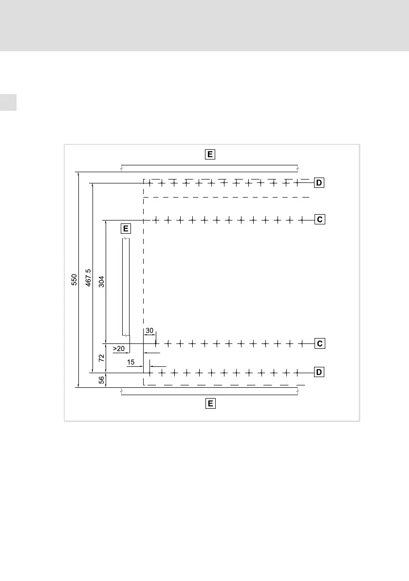
5.3 Mounting grid
Use with 9400
We recommend to provide the mounting plate with a grid pattern of M5
threaded holes for attaching the devices. This preparation enables easy
attachment of the devices, and the device sizes 1, 2, ... n can thus be mounted
directly adjacent to each other.
SSP94NF311
Fig. 5−3 Dimensions [mm]
Hole pattern for installation backplane (device sizes 1 to 3)
Hole pattern for other device sizes or filters mounted below (only Single Drive)
Cable duct
Use with i700
For use in connection with the i700 series, fixing in the grid hole pattern is not
possible. The fixing holes are to be placed on the left next to the E70ACPS...
power supply module according to the dimensioned drawing.

Table of Contents

Related product manuals