EasyManua.ls Logo

Lenze ESMD223L4TXA - Page 18

Lenze ESMD223L4TXA
22 pages
Print Icon
To Next Page IconTo Next Page
To Next Page IconTo Next Page
To Previous Page IconTo Previous Page
To Previous Page IconTo Previous Page
Loading...
Lenze 13466184 EDBSL03 v20 EN, DE, FR, IT, ES 17
Commissioning
Code Possible Settings
IMPORTANT
No. Name
Lenze
Selection
c06
Holding time -
automatic DC
injection brake
(Auto-DCB)
0.0 0.0 {s} 999
0.0 = not active
999 = continuous brake
Automatic motor braking below 0.1 Hz
by means of motor DC current for the
entire holding time (afterwards: U, V,
W inhibited)
Conrm motor suitability for use with
DC braking
c08
Analog output
scaling
100 1.0 999 When 10 VDC is output at terminal 62, it
will equal this value (see c11)
c11
Conguration -
Analog output (62)
0 0 None
1 Output frequency 0-10 VDC Use c08 to scale signal
Example: c11 = 1 and c08 = 100:
At 50 Hz, terminal 62 = 5 VDC
At 100 Hz, terminal 62 = 10 VDC
2 Output frequency 2-10 VDC
3 Load 0-10 VDC
4 Load 2-10 VDC
5 Dynamic braking Only used with DB option
c17
Conguration -
Digital output (A1)
0 Output is energized if
0 Ready
1 Fault
2 Motor is running
3 Motor is running - CW rotation
4 Motor is running - CCW rotation
5 Output frequency = 0 Hz
6 Frequency setpoint reached
7 Frequency threshold (C17)
exceeded
8 Current limit (motor or generator
mode) reached
9 Feedback within min/max alarm
(d46, d47) range
10 Feedback outside min/max alarm
(d46, d47) range
c20
I
2
t switch-off
(thermal motor
monitoring)
100 30 {%} 100
100% = smd rated output current
Triggers 0C6 fault when motor
current exceeds c20 for too long
Correct setting = (motor nameplate
current) / (smd output current rating)
X 100%
Example: motor = 6.4 amps and smd
= 7.0 amps; correct setting = 91%
(6.4 / 7.0 = 0.91 x 100% = 91%)
WARNING!
Do not set above rated motor current as listed on the motor dataplate. Does not
provide full motor protection!
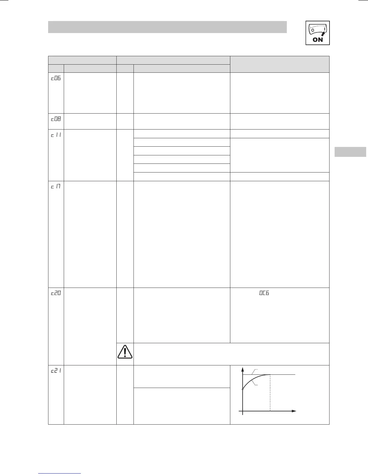
c21
Motor Overload
Type
00 00 Speed Compensation
Reduces the allowable continuous
current when operating below 30Hz.
Ir
100%
60%
30 f
1
0
Ir: rated current (%), f: motor frequency (Hz)
01 No Speed Compensation
Example: Motor is cooled by
forced ventilation as apposed to
shaft mounted, self cooling fans.

Related product manuals