EasyManua.ls Logo

Lenze EVF9326 - Edsvf9333 V en 3.0-06;2005

Lenze EVF9326
459 pages
Print Icon
To Next Page IconTo Next Page
To Next Page IconTo Next Page
To Previous Page IconTo Previous Page
To Previous Page IconTo Previous Page
Loading...
Wiring the standard device
Basic devices in the power range 0.37 ... 11 kW
Motor connection
5
5.4
5.4.4
5.4-9
EDSVF9333V EN 3.0-06/2005
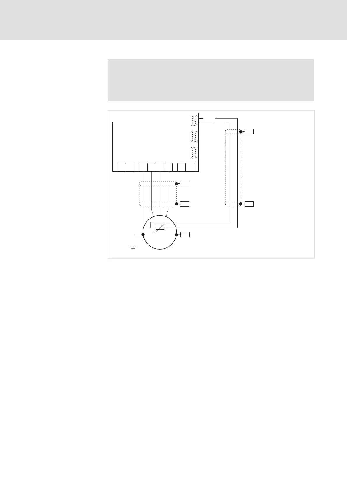
Note!
ƒ Lenze recommends using Lenze system cables for wiring.
ƒ If self-prepared cables are used, only use cables with cores that
are twisted in pairs and shielded.
PE
U
VW
T1 T2
+UG -UG
PES
PES
PE
M
3~
PES
PES
KTY
X8/5
X8/8
PES
X8
X9
X10
9300vec121
Fig. 5.4-7 Circuit diagram of motor connection with KTY thermal sensor at incremental
encoder input X8
Motor with KTY thermal
sensor

Table of Contents

Related product manuals