EasyManua.ls Logo

Lexmark CX410de - Page 393

Lexmark CX410de
394 pages
To Next Page IconTo Next Page
To Next Page IconTo Next Page
To Previous Page IconTo Previous Page
To Previous Page IconTo Previous Page
Loading...
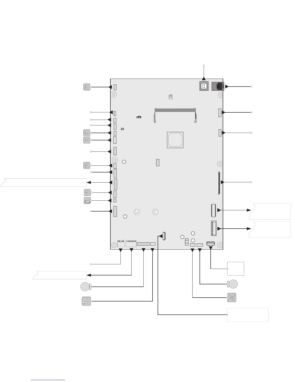
JSP1
1
1
JTHM1
1
JTPS2
1
JHVPS1
1
JBIN1
JCVR1
JSC1
1
JWT1
1
JCTM1
1
JMIRR1
JUSB1
JETH1
JPH1
F18
1
JHS1
JLCD1
JFB1
JADF1
24
21
JCCD1
12
30
2
16
USB
FLATBED STEPPER MOTOR
JFAN1
JLCD1
OPE RATOR PANE L
FLATBED HOME SENSOR
JHS1
JCARTB1
JCARTB1
CARTRIDGE DRIVE MOTOR
OPTIONAL TRAY
PAPER PICK ASM
FUSER THERMISTOR
TONER PATCH SENSOR2
NARROW MEDIA FUSER EXIT
BIN FULL SENSOR
JFUSES1
FUSER
JTPS1
TONER PATCH SENSOR1
JTRAY1
TRAY PRESENT
JINT1
SAFETY INTERLOCK
COVER OPEN
WASTE TONER SENSOR
CONNECTS TO DEV/TRANSFER HVPS
CONNECTS TO LVPS
SMART CHIP
CONNECTS TO
SCANNER ADF
CONNECTS TO
SCANNER
PRINTHEAD
PRINTHEAD MIRROR
TONER METER
ETHERNET
PC
BOTTOM
TOP
JPJP1
JOPT1
LVPS1
LVPS1
1
2
10
1
216
1
20
1
1
1
1
1
12
12
1

Table of Contents

Other manuals for Lexmark CX410de

Related product manuals