EasyManua.ls Logo

LG LCS720BO - Wiring and Connections

LG LCS720BO
24 pages
Print Icon
To Next Page IconTo Next Page
To Next Page IconTo Next Page
To Previous Page IconTo Previous Page
To Previous Page IconTo Previous Page
Loading...
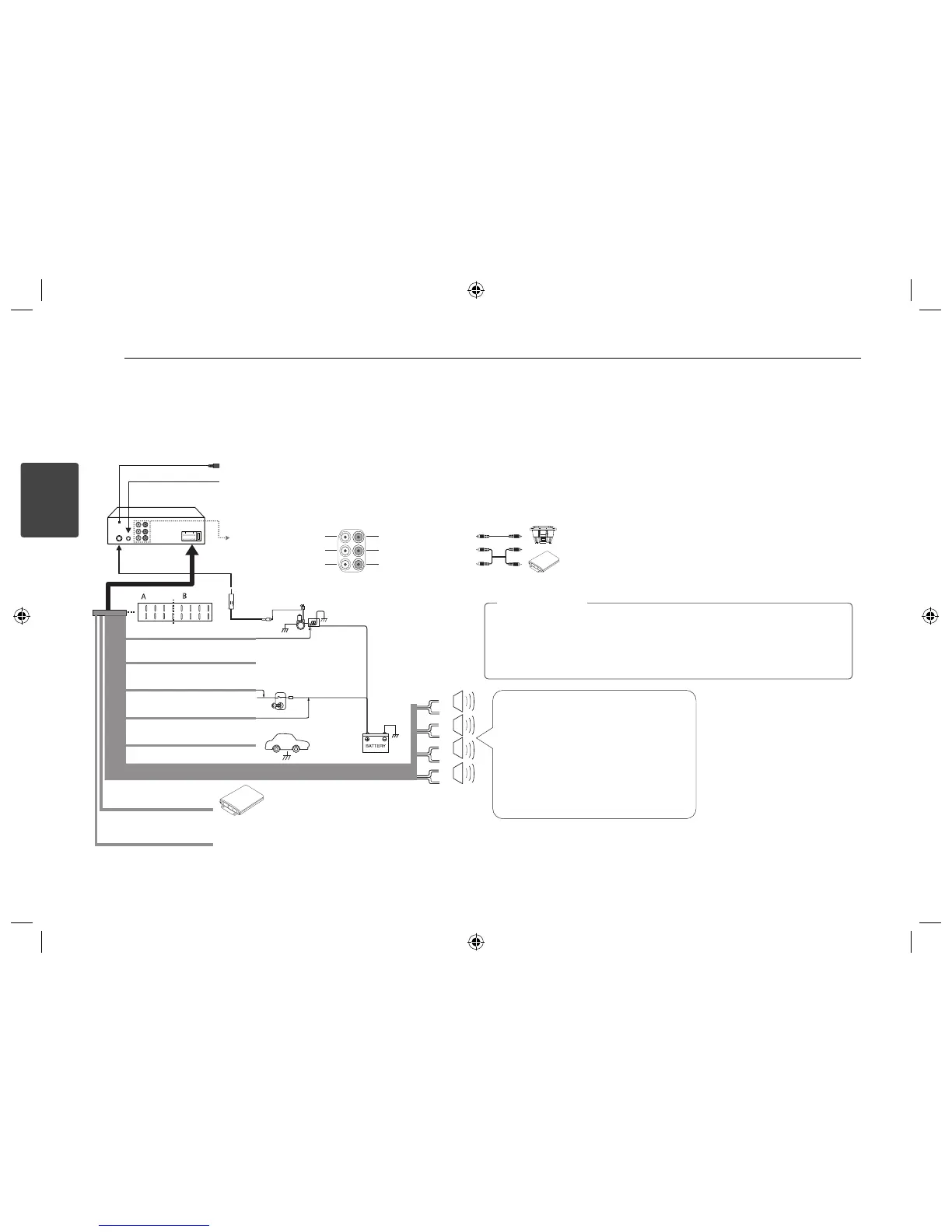
Connecting8
Connecting
2
Connection
Connecting to a car
Before installing, make sure that the ignition-switch is set to OFF and remove the terminal of the car battery to avoid short-circuiting.
B
a
Not connected
abcd
efgh
abcd
efgh
a
b
c
d
e
f
g
h
A
A
A
A
A
A
A
A
A
a
Gray : Front Right +
A
b
Gray / Black Stripe: Front Right -
A
c
Violet : Rear Right +
A
d
Violet / Black Stripe: Rear Right -
A
e
White : Front Left +
A
f
White / Black Stripe: Front Left -
A
g
Green : Rear Left +
A
h
Green / Black Stripe: Rear Left -
Power
Antenna
Control Relay
To Audio out To Audio in
Ampli er
Sub-woofer Left Sub-woofer Right
Front Left Front Right
Rear Left Rear Right
Ampli er
B
f
Power Antenna (Blue)
B
g
Not connected
B
c
To Ignition (Red)
B
h
Ground (-) (Black)
B
d
To Battery (+) (Yellow)
B
e
Remote On
(Blue / White)
B
b
Not connected
Ignition Switch
Wired mic
Wired remote input (Black): Hard-wired control adapter can be connected. (Optional)
Sub-woofer
When being connected in a wrong way, the unit displays as follows.
- Antenna / Remote port short: "ANTENNA/ REMOTE ON PORT SHORT CIRCUIT
CHECK"
After connecting it again, restart the unit.
>
Caution

Table of Contents

Related product manuals