EasyManua.ls Logo

LG MULTI F - Page 259

LG MULTI F
361 pages
Print Icon
To Next Page IconTo Next Page
To Next Page IconTo Next Page
To Previous Page IconTo Previous Page
To Previous Page IconTo Previous Page
Loading...
14
Multi F Ceiling Cassette Indoor Unit
Due to our policy of continuous product innovation, some specifications may change without notification.
©LG Electronics U.S.A., Inc., Englewood Cliffs, NJ. All rights reserved. “LG” is a registered trademark of LG Corp.
MA
X
MUL
TI
F
MUL
TI
F
GENERAL DATA
Model No. Vapor (inch) Liquid (inch)
LMCN077HV
Ø3/8
Ø1/4
LCN097HV4
LCN127HV4
LMCN185HV Ø1/2
Table 6: Multi F Multi Zone Art Cool Mirror Wall-Mounted Indoor Unit Refrigerant Pipe Connection Port Diameters.
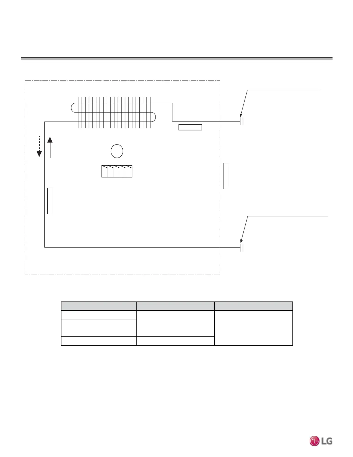
Figure 2: Multi F Four-Way Ceiling-Cassette Indoor Unit Refrigerant Flow Diagram.
Heat exchanger
Gas pipe connection port
(flare connection)
Liquid pipe connection port
(flare connection)
Turbo fan
Cooling
Heating
M
Thermistor for Evaporator
Inlet Temperature
Thermistor for Indoor
Air Temperature
Thermistor for Evaporator
Outlet Temperature

Table of Contents

Other manuals for LG MULTI F

Related product manuals