EasyManua.ls Logo

LG MULTI V ARNU96GB8A4 - Page 217

LG MULTI V ARNU96GB8A4
520 pages
To Next Page IconTo Next Page
To Next Page IconTo Next Page
To Previous Page IconTo Previous Page
To Previous Page IconTo Previous Page
Loading...
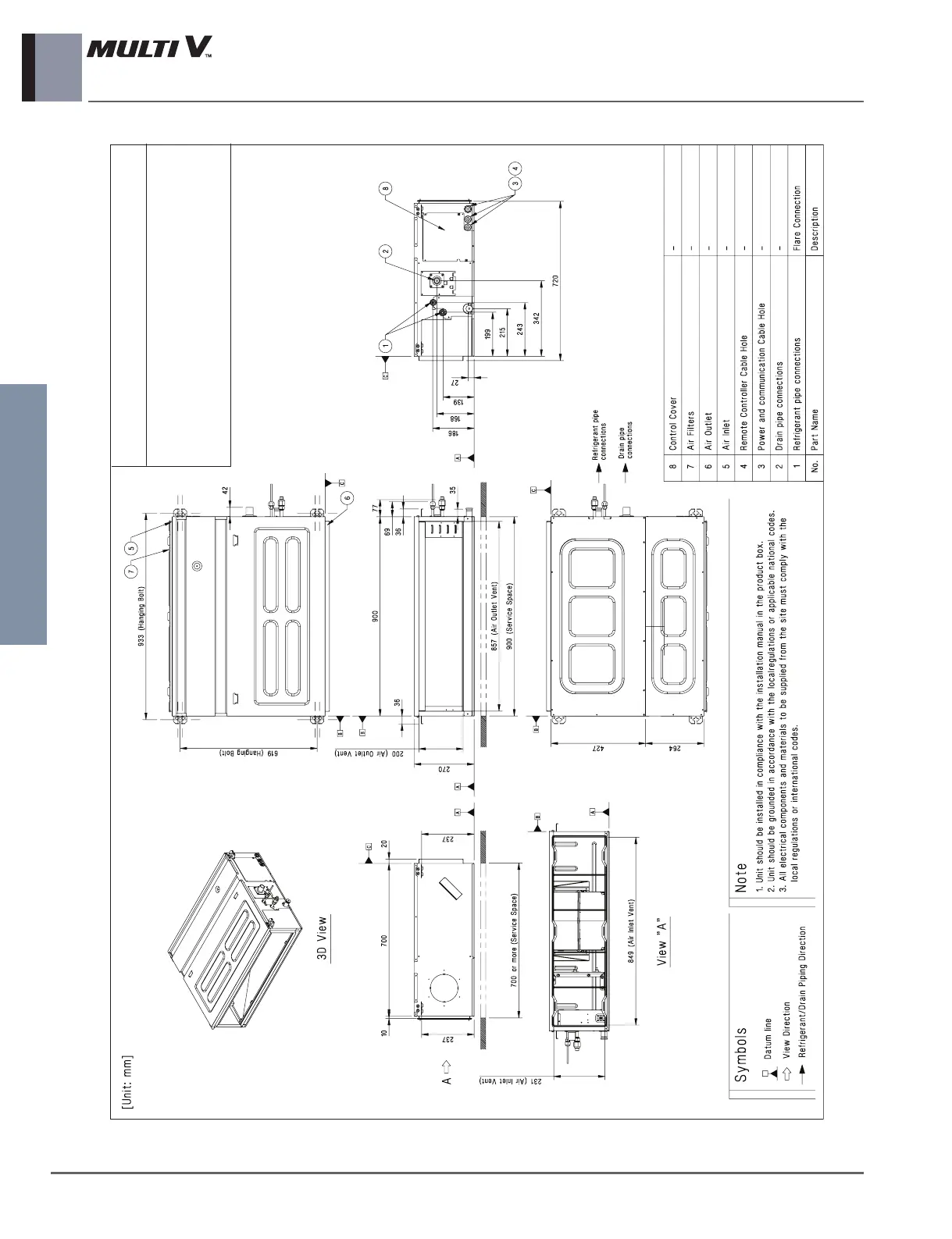
3. Dimensions & Gravity point
Indoor unit
6 _ Ceiling Concealed Duct(Middle Static)
Indoor Units
M1 Chassis
ARNU07GM1A4
ARNU09GM1A4
ARNU12GM1A4
ARNU15GM1A4
ARNU18GM1A4
ARNU24GM1A4

Table of Contents

Other manuals for LG MULTI V ARNU96GB8A4

Related product manuals