EasyManua.ls Logo

LG Tri-Zone Multi F - Page 47

LG Tri-Zone Multi F
77 pages
To Next Page IconTo Next Page
To Next Page IconTo Next Page
To Previous Page IconTo Previous Page
To Previous Page IconTo Previous Page
Loading...
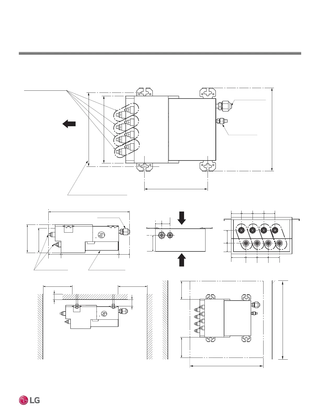
MULTI F MAX BD UNIT
'LPHQVLRQV
Figure 33: PMBD3620, PMBD3630, PMBD3640, and PMBD3641 External Dimensions.
Mininum 1-3/16
Mininum 3-15/16
Minimum 15-3/4
Branch Pipe
17
6-5/16
Cover Control
Main Pipe
Service Space
EEV Service
Controller Service
Inspection Opening
Minimum 12
Minimum 12
11-23/32
9-27/32
Ø3/4
Ø3/8
Suspension Bolt Pitch
9-21/32
13-9/32
Indoor Unit
Piping Direction
Unit: Inch
Minimum 24
Minimum 24
Bottom View
Minimum 15-3/4Mininum 15-3/4
Side View
5-29/32
2-27/32
11-13/16
2-3/8
1-3/16
1-31/32
4-3/8
A-C (and PMBD3640 D) Connections:
Liquid Pipe Ø1/4
Gas Pipe Ø3/8
PMBD3641 D Connections:
Liquid Pipe Ø1/4
Gas Pipe Ø1/2
Notes:
1. For PMBD3620 Unit, Ports A and B are Available.
2. For PMBD3630 Unit, Ports A, B, and C are Available.
3. For PMBD3640 and PMBD3641 Units, Ports A, B, C, and D are Available.
ABCD
1-1/2 1-31/32
1-23/32
1-31/32
1-31/32
1-31/32
1-31/32
1-31/32
1-31/32
2-7/32
BD UNIT | 47
Branch Distribution (BD) Unit Data
'XHWRRXUSROLF\RIFRQWLQXRXVSURGXFWLQQRYDWLRQVRPHVSHFL¿FDWLRQVPD\FKDQJHZLWKRXWQRWL¿FDWLRQ
©/*(OHFWURQLFV86$,QF(QJOHZRRG&OLIIV1-$OOULJKWVUHVHUYHG³/*´LVDUHJLVWHUHGWUDGHPDUNRI/*&RUS
MULTI
F
MAX
MULTI
F

Other manuals for LG Tri-Zone Multi F

Related product manuals