EasyManua.ls Logo

LG Tri-Zone Multi F - Wiring Diagram

LG Tri-Zone Multi F
77 pages
Print Icon
To Next Page IconTo Next Page
To Next Page IconTo Next Page
To Previous Page IconTo Previous Page
To Previous Page IconTo Previous Page
Loading...
Due to our policy of continuous product innovation, some specications may change without notication.
©LG Electronics U.S.A., Inc., Englewood Cliffs, NJ. All rights reserved. “LG” is a registered trademark of LG Corp.
24 | MULTI F OUTDOOR UNIT
Multi F and Multi F MAX Heat Pump System Engineering Manual
MULTI
F
MAX
MULTI
F
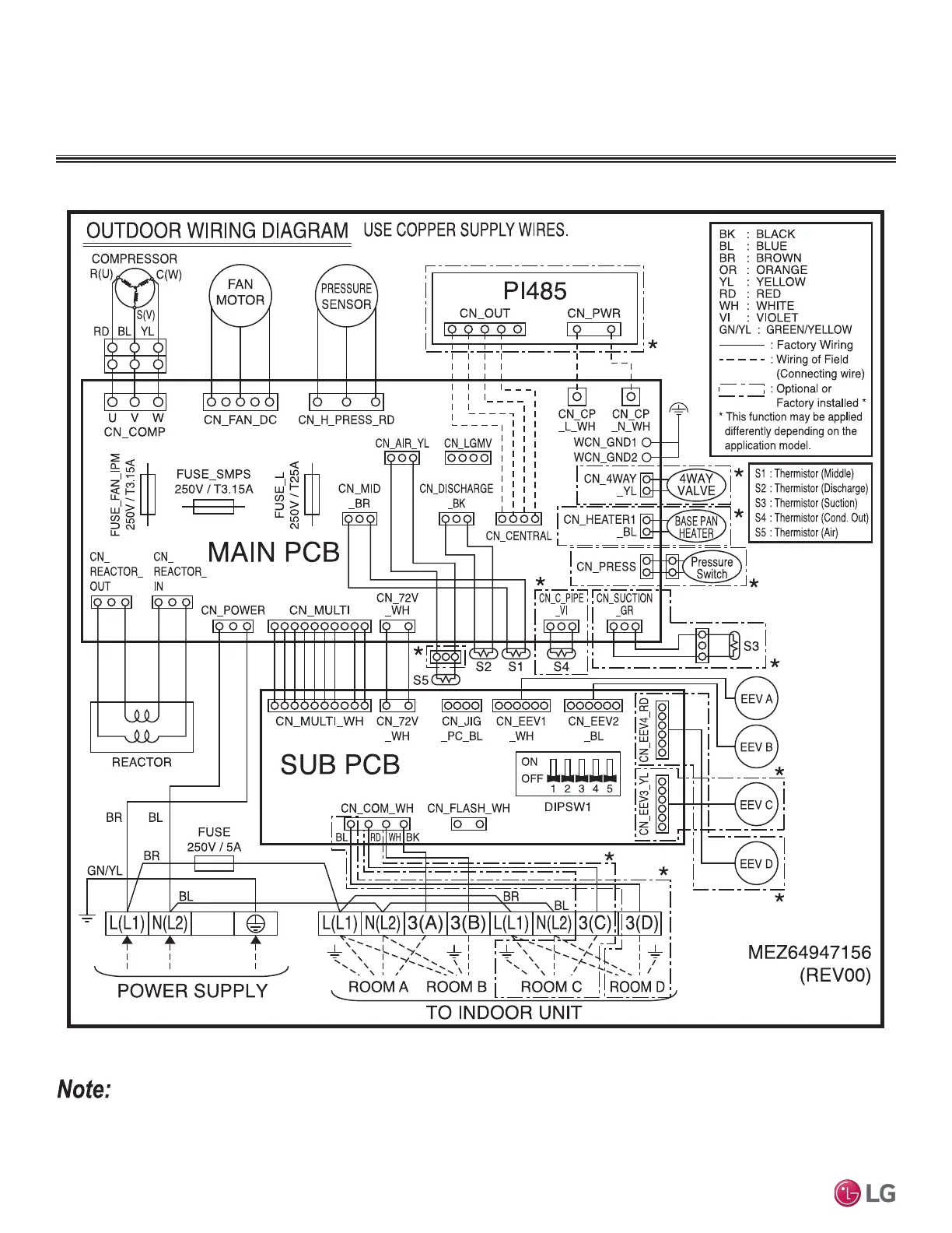
MULTI F OUTDOOR UNIT
Wiring Diagram
Figure 10: LMU180HV and LMU240HV Wiring Diagram.
LMU180HV can support no more than two indoor units; LMU240HV can support two or three indoor units. Ensure the communication cable / power
wiring from the outdoor unit to the indoor units is installed correctly for the system and the chosen application.
01-2021

Other manuals for LG Tri-Zone Multi F

Related product manuals