EasyManua.ls Logo

Liebert PW011 - Page 124

Liebert PW011
153 pages
Print Icon
To Next Page IconTo Next Page
To Next Page IconTo Next Page
To Previous Page IconTo Previous Page
To Previous Page IconTo Previous Page
Loading...
REV : 8
REV DATE : 12/16
DPN002939
Page :1 /1
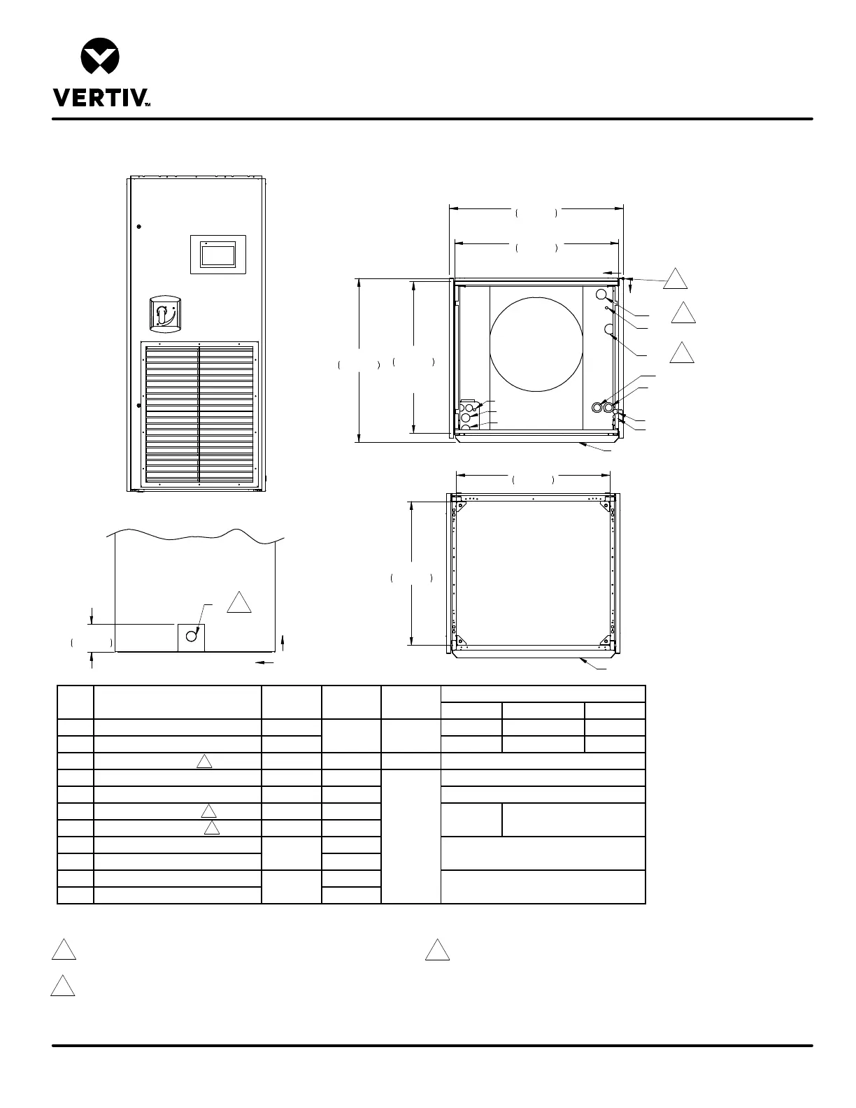
UPFLOW AIR COOLED MODELS
Form No.: DPN001040_REV4
PRIMARY CONNECTION LOCATIONS
LIEBERT PDX
LV1
ECS
LV2
FRONT VIEW
X
Y
O
TOP VIEW
32 5/8"
828mm
34 1/2"
876mm
FRONT OF UNIT
FRONT OF UNIT
28 9/16"
725mm
30 1/2"
775mm
TOP VIEW
G1
L1
E1
E2
HUM
Y
Z
RIGHT SIDE VIEW
CD
CDP
ECR
PX011
PX018, PX023
PX029
L1
LIQUID LINE SYSTEM
5-1/8 (130)
3/8
1/2
5/8
G1
HOT GAS DISCHARGE
2-7/8 (73)
1/2
5/8
7/8
CD
CONDENSATE DRAIN
N/A
16-5/8 (422)
3-1/8 (89)
CDP
CONDENSATE DRAIN WITH PUMP
3-1/4 (83)
5-7/8 (149)
HUM
HUMIDIFIER SUPPLY LINE
29-1/2 (749)
26 (660)
ECS
ECON-O-COIL SUPPLY
4-1/4 (108)
3-1/4 (83)
ECR
ECON-O-COIL RETURN
2-5/8 (67)
10 (254)
E1
ELECTRICAL CONN. (HIGH VOLT)
30 (762)
E2
ELECTRICAL CONN. (HIGH VOLT)
27-3/4 (705)
LV1
ELECTRICAL CONN. (LOW VOLT)
27-1/2 (699)
LV2
ELECTRICAL CONN. (LOW VOLT)
26-1/2 (673)
POINT DESCRIPTION X in. (mm) Y in. (mm)
1-1/2 (38)
31-1/4 (794)
25-5/8 (651)
1
7/8, 1-3/8, 1-3/4
7/8
Z in. (mm)
N/A
N/A
1-1/8
CONNECTION SIZE/OPENING in.
3/4" NPT FEMALE
1/2
1/4
SUPPLY AIR
DISCHARGE OPENING
Notes:
1. Drawing not to scale. All dimensions from rear corner of unit including panels
and have a tolerance of ± 1/2" (13mm).
2. Field pitch Condensate drain line a minimum of 1/8" (3mm) per 12" (305mm)
All units contain a factory installed condensate trap. Do not trap external to the unit.
Drain line may contain boiling water. Select appropriate drain system materials
The drain line must comply with local codes.
2
3
3
2
3
3
1
5 5/8"
143mm
3. Supplied on Dual Cooling Systems only.
4. Unit with front return shown. Bottom return with rear return floorstand also available.
5. All refrigerant & water piping connections are O.D. Copper except as noted.
30 3/16"
767mm
Duct
Flange
32 9/16"
827mm
Duct Flange

Table of Contents

Related product manuals