EasyManua.ls Logo

Liebert PX011 - Page 123

Liebert PX011
153 pages
Print Icon
To Next Page IconTo Next Page
To Next Page IconTo Next Page
To Previous Page IconTo Previous Page
To Previous Page IconTo Previous Page
Loading...
REV : 7
REV DATE : 12/16
DPN002938
Page :1 /1
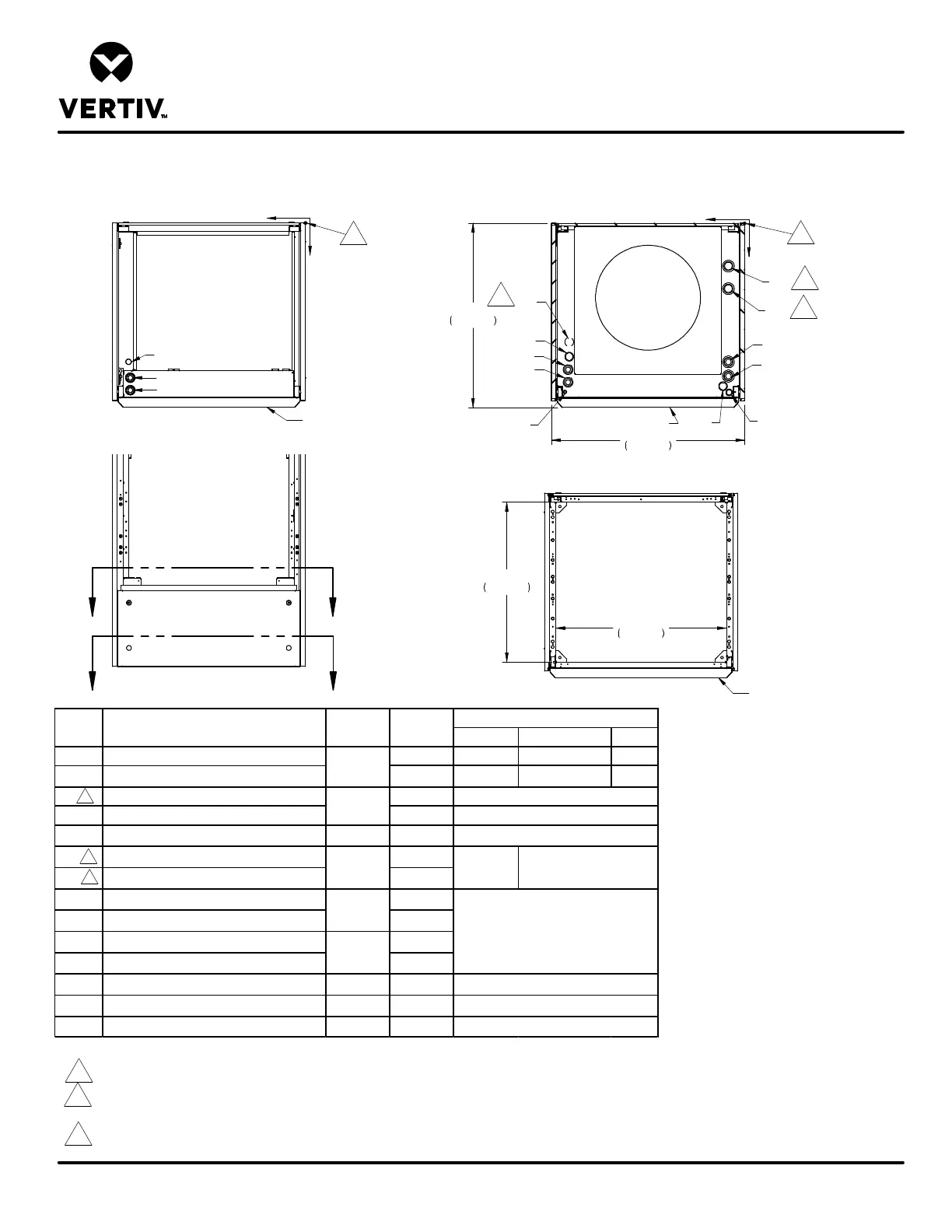
DOWNFLOW AIR COOLED MODELS
Form No.: DPN001040_REV4
PRIMARY CONNECTION LOCATIONS
LIEBERT PDX
A
A
33"
837mm
34 1/2"
876mm
LV1
ECS
ECR
L1
G1
LV2
FRONT OF UNIT
FRONT OF UNIT
E4
E3
LV3
SECTION A-A
Bottom Connections
FRONT VIEW
TOP VIEW
SECTION B-B
30 1/2"
775mm
28 9/16"
725mm
FRONT OF UNIT
B
B
PX011 PX018, PX023 PX029
L1 LIQUID LINE SYSTEM 24-3/4 (629) 3/8" 1/2" 5/8"
G1 HOT GAS DISCHARGE 27-3/8 (695) 1/2" 5/8" 7/8"
CD CONDENSATE DRAIN 21-1/4 (540)
CE CONDENSATE ELECTRICAL 24 (610)
HUM HUMIDIFIER SUPPLY LINE 32 (813) 30-1/8 (765)
ECS ECON-O-COIL SUPPLY 7-5/8 (194)
ECR ECON-O-COIL RETURN 11-3/4 (298)
E1 ELECTRICAL CONN. (HIGH VOLT) BOTTOM 28-3/8 (721)
E2 ELECTRICAL CONN. (HIGH VOLT) BOTTOM 26-1/8 (664)
E3 ELECTRICAL CONN. (HIGH VOLT) TOP 27-5/8 (701)
E4 ELECTRICAL CONN. (HIGH VOLT) TOP 29-7/8 (758)
LV1 ELECTRICAL CONN. (LOW VOLT) BOTTOM 2-3/4 (70) 30-1/8 (765)
LV2 ELECTRICAL CONN. (LOW VOLT) BOTTOM 3-1/2 (89) 29 (737)
LV3 ELECTRICAL CONN. (LOW VOLT) TOP 31-5/8 (803) 24-7/8 (632)
POINT DESCRIPTION X in. (mm) Y in. (mm)
31-1/4 (793)
7/8" 1-1/8"
7/8”, 1-3/8”, 1-3/4”
2-7/8 (73)
1-1/2"
2-7/8 (73)
31-1/2 (800)
31-1/2 (800)
1"
1/4"
1-1/8"
CONNECTION SIZE / OPENING
3/4" NPT FEMALE
1-1/2"
ELECTRICAL TOP
CONNECTIONS
X
Y
O
HUM
SUPPLY AIR
DISCHARGE
OPENING
Notes:
1. Drawing not to scale. All dimensions from rear corner of unit including panels, and have a tolerance of ± 1/2" (13mm).
2. Field pitch Condensate drain line a minimum of 1/8" (3mm) per 12" (305mm). All units contain a factory installed condensate trap. Do not trap external to the unit.
Drain line may contain boiling water. Select appropriate drain system materials. The drain line must comply with local codes.
3. Supplied on Dual Cooling Systems only (4 pipe system).
4. All refrigerant & water piping connections are O.D. Copper except as noted.
2
3
3
3
3
X
Y
O
CD
CE
E2
E1
2
1
1

Table of Contents

Related product manuals