EasyManua.ls Logo

Liebert PX018 - Page 137

Liebert PX018
153 pages
Print Icon
To Next Page IconTo Next Page
To Next Page IconTo Next Page
To Previous Page IconTo Previous Page
To Previous Page IconTo Previous Page
Loading...
REV : 6
REV DATE : 12/16
DPN002981
Page :1 /1
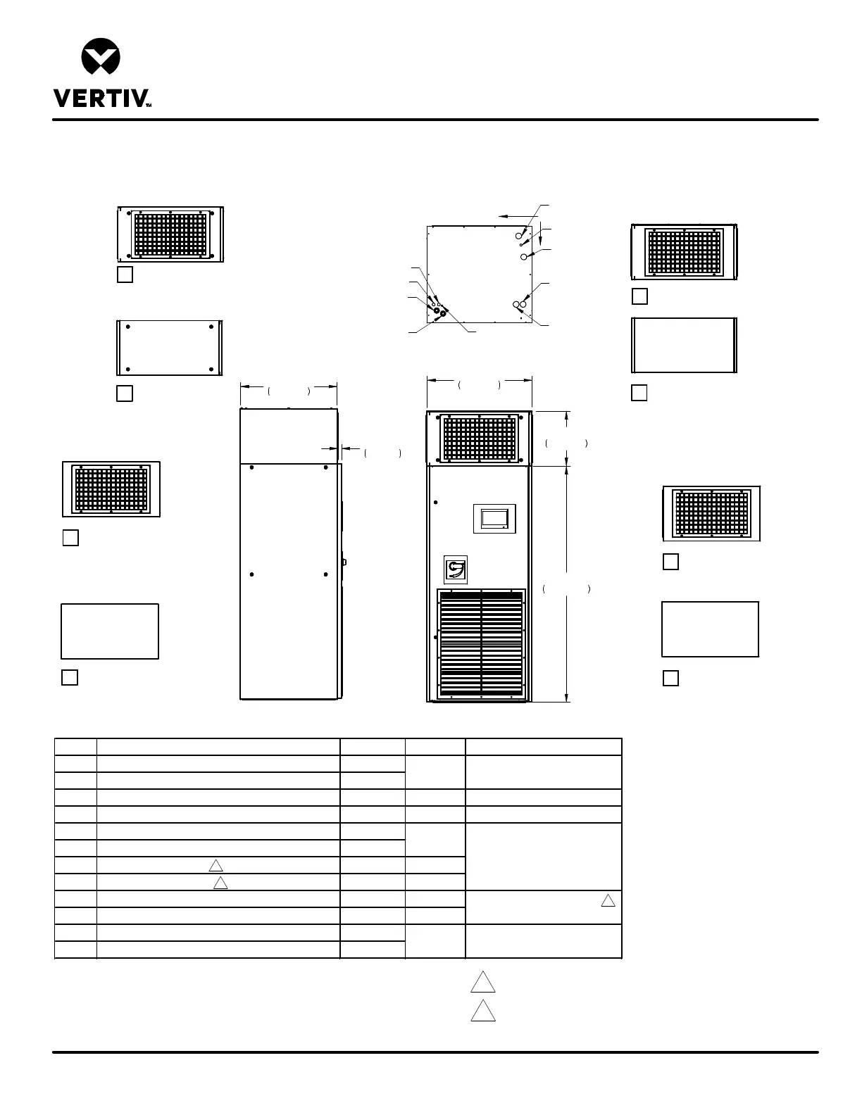
UPFLOW DISCHARGE GRILLE
Form No.: DPN001040_REV4
PLENUM DIMENSIONAL DATA
LIEBERT PDX & PCW
WITH GRILLE
FRONT VIEW - UNIT WITH PLENUM
FRONT VIEWS - CHECK ONE (1):
REAR VIEWS - CHECK ONE (1):
LEFT SIDE VIEWS -
CHECK ONE (1):
RIGHT SIDE VIEWS -
CHECK ONE (1):
WITH GRILLE
WITHOUT GRILLE
WITH GRILLE
WITHOUT GRILLE
WITHOUT GRILLE
WITHOUT GRILLE
WITH GRILLE
SIDE VIEW - UNIT WITH PLENUM
1 7/16"
37mm
31 3/4"
807mm
34 1/2"
876mm
18"
458mm
77 5/8"
1971mm
Notes:
1. Two grilles minimum per plenum required.
The nominal grille size is 24" (609mm) x 14" (355mm).
2. All Plenums are shipped flat (non-assembled) and must be assembled on site.
3. Upflow bottom return units are available with required rear
return floorstand with filter.
4. Units supplied with Dual Cooling systems only (4 pipe system).
5. Concentric knockouts to be used based on field supplied
conduit diameter.
4
4
5
POINT
DESCRIPTION
X in. (mm)
Y in. (mm)
KNOCKOUT SIZE in. (mm)
L1
LIQUID LINE SYSTEM 1
5-1/8 (130)
G1
HOT GAS DISCHARGE 1
2-7/8 (72)
CDP
CONDENSATE DRAIN WITH PUMP
3-1/2 (89)
6-1/8 (155)
3/4 (19)
HUM
HUMIDIFIER SUPPLY LINE
29-1/2 (748)
26 (662)
1/2 (13)
WS
SUPPLY-CW/WATER/GLYCOL
5-1/8 (130)
WR
RETURN-CW/WATER/GLYCOL/GLYCOOL™
2-7/8 (72)
ECS
ECON-O-COIL SUPPLY / GLYCOOL™ SUPPLY
4-1/4 (109)
3-1/8 (80)
ECR
ECON-O-COIL RETURN
2-5/8 (66)
10 (255)
E1
ELECTRICAL CONN. (HIGH VOLT)
29-1/8 (739)
28-5/8 (728)
E2
ELECTRICAL CONN. (HIGH VOLT)
31-1/4 (793)
27-5/8 (702)
LV1
ELECTRICAL CONN. (LOW VOLT)
32-1/4 (818)
LV2
ELECTRICAL CONN. (LOW VOLT)
30-1/2 (775)
1 (25)
25-5/8 (651)
25-5/8 (651)
25-5/8 (652)
7/8 (23), 1-3/8 (35), 1-3/4 (44)
2 (51)
2 (51)
ECS
CDP
ECR
G1 (PDX)
WR
L1 (PDX)
WS
LV2
LV1
E2
E1
HUM
X
O
Y

Table of Contents

Related product manuals