EasyManua.ls Logo

Liebert PX018 - Page 146

Liebert PX018
153 pages
Print Icon
To Next Page IconTo Next Page
To Next Page IconTo Next Page
To Previous Page IconTo Previous Page
To Previous Page IconTo Previous Page
Loading...
REV : 2
REV DATE : 12/16
DPN003521
Page :1 /1
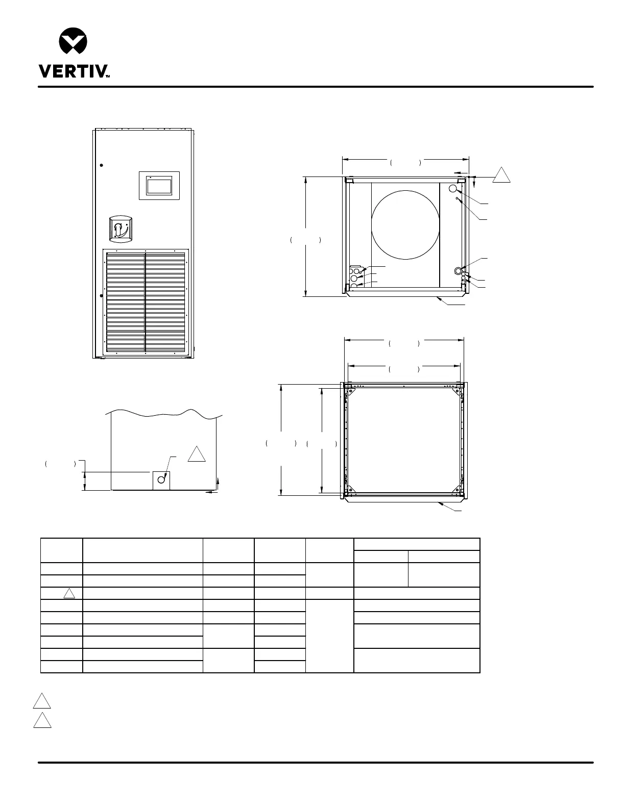
UPFLOW GLYCOOL MODELS
Form No.: DPN001040_REV4
PRIMARY CONNECTION LOCATIONS
LIEBERT PDX
Z
Y
RIGHT SIDE VIEW
CD
PX011 PX018-PX029
GS GLYCOOL SUPPLY 4-1/4 (108) 3-1/4 (83)
GR GLYCOOL RETURN 2-7/8 (73) 25-5/8 (651)
CD
CONDENSATE DRAIN
N/A
16-5/8 (422)
3-1/8(79)
CDP
CONDENSATE DRAIN WITH PUMP
3-1/4 (83)
5-7/8 (149)
HUM HUMIDIFIER SUPPLY LINE 29-1/2 (749) 26 (660)
E1 ELECTRICAL CONN. (HIGH VOLT) 30 (762)
E2 ELECTRICAL CONN. (HIGH VOLT) 27-3/4 (705)
LV1 ELECTRICAL CONN. (LOW VOLT) 27-1/2 (699)
LV2 ELECTRICAL CONN. (LOW VOLT) 26-1/2 (673)
CONNECTION SIZE / OPENING
Z in. (mm)
N/A
POINT DESCRIPTION X in. (mm) Y in. (mm)
1-1/2 (38)
31-1/4 (794) N/A
1"
7/8", 1-3/8", 1-3/4"
7/8" 1-1/8"
3/4" NPT FEMALE
1/2"
1/4"
LV1
LV2
X
Y
O
TOP VIEW
32 5/8"
828mm
34 1/2"
876mm
FRONT OF UNIT
E1
E2
HUM
CDP
GR
FRONT OF UNIT
28 1/2"
725mm
30 1/2"
775mm
TOP VIEW
GS
2
Notes:
1. Drawing not to scale. All dimensions from rear corner of unit including panels, and have a tolerance of ± 1/2" (13mm).
2. Field pitch Condensate drain line a minimum of 1/8" (3mm) per 12" (305mm). All units contain a factory installed condensate trap. Do not trap
external to the unit. Drain line may contain boiling water. Select appropriate drain system materials. The drain line must comply with local codes.
3. Unit with front return shown. Bottom return with rear return floorstand also available.
4. All water piping is O.D. Copper except as noted.
2
SUPPLY AIR
DISCHARGE OPENING
1
FRONT VIEW
30 1/4"
768mm
Duct
Flange
32 5/8"
827mm
Duct Flange
5 5/8"
142mm

Table of Contents

Related product manuals