EasyManua.ls Logo

Liebert PX023 - Page 128

Liebert PX023
153 pages
Print Icon
To Next Page IconTo Next Page
To Next Page IconTo Next Page
To Previous Page IconTo Previous Page
To Previous Page IconTo Previous Page
Loading...
REV : 7
REV DATE : 12/16
DPN002943
Page :1 /1
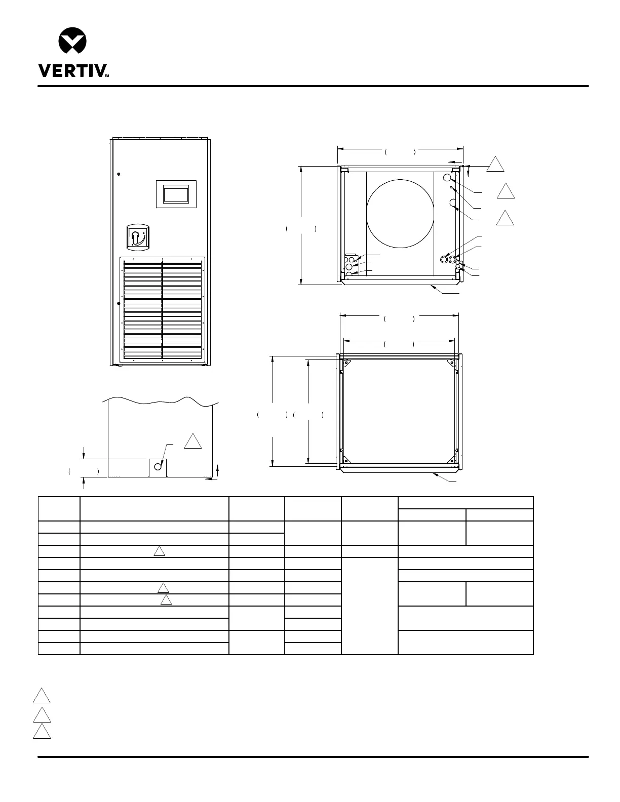
UPFLOW WATER/GLYCOL MODELS
Form No.: DPN001040_REV4
PRIMARY CONNECTION LOCATIONS
LIEBERT PDX
Z
Y
RIGHT SIDE VIEW
CD
PX011 PX018-PX029
WS WATER/GLYCOL SUPPLY 5-1/8 (130)
WR WATER/GLYCOL RETURN 2-7/8 (73)
CD
CONDENSATE DRAIN
N/A
16-5/8 (422)
3-1/8 (89)
CDP
CONDENSATE DRAIN WITH PUMP
3-1/4 (83)
5-7/8 (149)
HUM HUMIDIFIER SUPPLY LINE 29-1/2 (749) 26 (660)
ECS ECON-O-COIL SUPPLY 4-1/4 (108) 3-1/4 (83)
ECR ECON-O-COIL RETURN 2-5/8 (67) 10 (254)
E1 ELECTRICAL CONN. (HIGH VOLT) 30 (762)
E2 ELECTRICAL CONN. (HIGH VOLT) 27-3/4 (705)
LV1 ELECTRICAL CONN. (LOW VOLT) 27-1/2 (699)
LV2 ELECTRICAL CONN. (LOW VOLT) 26-1/2 (673)
CONNECTION SIZE / OPENING
POINT DESCRIPTION X in. (mm) Y in. (mm)
1-1/2 (38)
31-1/4 (794)
25-5/8 (651)
1"
7/8", 1-3/8", 1-3/4"
Z in. (mm)
N/A
N/A
7/8" 1-1/8"
7/8" 1-1/8"
3/4" NPT FEMALE
1/2"
1/4"
LV1
LV2
X
Y
O
TOP VIEW
32 5/8"
828mm
34 1/2"
876mm
FRONT OF UNIT
E1
E2
HUM
CDP
WR
WS
FRONT OF UNIT
TOP VIEW
ECS
ECR
2
3
3
Notes:
1. Drawing not to scale. All dimensions from rear corner of unit including panels, and have a tolerance of ± 1/2" (13mm).
2. Field pitch Condensate drain line a minimum of 1/8" (3mm) per 12" (305mm). All units contain a factory installed condensate trap. Do not trap
external to the unit. Drain line may contain boiling water. Select appropriate drain system materials. The drain line must comply with local codes.
3. Supplied on Dual Cooling Systems only (4 pipe system)
4. Unit with front return shown. Bottom return with rear return floorstand also available.
5. All water piping is O.D. Copper except as noted.
2
3
3
SUPPLY AIR
DISCHARGE OPENING
1
30 1/2"
775mm
28 7/16"
723mm
5 5/8"
143mm
30 1/4"
768mm
Duct
Flange
32 9/16"
827mm
Duct Flange

Table of Contents

Related product manuals