EasyManua.ls Logo

Lifter HX10E - Technical Specifications

Lifter HX10E
Print Icon
To Next Page IconTo Next Page
To Next Page IconTo Next Page
To Previous Page IconTo Previous Page
To Previous Page IconTo Previous Page
Loading...
SUMMARY (1.3)
;,*/50*(3:7,*0-0*(;065:WHN
<:,6-;/,4(*/05,WHN
+,:*907;0656-;/,4(*/05,WHN 
:(-,;@+,=0*,:WHN
73(;,:WHN
;9(5:769;(5+:,;<7WHN
)(;;,9@WHN
<:,WHN
4(05;,5(5*,WHN
;96<)3,:/66;05.WHN
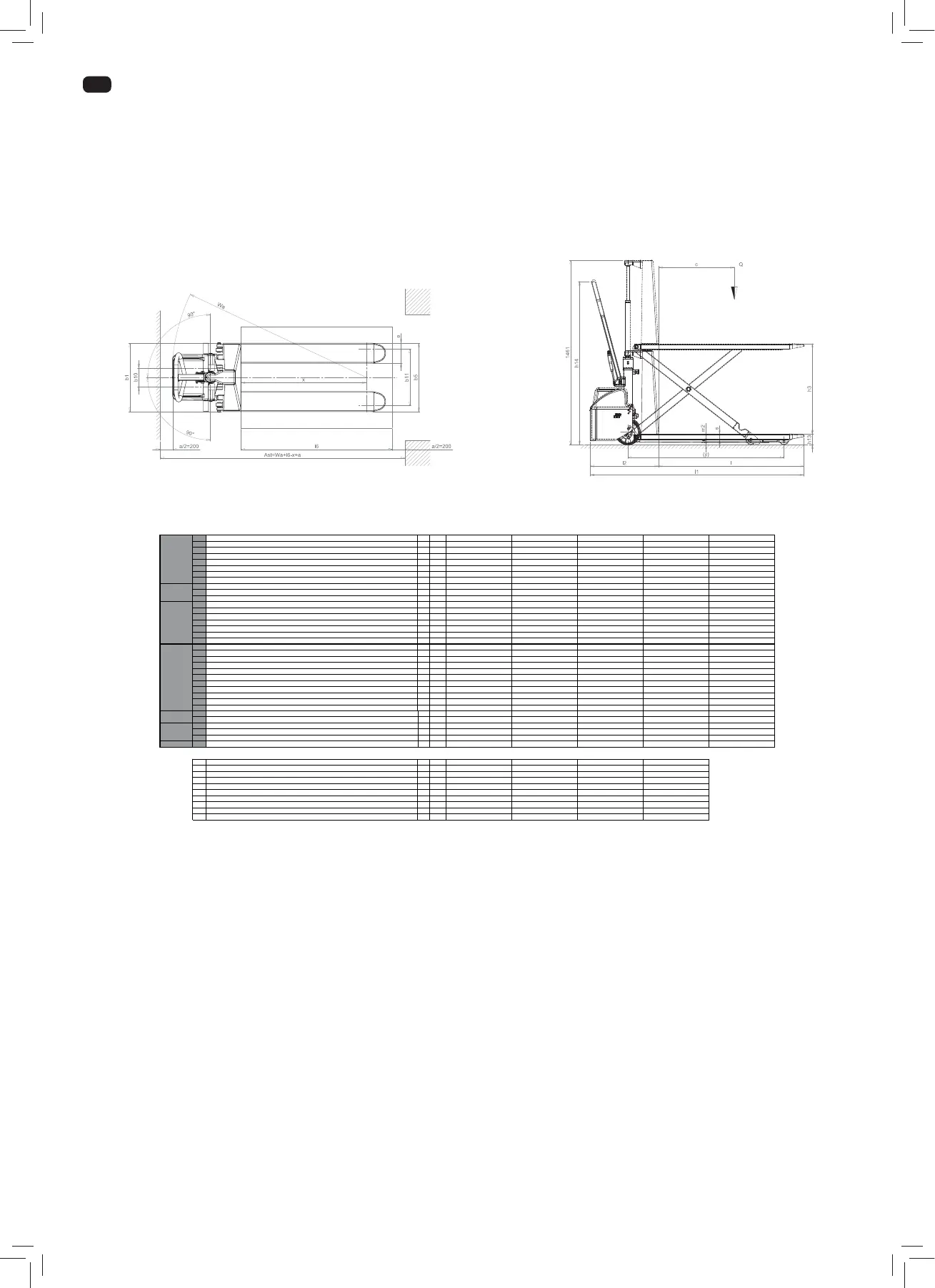
TECHNICAL SPECIFICATIONS
9
USE OF THE MACHINE (4.2) (SEE FIG.1)
;OPZTHJOPULOHZILLUKLZPNULKMVY[OL[YHUZWVY[HUKSPM[PUNVMSVHKZVUWLYMLJ[S`L]LUÅVVYZ^P[OV\[HU`\W^HYKWYVQLJ[PUNI\TWHJJVTWHUPLKVUMVV[I`[OLKYP]LY;OL
PKLU[PÄJH[PVUWSH[L¸(¹ÄNPUKPJH[LZ[OLSVHKPUNJHWHJP[`[OH[T\Z[UL]LYILL_JLLKLKIV[OMVY[OLZHML[`VM[OLWLYZVUULSHUKUV[[VKHTHNL[OL]LOPJSL7SLHZLVIZLY
]L[OLZHML[`\ZLHUKTHPU[LUHUJLYLN\SH[PVUZ[V[OLSL[[LY(U`TV\U[PUNVML_[YHLX\PWTLU[VU[OLTHJOPULT\Z[ILH\[OVYPZLKI`4HU\MHJ[\YLY;OPZ[Y\JRJHUIL\ZLK
PU^VYRHYLHZ^OLYL[OLVWLYH[VYPZVM[LUVISPNLK[VZ[VVW[VSPM[SVHKZTHU\HSS`P[JHUIL\ZLKIV[OHZHUVYTHS[YHUZWHSSL[HUKHZH^VYR[HISL[OH[JHUILSPM[LK3PM[PUN
[OLSVHK[V[OLYLX\PYLKOLPNO[KPTPUPZOLZ\ZLSLZZLMMVY[HUKLYNVUVTPJHSS`PTWYV]LZIV[OÄ_LKHUKTVIPSL^VYRZ[H[PVUZ,SLJ[YPJHSS`KYP]LUSPM[PUNX\PJRLUZHUKMHJPSP[H[LZ
YLWL[P[P]LJOHUNLZVM^VYROLPNO[Z
NB: This machine produces an acoustic pressure of 70 dB(A), mesured with full load in working position, for this reason it is recommended to use due antinoise
protections (headphones, ear-plugs, etc.).
DESCRIPTION OF THE MACHINE (5.3) (SEE FIG.2)
1 - Chassis
:VSKLYLKZ[Y\J[\YLJVUZ[Y\J[LKMYVT[VWX\HSP[`TH[LYPHSZ^P[OHKLX\H[LYLZPZ[HUJL[V[OLZ[YLZZ[V^OPJO[OL[Y\JRPZZ\IQLJ[LK;OL[^VMYVU[YVSSLYZHUK[OLSH[LYHSZ[HIPSP
ZLYZN\HYHU[LLOPNOZ[HIPSP[`VUWVPU[ZVMZ\WWVY[
2 - Steering bar
;OLZ[LLYPUNIHYPZ\ZLK[VW\SSHUKTHUVL\]YL[OL[Y\JR(NHZZWYPUNH\[VTH[PJHSS`YL[\YUZP[[VP[Z]LY[PJHSWVZP[PVU^OLUYLSLHZLK0[PZJVUZ[Y\J[LK[VWYV[LJ[[OLOHUKZVM
[OLVWLYH[VY
3 - Lifting cylinder
>P[OHZPUNSLHJ[PUNTV]LTLU[P[SPM[Z[OLJOHZZPZ[V[OLKLZPYLKOLPNO[;OLTH[LYPHSZ\ZLKN\HYHU[LL[OLZHML[`VM[OLVWLYH[VYMYVTTLJOHUPJHSYPZRZ
4 - Battery
;OLIH[[LY`PZVM[OLZ[HY[PUN[`WLHUKPZLHZPS`HJJLZZLKPUZPKL[OLJV]LYYLM;VYLJOHYNLPUZLY[[OLWS\NVM[OLIH[[LY`JOHYNLYPU[V[OLYLJOHYNPUNZVJRL[YLMSVJH[LK
VU[OLZ\WWVY[YLM Z\WWVY[ZVI[HPULKVU[OLTV\U[PUNYLM HUKHULSHZ[PJILS[WYL]LU[HU`IH[[LY`TV]LTLU[YLM;OLWSH[L¸-¹ÄNKPZWSH`Z[OLPKLU[PÄJH[PVU
KH[HVM[OLIH[[LY`
EN
1.1 MANUFACTURER PR INDUSTRIAL PR INDUSTRIAL PR INDUSTRIAL PR INDUSTRIAL PR INDUSTRIAL
1.2 MODEL HX10E 1150x540 HX10E 1150x680 HX10E 1525x540 HX10E 1800x540 HX10E 2000x540
1.3 DRIVE
MANUAL MANUAL MANUAL MANUAL MANUAL
1.4 OPERATOR TYPE PEDESTRIAN PEDESTRIAN PEDESTRIAN PEDESTRIAN PEDESTRIAN
1.5 LOAD CAPACITY
Q kg 1000 1000 1000 1000 1000
1.6 LOAD CENTRE DISTANCE c mm 600 600 762 900 1000
1.8 LOAD DISTANCE, CENTRE OF DRIVE AXLE TO FORK x mm 993 993 1283 1509 1509
1.9 WHEEL BASE y mm 1231 1231 1531 1748 1748
2.1 SERVICE WEIGHT kg 139 (144*) 146 235 (240*) 259 (264*) 262 (267*)
2.2 AXLE LOAD LADED, FRONT/REAR kg 433/706 (438/706*) 436/710 499/736 (504/736*) 518/741 (523/741*) 461/801 (466/801*)
2.3 AXLE LOAD UNLADEN, FRONT/REAR kg 112/27 (117/27*) 118/28 159/76 (164/76*) 170/89 (175/89*) 169/93 (174/93*)
3.1 TYRES G/P G/P G/P G/P G/P
3.2 TYRE SIZE, FRONT (Ø x width) 200x50 200x50 200x50 200x50 200x50
3.3 TYRE SIZE, REAR (Ø x width) 80x50 80x50 80x50 80x50 80x50
3.4 SIDE WHEELS (Ø x width) -----
3.5 WHEELS, NUMBER (x=DRIVEN) FRONT/REAR 2/2 2/2 2/2 2/2 2/2
3.6 TREAD, FRONT
b
10
mm 155 155 155 155 155
3.7 TREAD, REAR (MIN/MAX***)
b
11
mm 447 587 447 447 447
4.4 LIFT
h
3
mm 715 715 715 715 715
4.9 HEIGHT OF TILLER IN DRIVE POSITION MIN/MAX
h
14
mm 915/1300 915/1300 915/1300 915/1300 915/1300
4.15 HEIGHT, LOWERED
h
13
mm 85 85 85 85 85
4.19 OVERALL LENGTH
l
1
mm 1690 1690 2076 2343 2543
4.20 LENGHT TO FACE OF FORKS
l
2
mm 540 540 540 540 540
4.21 OVERALL WIDTH (FRONT/REAR MIN/MAX***)
b
1
mm 540 680 540 540 540
4.22 FORK DIMENSIONS s/e/l mm 48/160/1150 48/160/1150 48/160/1525 48/160/1800 48/160/2000
4.25 DISTANCE BETWEEN FORK ARMS (MIN/MAX***)
b
5
mm 540 680 540 540 540
4.32 GROUND CLEARANCE, CENTRE OF WHEEL BASE
m
2
mm 21 21 21 21 21
4.34 AISLE WIDTH FOR PALLETS 800x1200 LENGHTWISE
A
st
mm 2193 2193 2509 2753 2891
4.35 TURNING RADIUS
W
a
mm 1543 1543 1841 2058 2058
5.2 LIFT SPEED, LADEN/UNLADEN m/s 0,08/0,13 0,08/0,13 0,08/0,13 0,08/0,13 0,08/0,13
5.3 LOWERING SPEED, LADEN/UNLADEN m/s 0,13/0,06 0,13/0,06 0,13/0,06 0,13/0,06 0,13/0,06
6.2 LIFT MOTOR POWER kW 1,6 1,6 1,6 1,6 1,6
6.4 BATTERY VOLTAGE, NOMINAL CAPACITY V/Ah 12/60 (C20) 12/60 (C20) 12/60 (C20) 12/60 (C20) 12/60 (C20)
6.5 BATTERY WEIGHT kg 14 14 14 14 14
8.4 SOUND LEVEL AT DRIVER'S EAR dB(A) 67 67 67 67 67
G=Rubber, P=Polyurethane * On board battery charger version
1.2 MODEL HX10E 1150x540 GEL-PLUS HX10E 1525x540 GEL-PLUS HX10E 1800x540 GEL-PLUS HX10E 2000x540 GEL-PLUS
2.1 SERVICE WEIGHT kg 145 241 265 268
2.2 AXLE LOAD LADED, FRONT/REAR kg 439/706 505/736 524/741 467/801
2.3 AXLE LOAD UNLADEN, FRONT/REAR kg 118/27 165/76 176/89 175/93
4.19 OVERALL LENGTH l1 mm 1720 2106 2373 2573
4.20 LENGHT TO FACE OF FORKS l2 mm 570 570 570 570
4.34 AISLE WIDTH FOR PALLETS 800x1200 LENGHTWISE Ast mm 2223 2539 2783 2921
4.35 TURNING RADIUS Wa mm 1573 1871 2088 2088
6.4 BATTERY VOLTAGE, NOMINAL CAPACITY V/Ah 12/50-60 12/50-60 12/50-60 12/50-60
6.5 BATTERY WEIGHT kg 19 19 19 19
DESCRIPTION
WEIGHTS
TYRES/CHASSISDIMENSIONS
PERFO
RMAN
_CE
DATA
ELECTR
IC
MOTOR
S

Related product manuals