EasyManua.ls Logo

Lifter HX10E - Tekniset Ominaisuudet

Lifter HX10E
Print Icon
To Next Page IconTo Next Page
To Next Page IconTo Next Page
To Previous Page IconTo Previous Page
To Previous Page IconTo Previous Page
Loading...

YHTEENVETO (1.3)
;,250:,;6405(0:<<+,;:0=<
265,,52(@;;k;(9260;<::0=<
265,,52<=(<::0=<
=(956:;5,A(÷*0;,:0=<
203=,;:0=<
2<31,;<:1(2(@;;56;;6:0=<
(22<:0=<
2f@;;k:0=<
/<63;6:0=<
=0261,5,;:05;f:0=<
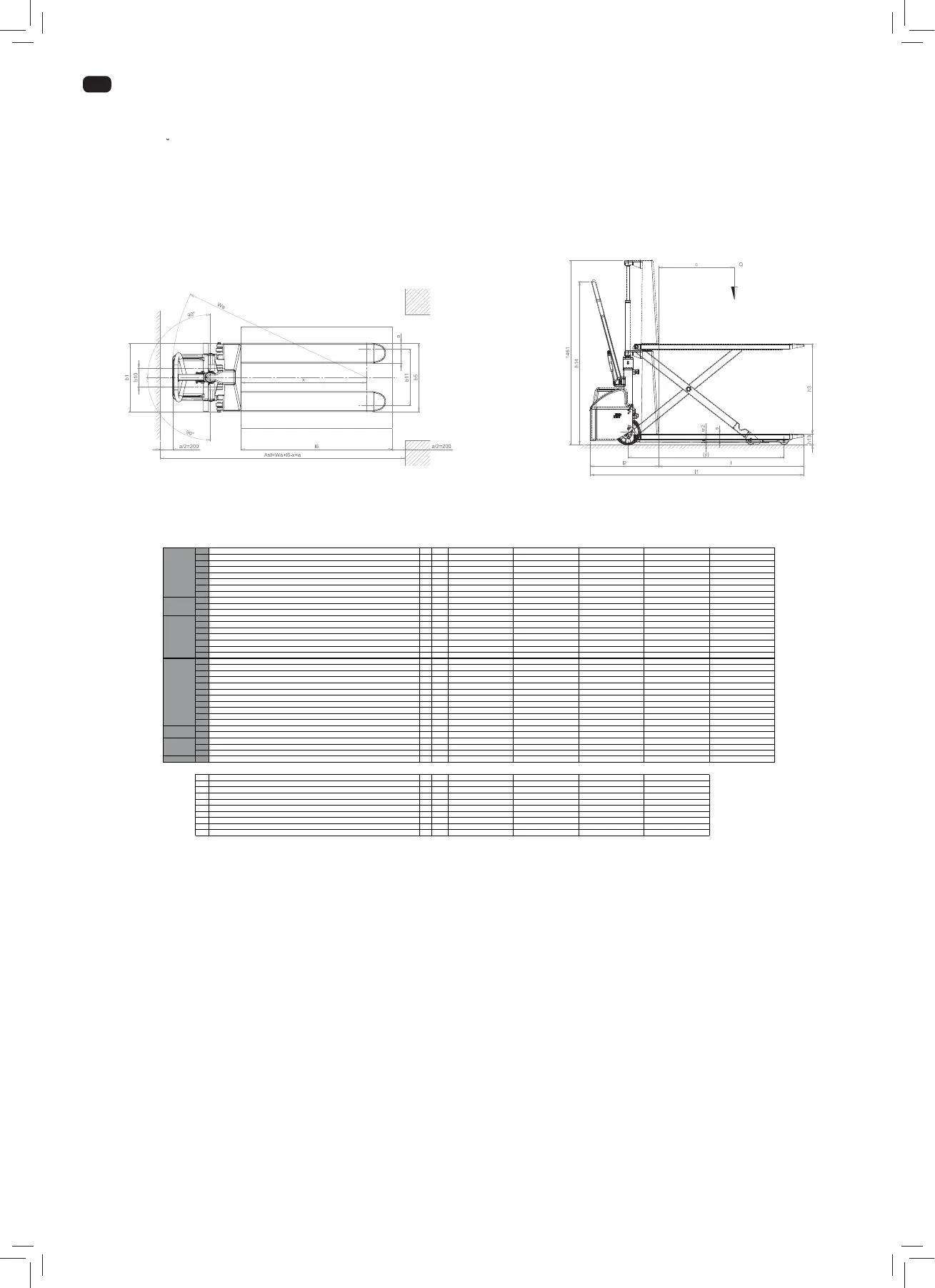
TEKNISET OMINAISUUDET
45
KONEEN KÄYTTÖTARKOITUS (4.2) (KATSO KUVA 1)
;pTpRVULVUZ\\UUP[LS[\R\VYTPLUUVZ[HTPZLLUQHR\SQL[[HTPZLLU[p`ZPU[HZHPZPSSHHS\Z[VPSSH(QHQHRp`[[RVUL[[HRp]LSSLU;\UUPZ[\ZRPSWP(R\]HVZVP[[HHUVZ[VRHWH
ZP[LL[PUQV[HLP[`U[LRPQPKLU[\Y]HSSPZ\\KLUZpPS`[[pTPZLRZPQHHQVUL\]VUWP[pTPZLRZP]HOPUNVP[[\TH[[VTHUHZHHRVZRHHU`SP[[7``KpTTL;LP[pUV\KH[[HTHHURVULLU
[\Y]HSSPZ\\ZRp`[[QHO\VS[VVOQLP[HLOKV[[VTHU[HYRHZ[P4PURp[HOHUZHSPZp]HY\Z[\RZLUHZLU[HTPULURVULLZLLULKLSS`[[=HSTPZ[HQHU]HS[\\[\Z[H;p[p[Y\RRPH]VPKHHU
Rp`[[[`HS\LPSSHQVPSSH[`ZRLU[LSPQpVUWHRV[L[[\\ZLPUW`ZpO[`TUUVZ[HHRZLLUTHU\HHSPZLZ[PR\VYTPH"ZP[p]VPKHHURp`[[ZLRpUVYTHHSPZ[P[Y\RRPUHL[[pT`ZUVZ[L[[H]PZZH
VSL]HUH[`HS\Z[HUH2\VYTHUUVZ[HTPULU]HHKP[[\\URVYRL\[LLU]pOLU[[HWLL[[VTPHWVUUPZ[\RZPHQHWHYHU[HHRPPU[LpUQHSPPRR\]HU[`WHPRHULYNVUVTPZ\\[[H:pORPULU
R\VYTPLUUVZ[VUVWL\[[HHQHOLSWV[[HH[VPZ[\]PH[`RVYRL\KLUT\\[VRZPH
HUOMAA: Käyttäjän korkeudelta täydellä kuormituksella mitattu nenpaine on 70 dB(A); täten jos konetta käytet n usein, suosittelemme käyttäm n kuulosuojaimia
(korvakuulokkeet, korvatulpat jne).
KONEEN KUVAUS (5.3) (KATSO KUVA 2)
1 - Alusta
9HRLUULVU]HSTPZ[L[[\Q\V[[HTHSSHRVYRLHSHH[\PZPZ[HTH[LYPHHSLPZ[HQH[p[LUZLVUYPP[[p]pU]HZ[\Z[\ZR`R`PULUWHPULLSSLQVURHHSHPZLRZP[Y\RRPQV\[\\2HRZPL[\W`YQHZP]\PSSH
VSL]H[]HRH\[[HQH[[HRHH]H[[\RPWPZ[LLU]HRH\KLU
2 - Ohjaustanko
6OQH\Z[HURVHRp`[L[U[Y\RPU[`U[UQHVOQH\RZLLU6OQH\Z[HURVWHSHHH\[VTHH[[PZLZ[P`SpHZLU[VVUR\UZL]HWH\[L[HHU;pTpVUZ\\UUP[LS[\Rp`[[pQpURpZPLUZ\VQHHTPZLR
ZP
3 - Nostosylinteri
5VZ[HHHS\Z[HU[HY]P[[H]HHURVYRL\[LLU`OKLSSpHPUVHSSHSPPRRLLSSp2p`[L[`[TH[LYPHHSP[[HRHH]H[Rp`[[pQpU[\Y]HSSPZ\\KLUTLRHHUPZ[LU]PRVQLURHUUHS[H
4 – Akku
(RR\VU[``WPS[UZ[HY[[PHRR\QHZLZPQHP[ZLLZ\VQHSHH[PRVUU\TLYVZPZpSSpQVRHVUOLSWVZ[PH]H[[H]PZZH(R\U\\KLSSLLUSH[HHTPZLRZP`OKPZ[pHRR\SH[\YPUWPZ[VRLSH[H\ZWPZ[V
YHZPHHUU\TLYVQVRHZPQHP[ZLLRHUUH[PUVZHSSHU\TLYV ;\LUWppSSL\SVZ]LKL[`[ULSQpRHUUH[PU[H]PP[L QHQV\Z[H]HOPOUHLZ[p]p[HR\URHPRRPSPPRRLL[]PP[L2PS]LZ[p
¸-¹R\]HRp`]p[PSTPHR\U[\UUPZ[L[PLKV[
FI
1.1 VALMISTAJA PR INDUSTRIAL PR INDUSTRIAL PR INDUSTRIAL PR INDUSTRIAL PR INDUSTRIAL
1.2 MALLI HX10E 1150x540 HX10E 1150x680 HX10E 1525x540 HX10E 1800x540 HX10E 2000x540
1.3 PROPULSIO
MANUAALINEN MANUAALINEN MANUAALINEN MANUAALINEN MANUAALINEN
1.4 OHJAUSJÄRJESTELMÄ TALUTTETAVA TRUKKI TALUTTETAVA TRUKKI TALUTTETAVA TRUKKI TALUTTETAVA TRUKKI TALUTTETAVA TRUKKI
1.5 KANTOKYKY
Q kg 1000 1000 1000 1000 1000
1.6 PAINOPISTE c mm 600 600 762 900 1000
1.8 KUORMAPYÖRIEN AKSELIVÄLI HAARUKAN ALUSTASTA x mm 993 993 1283 1509 1509
1.9 AKSELIVÄLI y mm 1231 1231 1531 1748 1748
2.1 KÄYTTÖMASSA AKUN KANSSA (katso rivi 6,5) kg 139 (144*) 146 235 (240*) 259 (264*) 262 (267*)
2.2 AKSELIEN KUORMITUS KUORMAN KANSSA, ETU/TAKA kg 433/706 (438/706*) 436/710 499/736 (504/736*) 518/741 (523/741*) 461/801 (466/801*)
2.3 AKSELIEN KUORMITUS ILMAN KUORMAA, ETU/TAKA kg 112/27 (117/27*) 118/28 159/76 (164/76*) 170/89 (175/89*) 169/93 (174/93*)
3.1 RENKAAT G/P G/P G/P G/P G/P
3.2 ETURENKAIDEN MITAT (Ø x leveys) 200x50 200x50 200x50 200x50 200x50
3.3 TAKARENKAIDEN MITAT (Ø x leveys) 80x50 80x50 80x50 80x50 80x50
3.4 SIVURENKAIDEN MITAT (Ø x leveys) -----
3.5 ETU/TAKARENKAIDEN LUKUMÄÄRÄ (x=VETOYKSIKKÖ) 2/2 2/2 2/2 2/2 2/2
3.6 ETURENKAIDEN VÄLI
b
10
mm 155 155 155 155 155
3.7 TAKARENKAIDEN VÄLI (MIN/MAX***)
b
11
mm 447 587 447 447 447
4.4 NOSTOKORKEUS
h
3
mm 715 715 715 715 715
4.9 OHJAUSPYÖRÄN KORKEUS OHJAUSASENNOSSA MIN/MAX
h
14
mm 915/1300 915/1300 915/1300 915/1300 915/1300
4.15 LASKETTUJEN HAARUKOIDEN KORKEUS
h
13
mm 85 85 85 85 85
4.19 KOKONAISPITUUS
l
1
mm 1690 1690 2076 2343 2543
4.20 VETOYKSIKÖN PITUUS
l
2
mm 540 540 540 540 540
4.21 KOKONAISLEVEYS (ETU/TAKA MIN/MAX***)
b
1
mm 540 680 540 540 540
4.22 HAARUKOIDEN MITAT s/e/l mm 48/160/1150 48/160/1150 48/160/1525 48/160/1800 48/160/2000
4.25 HAARUKOIDEN LEVEYS (MIN/MAX***)
b
5
mm 540 680 540 540 540
4.32 VAPAATILA AKSELIVÄLIN PUOLIVÄLISSÄ
m
2
mm 21 21 21 21 21
4.34 PITKITTÄINEN LIIKKUMATILA 800X1200 KOKOISELLE LAVALLE
A
st
mm 2193 2193 2509 2753 2891
4.35 OHJAUSSÄDE
W
a
mm 1543 1543 1841 2058 2058
5.2 NOSTO NOPEUS KUORMALLA JA ILMAN m/s 0,08/0,13 0,08/0,13 0,08/0,13 0,08/0,13 0,08/0,13
5.3 LASKU NOPEUS KUORMALLA JA ILMAN m/s 0,13/0,06 0,13/0,06 0,13/0,06 0,13/0,06 0,13/0,06
6.2 NOSTOMOOTTORIN TEHO kW 1,6 1,6 1,6 1,6 1,6
6.4 AKKUJÄNNITE, NIMELLISTEHO V/Ah 12/60 (C20) 12/60 (C20) 12/60 (C20) 12/60 (C20) 12/60 (C20)
6.5 AKUN PAINOT kg 14 14 14 14 14
8.4 MELUISUUS KÄYTTÄJÄN KORVIEN TASOLLA dB(A) 67 67 67 67 67
G=Kumi, P=Polyuretaani * Tasasuuntaajalla varustettu versio
1.2 MALLI HX10E 1150x540 GEL-PLUS HX10E 1525x540 GEL-PLUS HX10E 1800x540 GEL-PLUS HX10E 2000x540 GEL-PLUS
2.1 KÄYTTÖMASSA AKUN KANSSA (katso rivi 6,5) kg 145 241 265 268
2.2 AKSELIEN KUORMITUS KUORMAN KANSSA, ETU/TAKA kg 439/706 505/736 524/741 467/801
2.3 AKSELIEN KUORMITUS ILMAN KUORMAA, ETU/TAKA kg 118/27 165/76 176/89 175/93
4.19 KOKONAISPITUUS l1 mm 1720 2106 2373 2573
4.20 VETOYKSIKÖN PITUUS l2 mm 570 570 570 570
4.34 PITKITTÄINEN LIIKKUMATILA 800X1200 KOKOISELLE LAVALLE Ast mm 2223 2539 2783 2921
4.35 OHJAUSSÄDE Wa mm 1573 1871 2088 2088
6.4 AKKUJÄNNITE, NIMELLISTEHO V/Ah 12/50-60 12/50-60 12/50-60 12/50-60
6.5 AKUN PAINOT kg 19 19 19 19
KUVAUS
PAINOT
RUNKO/RENKAATMI TAT
SUOR
ITUS
KYKY
SÄHKÖM
OOTTORI
T

Related product manuals