EasyManua.ls Logo

Lifter HX10E - Caracteristicas Técnicas

Lifter HX10E
Print Icon
To Next Page IconTo Next Page
To Next Page IconTo Next Page
To Previous Page IconTo Previous Page
To Previous Page IconTo Previous Page
Loading...
SUMARIO (1.3)
*(9(*;,9Ð:;0*(:;i*50*(:WmN
,473,6+,3(4Í8<05(WmN
+,:*907*0Ô5+,3(4Í8<05(WmN
+0:76:0;0=6:+,:,.<90+(+WmN
73(*(:WmN
;9(5:769;,@7<,:;(,54(9*/(WmN
)(;,9Ð(WmN
<;030A(*0Ô5WmN
4(5<;,5*065,:WmN
)Ø:8<,+(+,3(:(=,9Ð(:WmN
CARACTERISTICAS TÉCNICAS
17
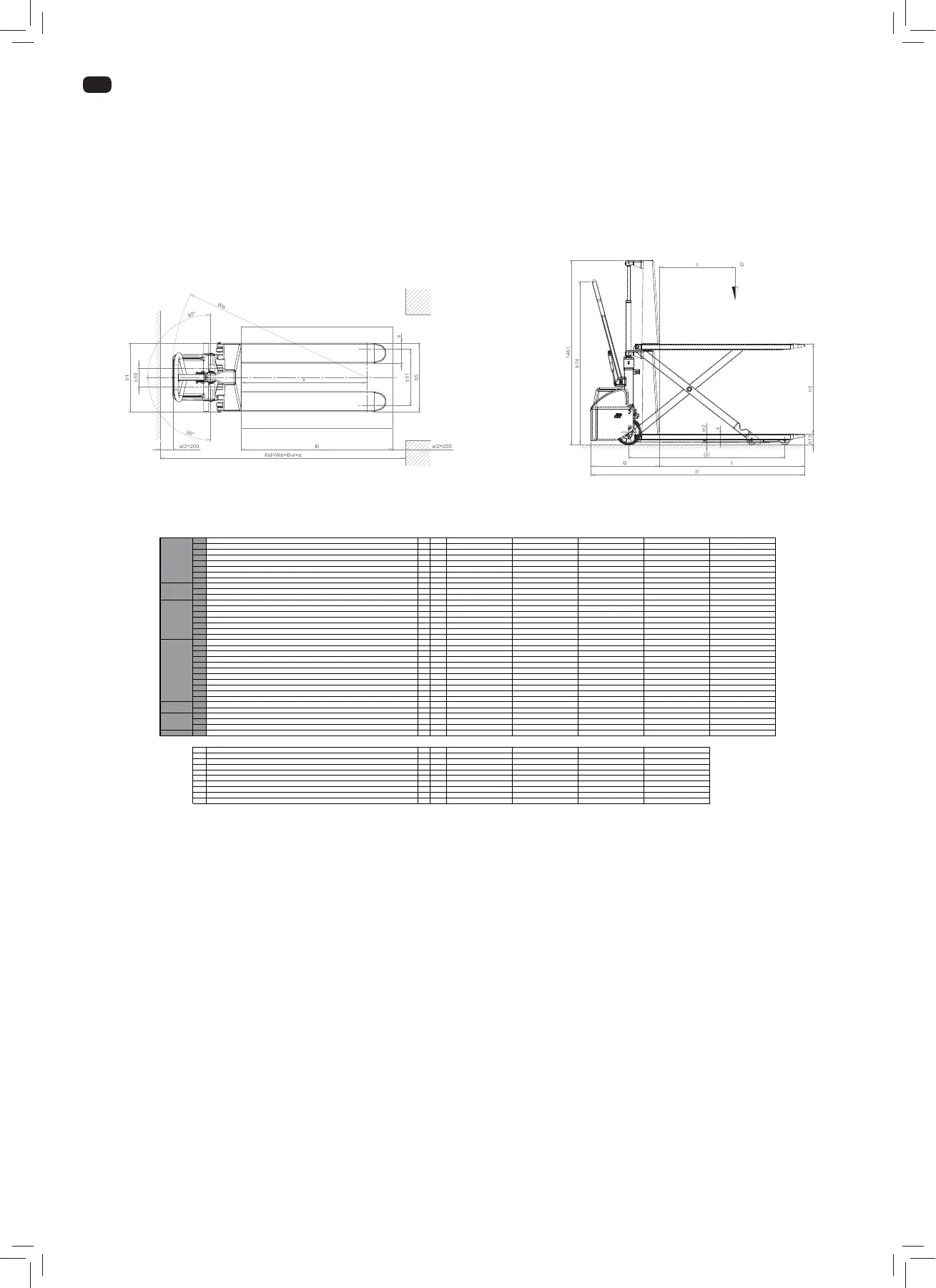
EMPLEO DE LA MÁQUINA (4.2) (VER FIG.1)
,Z[HTmX\PUHOHZPKVWYV`LJ[HKHWHYHLS[YHUZWVY[L`LSSL]HU[HTPLU[VKL\UPKHKLZKLJHYNHZVIYLZ\LSVZSPZVZZPUUPUN\UHHZWLYPKHK`LSJVUK\J[VYKLILYmHJVTWH|HYSH
HWPt3HWSHJHKLPKLU[PÄJHJP}U¸(¹-PNPUKPJHSHJHWHJPKHKKLLSL]HJP}UX\LUVKLILYmZ\WLYHYZLU\UJHWHYHSHZLN\YPKHKKLSWLYZVUHS`WHYHUVKH|HYLS]LOxJ\SV
3LHJVUZLQHTVZJ\TWSPYYPN\YVZHTLU[LJVUSHZKPZWVZPJPVULZHU[PUMVY[\UPV`JVUSHZYLSH[P]HZHSM\UJPVUHTPLU[V`HSHTHU\[LUJP}U,STVU[HQLZVIYLSHTmX\PUHKL\U
LX\PWVVJHZPVUHSJ\HSX\PLYHKLILYmZLYH\[VYPaHKVWVYLS-HIYPJHU[LiZ[HJHYYL[PSSHW\LKLLTWSLHYZLLUS\NHYLZKL[YHIHQVLUSVZJ\HSLZLSVWLYHKVYKLILLUJ\Y]HYZLWHYH
SL]HU[HYJHYNHZTHU\HSTLU[L`WVYT\JOHZ]LJLZHSKxH7\LKL\ZHYZLJVTV[YHUZWHSSL[UVYTHSVJVTV[HISLYVKL[YHIHQVLSL]HISL,SL]HUKVSHJHYNHHSHHS[\YHKLZLHKH
KPZTPU\`LUSVZLZM\LYaVZPU[PSLZ`ZLTLQVYHSHLYNVUVTxHKLSW\LZ[VKL[YHIHQVWHYHKVVT}]PS,SSL]HU[HTPLU[VLStJ[YPJVHJLSLYH`MHJPSP[HSVZJHTIPVZYLWL[P[P]VZKLSHZ
HS[\YHZKL[YHIHQV
Esta máquina emite una presián acústica de 70 dB (A), medidos a nivel del operador y con plena carga. Por lo tanto, para usos intensos, aconsejamos de usar
instrumentos supresores de ruído (auriculares, tapones etc.).
DESCRIPCIÓN DE LA MÁQUINA (5.3) (VER FIG.2)
1 - Chasís
,Z[Y\J[\YHZVSKHKHJVUZ[Y\xKHJVUTH[LYPHSLZKLWYPTLYHJHSPKHKJVUYLZPZ[LUJPHHKLJ\HKHHSVZLZM\LYaVZHSVZJ\HSLZLZ[mZVTL[PKHSHJHYYL[PSSH3VZKVZYVKPSSVZHU[LYPVYLZ
`SVZLZ[HIPSPaHKVYLZSH[LYHSLZHZLN\YHU\UHNYHUKLLZ[HIPSPKHKLUSVZW\U[VZKLHWV`V
2 - Timón
,S[PT}UZPY]LWHYH[PYHY`THUPVIYHYSHJHYYL[PSSH<UT\LSSLHNHZSVOHJL]VS]LYH\[VTm[PJHTLU[LLUWVZPJP}U]LY[PJHSJ\HUKVZLZ\LS[H*VUZ[Y\xKVKLTHULYHKLWYV[LNLY
SHZTHUVZKLSVWLYHKVY
3 - Cilindro de elevación
-\UJPVUHTPLU[VHLMLJ[VZLUJPSSVWLYTP[LSL]HU[HYLSJOHZxZHSHHS[\YHYLX\LYPKH3VZTH[LYPHSLZ\ZHKVZNHYHU[PaHUSHWYV[LJJP}UKLSVWLYHKVYHSVZYPLZNVZTLJmUPJVZ
4 - Batería
3HIH[LYxHLZKLS[PWVHYYHUX\LZLLUJ\LU[YHLULSPU[LYPVYKLSJHW}YLM!MmJPSTLU[LHJJLZPISL7HYHYLJHYNHYSHLZZ\ÄJPLU[LPUZLYPYLSLUJO\MLKLSJHYNHIH[LYxHLUSH[VTH
KLYLJHYNHYLMZP[\HKHLULSZVWVY[LYLM HWV`VZVI[LUPKVZZVIYLLSZVWVY[LYLM `\UHJVYYLHLSmZ[PJHPTWPKLUJ\HSX\PLYTV]PTPLU[VKLSHIH[LYxHYLM3H
WSHJH¸-¹-PNT\LZ[YHSVZKH[VZKLPKLU[PÄJHJP}UKLSHIH[LYxH
ES
1.1 FABRICANTE PR INDUSTRIAL PR INDUSTRIAL PR INDUSTRIAL PR INDUSTRIAL PR INDUSTRIAL
1.2 MODELO HX10E 1150x540 HX10E 1150x680 HX10E 1525x540 HX10E 1800x540 HX10E 2000x540
1.3 SISTEMA PROPULSOR
MANUAL MANUAL MANUAL MANUAL MANUAL
1.4 SISTEMA DE CONDUCCIÓN ACOMPAÑAMIENTO ACOMPAÑAMIENTO ACOMPAÑAMIENTO ACOMPAÑAMIENTO ACOMPAÑAMIENTO
1.5 CAPACIDAD DE CARGA
Q kg 1000 1000 1000 1000 1000
1.6 BARICENTRO c mm 600 600 762 900 1000
1.8 DISTANCIA ENTRE EJE RUEDAS DE CARGA Y BASE HORQUILLA x mm 993 993 1283 1509 1509
1.9 DISTANCIA ENTRE EJES DE RUEDAS ANTERIORES Y POSTERIORES y mm 1231 1231 1531 1748 1748
2.1 PESO EN SERVICIO kg 139 (144*) 146 235 (240*) 259 (264*) 262 (267*)
2.2 CARGA EN EJES CON CARGA, ANTERIOR/POSTERIOR kg 433/706 (438/706*) 436/710 499/736 (504/736*) 518/741 (523/741*) 461/801 (466/801*)
2.3 CARGA EN EJES SIN CARGA, ANTERIOR/POSTERIOR kg 112/27 (117/27*) 118/28 159/76 (164/76*) 170/89 (175/89*) 169/93 (174/93*)
3.1 NEUMÁTICOS G/P G/P G/P G/P G/P
3.2 DIMENSIÓN RUEDAS ANTERIORES (Ø x anchura) 200x50 200x50 200x50 200x50 200x50
3.3 DIMENSIÓN RUEDAS POSTERIORES (Ø x anchura) 80x50 80x50 80x50 80x50 80x50
3.4 DIMENSIÓN RUEDAS LATERALES (Ø x anchura) -----
3.5 CANTIDAD RUEDAS (x=DE TRACCIÓN) ANT./POST. 2/2 2/2 2/2 2/2 2/2
3.6 DISTANCIA ENTRE RUEDAS ANTERIORES
b
10
mm 155 155 155 155 155
3.7 DISTANCIA ENTRE RUEDAS POSTERIORES (MÍN./MÁX.***)
b
11
mm 447 587 447 447 447
4.4 ALTURA ELEVACIÓN
h
3
mm 715 715 715 715 715
4.9 ALTURA DEL TIMÓN EN POSICIÓN DE CONDUCCIÓN MÍN./MÁX.
h
14
mm 915/1300 915/1300 915/1300 915/1300 915/1300
4.15 ALTURA HORQUILLAS BAJAS
h
13
mm 85 85 85 85 85
4.19 LONGITUD TOTAL
l
1
mm 1690 1690 2076 2343 2543
4.20 LONGITUD GRUPO MOTRIZ
l
2
mm 540 540 540 540 540
4.21 ANCHURA TOTAL (ANT./POST. MÍN./MÁX.***)
b
1
mm 540 680 540 540 540
4.22 DIMENSIÓN HORQUILLAS s/e/l mm 48/160/1150 48/160/1150 48/160/1525 48/160/1800 48/160/2000
4.25 ANCHURA HORQUILLAS (MÍN./MÁX.***)
b
5
mm 540 680 540 540 540
4.32 HUELGO HORQUILLAS-PAVIMENTO (EN PUNTO CENTRAL ENTRE RUEDAS ANT. Y POST.)
m
2
mm 21 21 21 21 21
4.34 ESPACIO OPERATIVO NECESARIO PARA PALLETS 800x1200 EN POS. LONGITUDINAL
A
st
mm 2193 2193 2509 2753 2891
4.35 RADIO DE GIRO
W
a
mm 1543 1543 1841 2058 2058
5.2 VELOCIDAD DE ELEVACIÓN, CON/SIN CARGA m/s 0,08/0,13 0,08/0,13 0,08/0,13 0,08/0,13 0,08/0,13
5.3 VELOCIDAD DE BAJADA, CON/SIN CARGA m/s 0,13/0,06 0,13/0,06 0,13/0,06 0,13/0,06 0,13/0,06
6.2 POTENCIA MOTOR DE ELEVACIÓN kW 1,6 1,6 1,6 1,6 1,6
6.4 TENSIÓN BATERÍA, CAPACIDAD NOMINAL V/Ah 12/60 (C20) 12/60 (C20) 12/60 (C20) 12/60 (C20) 12/60 (C20)
6.5 PESO BATERÍA kg 14 14 14 14 14
8.4 RUIDO (EN EL OÍDO DEL OPERADOR) dB(A) 67 67 67 67 67
G=Goma, P=Polìuretano * Versione con rectificador incorporado
1.2 MODELO HX10E 1150x540 GEL-PLUS HX10E 1525x540 GEL-PLUS HX10E 1800x540 GEL-PLUS HX10E 2000x540 GEL-PLUS
2.1 PESO EN SERVICIO kg 145 241 265 268
2.2 CARGA EN EJES CON CARGA, ANTERIOR/POSTERIOR kg 439/706 505/736 524/741 467/801
2.3 CARGA EN EJES SIN CARGA, ANTERIOR/POSTERIOR kg 118/27 165/76 176/89 175/93
4.19 LONGITUD TOTAL l1 mm 1720 2106 2373 2573
4.20 LONGITUD GRUPO MOTRIZ l2 mm 570 570 570 570
4.34 ESPACIO OPERATIVO NECESARIO PARA PALLETS 800x1200 EN POS. LONGITUDINAL Ast mm 2223 2539 2783 2921
4.35 RADIO DE GIRO Wa mm 1573 1871 2088 2088
6.4 TENSIÓN BATERÍA, CAPACIDAD NOMINAL V/Ah 12/50-60 12/50-60 12/50-60 12/50-60
6.5 PESO BATERÍA kg 19 19 19 19
DESCRIPCIÓNPESOS
BASTIDOR/RUEDAS
DIMENSIONES
PRE
STAC
IONE
S
MOTOR
ES
ELÉCTR
ICOS

Related product manuals