EasyManua.ls Logo

Lifter HX10E - Technische Daten

Lifter HX10E
Print Icon
To Next Page IconTo Next Page
To Next Page IconTo Next Page
To Previous Page IconTo Previous Page
To Previous Page IconTo Previous Page
Loading...

INHALTSVERZEICHNIS (1.3)
;,*/50:*/,+(;,5:
.,)9(<*/+,:.,9f;,::
),:*/9,0)<5.+,:.,9f;,::
:0*/,9/,0;:=6990*/;<5.:
;@7,5:*/03+,9:
;9(5:769;<5+05),;90,)5(/4,:
)(;;,90,:
.,)9(<*/:
>(9;<5.:
),:;044<5.=65:*/f+,5:
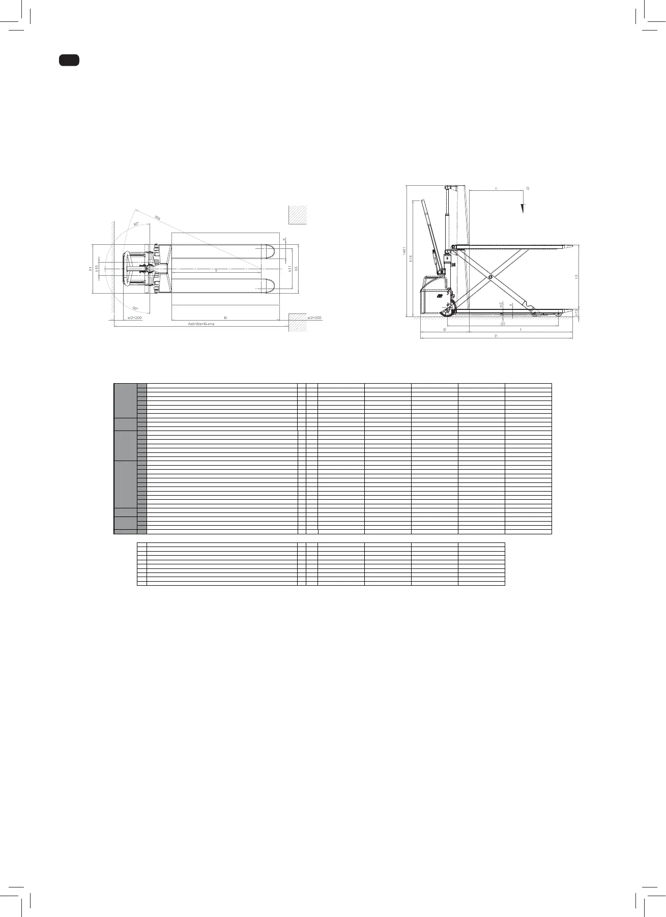
TECHNISCHE DATEN
13
GEBRAUCH DES GERÄTES (4.2) (S. ABB.1)
+PLZLY/\I^HNLU^\YKLMYKLU;YHUZWVY[\UKKHZ/LILU]VU3HZ[LUH\MNSH[[LT<U[LYNY\UKKLYRLPULYSLP<ULILUOLP[LUH\M^LPZ[LU[^PJRLS[+LY-HOYLYILKPLU[POU
NLOLUK+HZ;`WLUZJOPSK¸(¹(IIaLPN[KPL/\ISLPZ[\UNKPLa\Y:PJOLYOLP[KLZ7LYZVUHSZ\UK\TLPUL)LZJOpKPN\UNKLZ/\I^HNLUZa\]LYTLPKLUH\MRLPULU-HSS
ILYZJOYP[[LU^LYKLUKHYMHU,Z^PYKLTWMVOSLUKPL(UTLYR\UNLUa\Y<UMHSS]LYO[\UNa\T)L[YPLI\UKa\Y>HY[\UNKLZ.LYp[LZZ[YLUNa\ILMVSNLU+HZ(UIYPUNLU
]VUPYNLUK^LSJOLUa\Zp[aSPJOLU(\ZYZ[\UNZNLNLUZ[pUKLUT\]VUKLY/LYZ[LSSLYÄYTH+PLZLY/\I^HNLU^PYKHU(YILP[ZWSp[aLULPUNLZL[a[HUKLULUKLY)LU\[aLYZPJO
IJRLUT\\T3HZ[LUTP[KLY/HUKH\Ma\OLILU,YRHUUTLOYTHSZHT;HNLU[^LKLYHSZUVYTHSLY.HILSO\I^HNLUHSZH\JOHSZ/\I[PZJOILU\[a[^LYKLU+\YJOKHZ
(UOLILU]VU3HZ[LUH\MKPLNL^UZJO[L/OL^LYKLU\UU[PNL2YpM[LNLZWHY[\UKKPL,YNVUVTPLKLZVY[ZMLZ[LUVKLYVY[Z]LYpUKLYSPJOLU(YILP[ZWSH[aLZ^PYK]LYILZZLY[
+LYLSLR[YPZJOL/\IILZJOSL\UPN[\UKLYSLPJO[LY[^PLKLYOVS[L/OLUpUKLY\UNLUILPKLY(YILP[
Der bei voller Leistung am Platz des Arbeiters gemessene Schalldruck dieses Gerätes beträgt 70 dB(A). Bei ständigem Gebrauch der Maschine empfehlen wir,
einen Gehörschutz (Ohrenschützer, Oropax usw.) zu benutzen.
BESCHREIBUNG DES GERÄTES (5.3) (S. ABB.2)
1 - Gestell
.LZJO^LP[LY(\MIH\H\Z>LYRZ[VMMLUILZ[LY8\HSP[p[ZLOY^PKLYZ[HUKZMpOPN+LY/\I^HNLUWH[ZPJOHUKPLLU[ZWYLJOLUKLU)LSHZ[\UNLUHU+PLILPKLU]VYKLYLU9VSSLU\UKKPL
ZLP[SPJOLU:[HIPSPZH[VYLUNHYHU[PLYLUNYVL:[HUKMLZ[PNRLP[H\M/HS[LY\UNZW\UR[LU
2 - Deichsel
4P[KLY+LPJOZLS^PYKKLY/\I^HNLUNLaVNLU\UKNLSLUR[>LUUKPL+LPJOZLSSVZNLSHZZLU^PYKRLOY[ZPLTP[/PSMLLPULY.HZMLKLYH\[VTH[PZJOPUKPLZLURYLJO[L:[LSS\UN
a\YJR+LY/\I^HNLU^\YKLZVLU[^VYMLUKHKPL/pUKLKLZ)LKPLULYZNLZJO[a[^LYKLU
3 - Hubzylinder
+LYLPUMHJOL)L[YPLILYTNSPJO[KHZ(UOLILUKLZ.LZ[LSSZPUKPLNL^UZJO[L/OL+PL]LY^LUKL[LU>LYRZ[VMMLNHYHU[PLYLUMYKLU:JO\[aKLZ)LKPLULYZ]VYTLJOHUP
ZJOLU9PZPRLU
4 - Batterie
+PL)H[[LYPLKPLU[a\T:[HY[LU\UKILÄUKL[ZPJOPT0UULYUKLZLU[ZWYLJOLUKLU.LOp\ZLZ;LPS:PLPZ[SLPJO[a\NpUNSPJOA\T(\ÅHKLUPZ[LZH\ZYLPJOLUKKLU:[LJRLY
KLZ)H[[LYPLSHKLNLYp[LZPUKPL:[LJRKVZLa\T(\ÅHKLU;LPSH\MKLY/HS[LY\UN;LPS LPUa\MOYLUH\MKLT;YpNLYNLIH\[L:[[aL)La \UKLPULSHZ[PZJOLY9PLTLU
DE
1.1 HERSTELLER PR INDUSTRIAL PR INDUSTRIAL PR INDUSTRIAL PR INDUSTRIAL PR INDUSTRIAL
1.2 TYPZEICHEN DES HERSTELLERS HX10E 1150x540 HX10E 1150x680 HX10E 1525x540 HX10E 1800x540 HX10E 2000x540
1.3 ANTRIEB
HAND HAND HAND HAND HAND
1.4 BEDIENUNG GEH GEH GEH GEH GEH
1.5 TRAGFÄHIGKEIT
Q kg 1000 1000 1000 1000 1000
1.6 LASTSCHWERPUNKTABSTAND c mm 600 600 762 900 1000
1.8 LASTABSTAND x mm 993 993 1283 1509 1509
1.9 RADSTAND y mm 1231 1231 1531 1748 1748
2.1 EIGENGEWICHT kg 139 (144*) 146 235 (240*) 259 (264*) 262 (267*)
2.2 ACHLAST MIT LAST VORN/HINTEN kg 433/706 (438/706*) 436/710 499/736 (504/736*) 518/741 (523/741*) 461/801 (466/801*)
2.3 ACHLAST OHNE LAST VORN/HINTEN kg 112/27 (117/27*) 118/28 159/76 (164/76*) 170/89 (175/89*) 169/93 (174/93*)
3.1 BEREIFUNG G/P G/P G/P G/P G/P
3.2 REIFENGRÖßE, VORN 200x50 200x50 200x50 200x50 200x50
3.3 REIFENGRÖßE, HINTEN (Ø x Breite) 80x50 80x50 80x50 80x50 80x50
3.4 ZUSATZRÄDER (Ø x Breite) -----
3.5 RÄDER, ANZAHL (x=ANGETRIEBEN) VORN/HINTEN 2/2 2/2 2/2 2/2 2/2
3.6 SPURWEITE, VORN
b
10
mm 155 155 155 155 155
3.7 SPURWEITE, HINTEN (MIN/MAX***)
b
11
mm 447 587 447 447 447
4.4 HUB
h
3
mm 715 715 715 715 715
4.9 HÖHE DEICHSEL IN FAHRSTELLUNG MIN/MAX
h
14
mm 915/1300 915/1300 915/1300 915/1300 915/1300
4.15 HÖHE GESENKT
h
13
mm 85 85 85 85 85
4.19 GESAMTLÄNGE
l
1
mm 1690 1690 2076 2343 2543
4.20 LÄNGE EINSCHL. GABELRÜCKEN
l
2
mm 540 540 540 540 540
4.21 GESAMTBREITE (VORN/HINTEN MIN/MAX***)
b
1
mm 540 680 540 540 540
4.22 GABELZINKENMAßE s/e/l mm 48/160/1150 48/160/1150 48/160/1525 48/160/1800 48/160/2000
4.25 GABELAUßENABSTAND (MIN/MAX***)
b
5
mm 540 680 540 540 540
4.32 BODENFREIHEIT MITTE RADSTAND
m
2
mm 21 21 21 21 21
4.34 ARBEITSGANGBREITE BEI PALETTE 800x1200 QUER
A
st
mm 2193 2193 2509 2753 2891
4.35 WENDERADIUS
W
a
mm 1543 1543 1841 2058 2058
5.2 HUBGESCHWINDIGKEIT MIT/OHNE LAST m/s 0,08/0,13 0,08/0,13 0,08/0,13 0,08/0,13 0,08/0,13
5.3 SENKGESCHWINDIGKEIT MIT/OHNE LAST m/s 0,13/0,06 0,13/0,06 0,13/0,06 0,13/0,06 0,13/0,06
6.2 HUBMOTOR, LEISTUNG kW 1,6 1,6 1,6 1,6 1,6
6.4 BATTERIESPANNUNG, NENNKAPAZITÄT V/Ah 12/60 (C20) 12/60 (C20) 12/60 (C20) 12/60 (C20) 12/60 (C20)
6.5 BATTERIEWICHT kg 14 14 14 14 14
8.4 SCHALLDRUCKPEGEL, FAHREROHR dB(A) 67 67 67 67 67
G=Gummi, P=Polyurethan * Version mit gleichrichter an bord
1.2 TYPZEICHEN DES HERSTELLERS HX10E 1150x540 GEL-PLUS HX10E 1525x540 GEL-PLUS HX10E 1800x540 GEL-PLUS HX10E 2000x540 GEL-PLUS
2.1 EIGENGEWICHT kg 145 241 265 268
2.2 ACHLAST MIT LAST VORN/HINTEN kg 439/706 505/736 524/741 467/801
2.3 ACHLAST OHNE LAST VORN/HINTEN kg 118/27 165/76 176/89 175/93
4.19 GESAMTLÄNGE l1 mm 1720 2106 2373 2573
4.20 LÄNGE EINSCHL. GABELRÜCKEN l2 mm 570 570 570 570
4.34 ARBEITSGANGBREITE BEI PALETTE 800x1200 QUER Ast mm 2223 2539 2783 2921
4.35 WENDERADIUS Wa mm 1573 1871 2088 2088
6.4 BATTERIESPANNUNG, NENNKAPAZITÄT V/Ah 12/50-60 12/50-60 12/50-60 12/50-60
6.5 BATTERIEWICHT kg 19 19 19 19
KENNZEICHEN
GEWICHT
FAHRWERK/RÄDERGRUNDABMESSUNGEN
LEIS
TUN
GDA
TEN
E-
MOTOR

Related product manuals