EasyManua.ls Logo

Linak LA34 - Page 82

Default Icon
295 pages
Print Icon
To Next Page IconTo Next Page
To Next Page IconTo Next Page
To Previous Page IconTo Previous Page
To Previous Page IconTo Previous Page
Loading...
Page 82 of 295
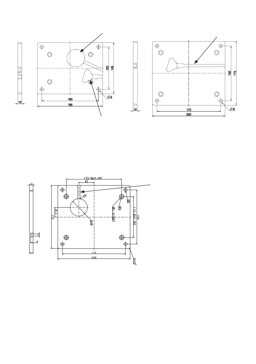
BL1 end plate kit with cable through:
Top plate dimensions:
Bottom plate dimensions:
Motor cable
Hand control cable
Hand control cable
Please notice the thickness of the bottom plate is 12 mm. The thickness of the bottom plate without connections is 10 mm.
Bottom plate dimensions:
Motor cable
Drawing no.: 0801263-A

Table of Contents

Related product manuals