EasyManua.ls Logo

Linear HSLG Series - Mounting Pad Installation; Gate Preparation; Mounting Specifications

Linear HSLG Series
36 pages
Print Icon
To Next Page IconTo Next Page
To Next Page IconTo Next Page
To Previous Page IconTo Previous Page
To Previous Page IconTo Previous Page
Loading...
HSLG Slide Gate Operator Installation Guide - 3 - P1220 X14
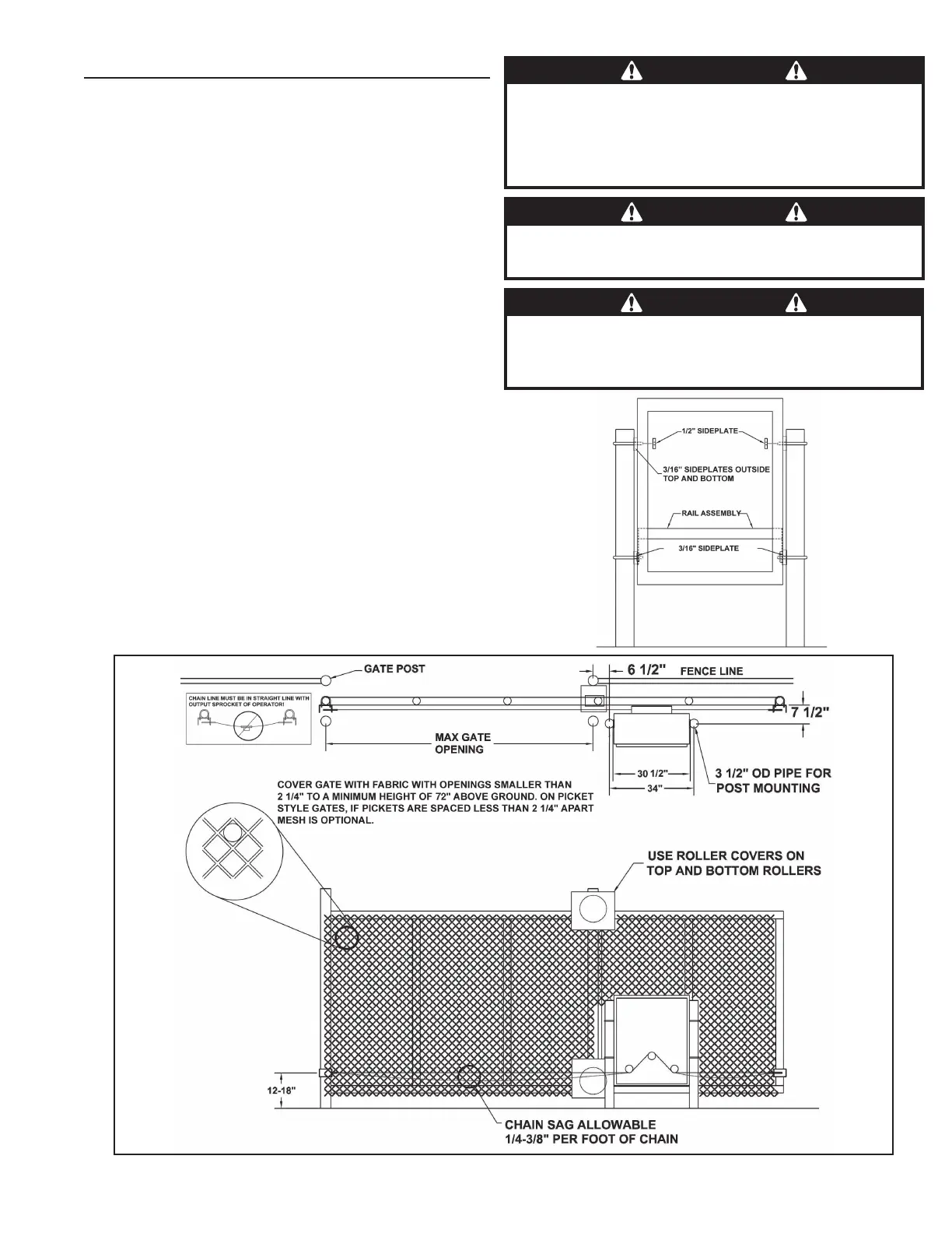
Mounting Pad Installation
The gate operator mounts bolted to posts secured in concrete footings.
The posts support the operator and prevent it from moving during
operation. For optional pad mounting instructions, see Linear drawing
#2700-360.
Gate Preparation
Before installing, make sure the gate rolls or slides freely, and that all
exposed rollers are properly covered. The gate must be covered with
fabric with openings no larger than 2-1/4” in size, to a minimum height
of 72” above ground level. On picket-style gates, if pickets are spaced
less than 2-1/4” apart, mesh is optional.
Mounting Specications
Use two 3 - 3-1/2” OD galvanized posts and secure with concrete
footings as shown, length to be determined by local codes, frost line
depth and soil conditions.
Attach the operator with the U-bolts, side plates and hardware provided.
Four 3/16” side plates go on the outside top and bottom, two 1/2” side
plates go on the inside top, and two 3/16” side plates go on the inside
bottom (see the illustration at right).
To assemble the drive chain and gate brackets, refer to Page 4. Make sure
that the chain sag does not exceed recommended sizes and that the chain
does not come into contact with the moving parts of the gate or ground.
Figure 2. Post Mounting Specications
WARNING
The operator is intended for installation only on gates used for
vehicles. Pedestrians must be supplied with a separate access
opening. The pedestrian access opening shall be designed to
promote pedestrian usage. Locate the gate such that persons
will not come into contact with the vehicular gate during the
entire path of travel of the vehicular gate.
WARNING
The gate must be installed in a location so that enough clearance
is supplied between the gate and adjacent structures when
opening and closing to reduce the risk of entrapment.
Figure 1. Side
Plate Installation
WARNING
The gate must be properly installed and work freely in both
directions prior to the installation of the gate operator. Do
not adjust the force setting to compensate for an improperly
installed, improperly functioning, or damaged gate.
www.LinearGateOpeners.com | (888) 378-1053 | Sales@LinearGateOpeners.com

Related product manuals