EasyManua.ls Logo

Locknetics 101+ - 101+;101-2+;101+DB Wiring Information; Monitoring(Alarm,Dsm,Mbs);Control Wiring

Locknetics 101+
22 pages
Print Icon
To Next Page IconTo Next Page
To Next Page IconTo Next Page
To Previous Page IconTo Previous Page
To Previous Page IconTo Previous Page
Loading...
101+ DELAYED EGRESS
MAGNETIC LOCKING SYSTEM
11
FORM 10111 Rev. C 04/11/2002
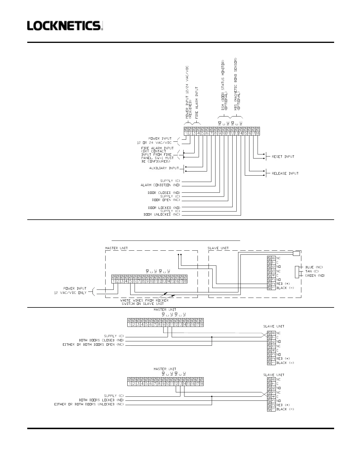
101+ BASIC WIRING:
101-2+ and 101+DB
REQUIRED WIRING:
101-2+ DOOR STATUS(DSM):
101-2+ LOCK STATUS (MBS):
On the 101-2+ model the flying leads provided for wiring between units can be extended as required. Make sure that a
good connection is made. The anti-tamper switch(ATS option) for the slave unit has flying leads whereas the ATS for the
master unit is wired directly to the PC board and will sound the on-board alarm.
On 101+DB units, do not change or modify the factory-installed wiring.