EasyManua.ls Logo

Locknetics 101+ - Overall Dimensions; Physical Dimensions Diagrams

Locknetics 101+
22 pages
Print Icon
To Previous Page IconTo Previous Page
To Previous Page IconTo Previous Page
Loading...
101+ DELAYED EGRESS
MAGNETIC LOCKING SYSTEM
22
FORM 10111 Rev. C 04/11/2002
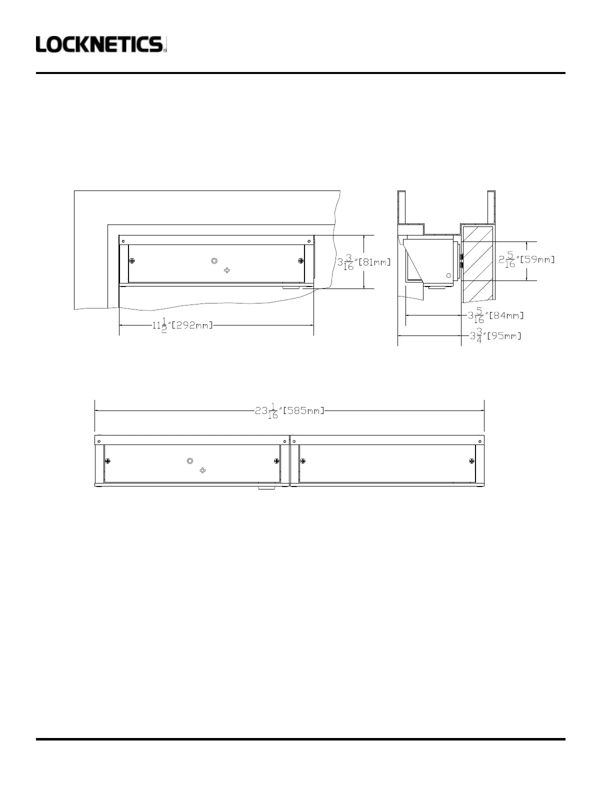
OVERALL DIMENSIONS
101+
101-2+
101+DB