EasyManua.ls Logo

LSIS XBC-DN30SU - Troubleshooting Examples; Input Circuit Troubles and Corrective Actions

LSIS XBC-DN30SU
384 pages
Print Icon
To Next Page IconTo Next Page
To Next Page IconTo Next Page
To Previous Page IconTo Previous Page
To Previous Page IconTo Previous Page
Loading...
Chapter 15 Troubleshooting
15-8
~
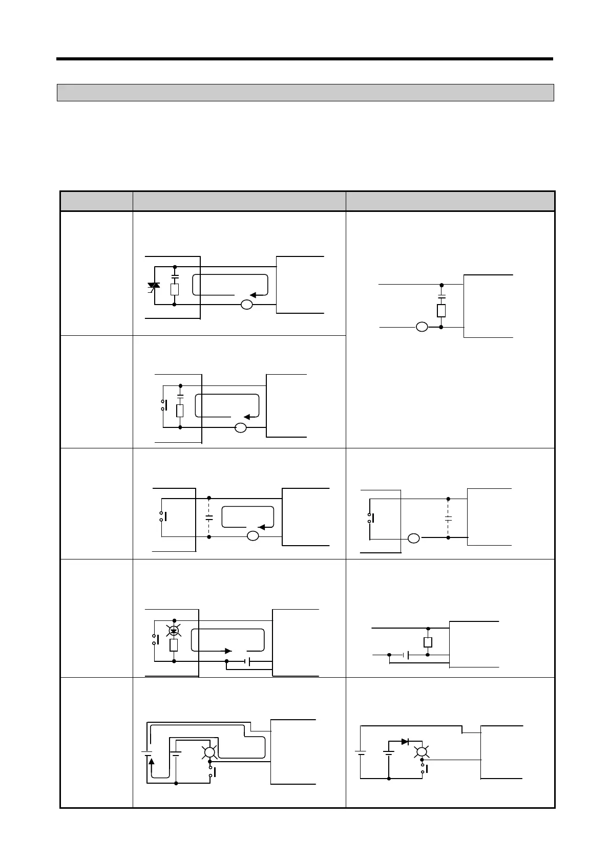
15.4 Troubleshooting Examples
Possible troubles with various circuits and their corrective actions are explained.
15.4.1 Input circuit troubles and corrective actions
The followings describe possible troubles with input circuits, as well as corrective actions.
Condition
Cause
Corrective Actions
Input signal
doesn’t turn
off.
Leakage current of external device
(Such as a drive by non-contact switch)
Connect an appropriate register and
capacity, which will make the voltage lower
across the terminals of the input module.
CR values are determined by the leakage
current value.
Recommended value C : 0.1 ~ 0.47
R: 47 ~ 120 (1/2W)
Or make up another independent display
circuit.
Input signal
doesn’t turn
off.
(Neon lamp
may be still
on)
Leakage current of external device
(Drive by a limit switch with neon lamp)
Input signal
doesn’t turn
off.
Leakage current due to line capacity of wiring
cable.
Locate the power supply on the external
device side as shown below.
Input signal
doesnt turn
off.
Leakage current of external device (Drive by
switch with LED indicator)
Connect an appropriate register, which will make
the voltage higher than the OFF voltage across the
input module terminal and common terminal.
Input signal
doesnt turn
off.
Sneak current due to the use of two
different power supplies.
E1 > E2, sneaked.
Use only one power supply.
Connect a sneak current prevention diode.
C
AC input
R
~
C
External device
AC input
R
Leakage current
~
C
External device
AC input
R
Leakage current
AC input
External device
~
External device
AC input
Leakage current
~
E
1
DC input
L
E
2
E1
DC input
L
E
2
External device
DC input
R
Leakage current
DC input
R
www.behaotomasyon.com
www.behaotomasyon.com

Table of Contents

Related product manuals