EasyManua.ls Logo

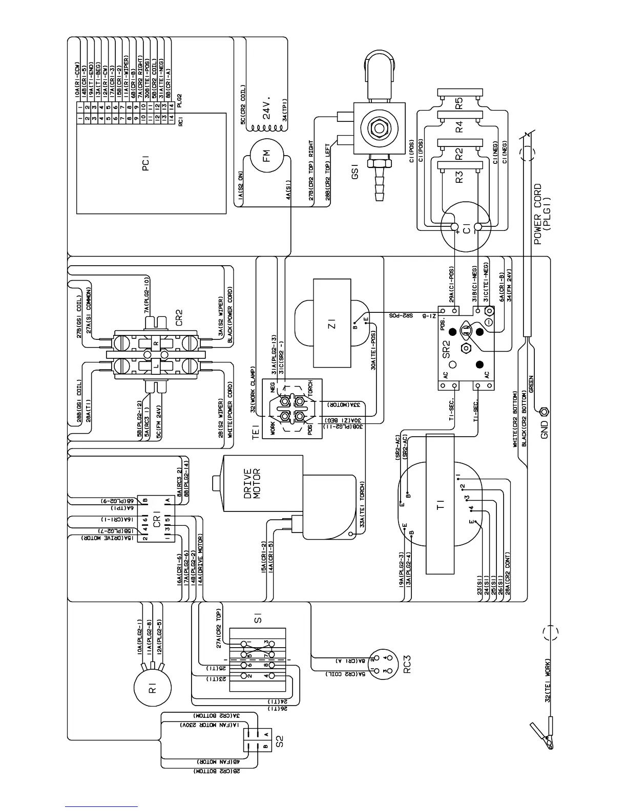
MAC TOOLS MW150K - SECTION 5 - ELECTRICAL DIAGRAMS; Figure 5-2. Wiring Diagram For Welding Power Source

MAC TOOLS MW150K
20 pages
Print Icon
To Next Page IconTo Next Page
To Next Page IconTo Next Page
To Previous Page IconTo Previous Page
To Previous Page IconTo Previous Page
Loading...
OM-154 500 Page 13
Figure 5-2. Wiring Diagram For Welding Power Source
SC-163 085

Related product manuals