EasyManua.ls Logo

Mackie CFX20 - Page 73

Mackie CFX20
125 pages
Print Icon
To Next Page IconTo Next Page
To Next Page IconTo Next Page
To Previous Page IconTo Previous Page
To Previous Page IconTo Previous Page
Loading...
D-3
©2000 Mackie Designs Inc. All rights reserved
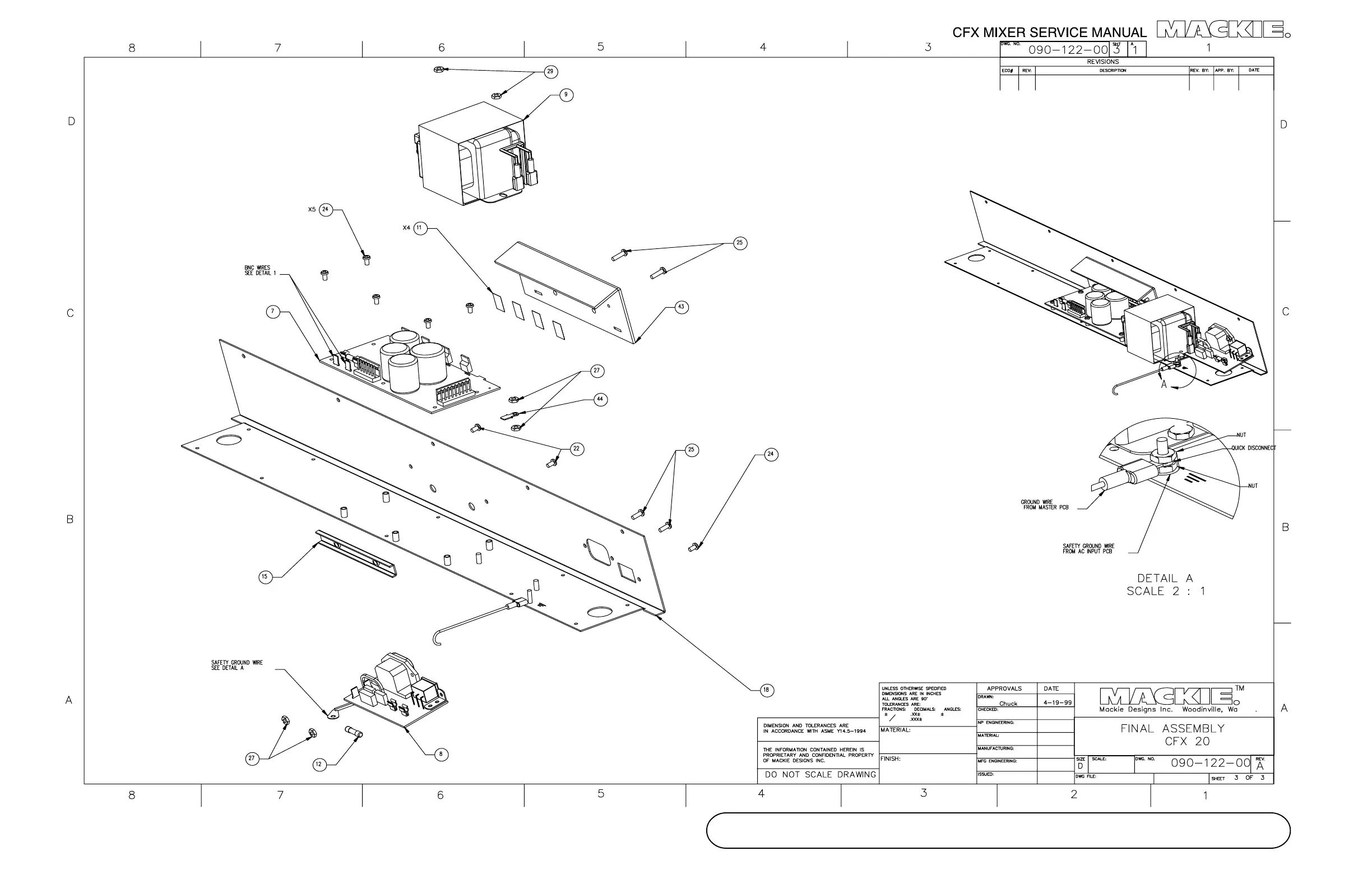
CFX20 EXPLODED VIEWS

Related product manuals