EasyManua.ls Logo

Mackie Thump18S - Page 6

Mackie Thump18S
26 pages
Print Icon
To Next Page IconTo Next Page
To Next Page IconTo Next Page
To Previous Page IconTo Previous Page
To Previous Page IconTo Previous Page
Loading...
Thump18S Powered Subwoofer
6
Thump18S Powered Subwoofer
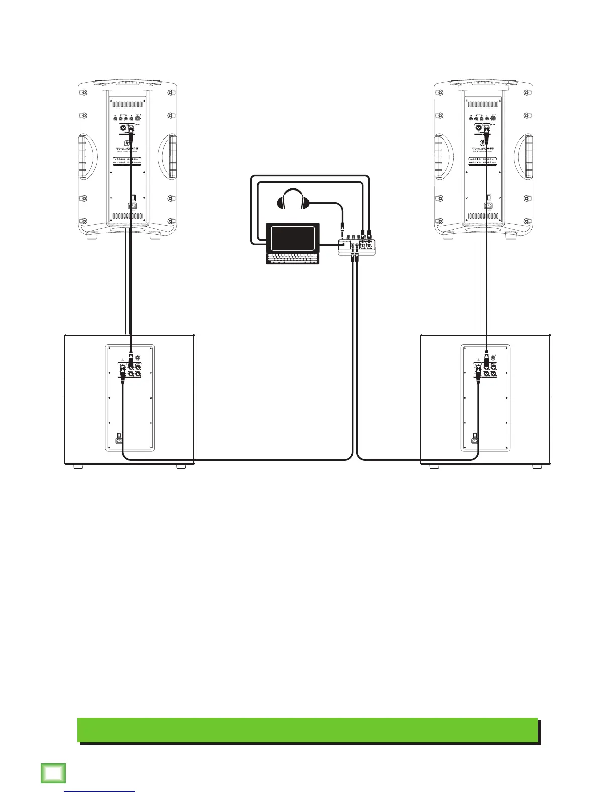
DJ System
O
N
Y
X
M
I
C
P
R
E
LR
2 1
MONITOR OUT
BAL/UNBAL
USB
BAL/UNBAL
O
N
Y
X
M
I
C
P
R
E
Hookup Diagrams continued...
Perhaps you’re a DJ playing bumpin’ tunes in the middle of the night to a crowd that’s groovin’
and dancin’ to your fine selection.
In this example, a laptop is connected to the channel 1 and 2 inputs of an Onyx Blackjack and a set of
headphones are connected to the phones jack.
The L/R monitor outputs of the Onyx Blackjack are connected directly to the channel A inputs of each
Thump18S subwoofer.
The channel A high pass output of each Thump18S subwoofer is connected directly to the input of each
Thump15 loudspeaker.

Other manuals for Mackie Thump18S

Related product manuals