EasyManua.ls Logo

Maco HS Salamander evolution Drive 82 - Locking Bolts A, K, D

Default Icon
52 pages
Print Icon
To Next Page IconTo Next Page
To Next Page IconTo Next Page
To Previous Page IconTo Previous Page
To Previous Page IconTo Previous Page
Loading...
37
2
D
C
B
A
25 2937
25 2937
25 2937
25 2937
25
29
37
22
!
A
5
A
15
No. 363159
Ø4,8x38
Ø 4,2
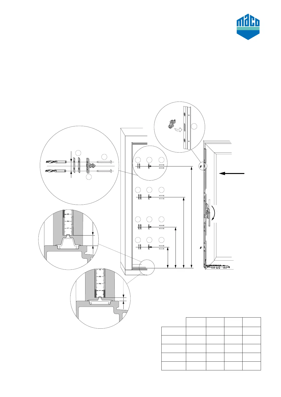
Assembly on the sash and frame
Locking bolts A, K, D
A B C D
Size 1 202 - - 592
Size 2 202 - 592 1107
Size 3 202 702 1192 1507
Size 4 202 702 1192 1907
Size 5 202 702 1192 2307