EasyManua.ls Logo

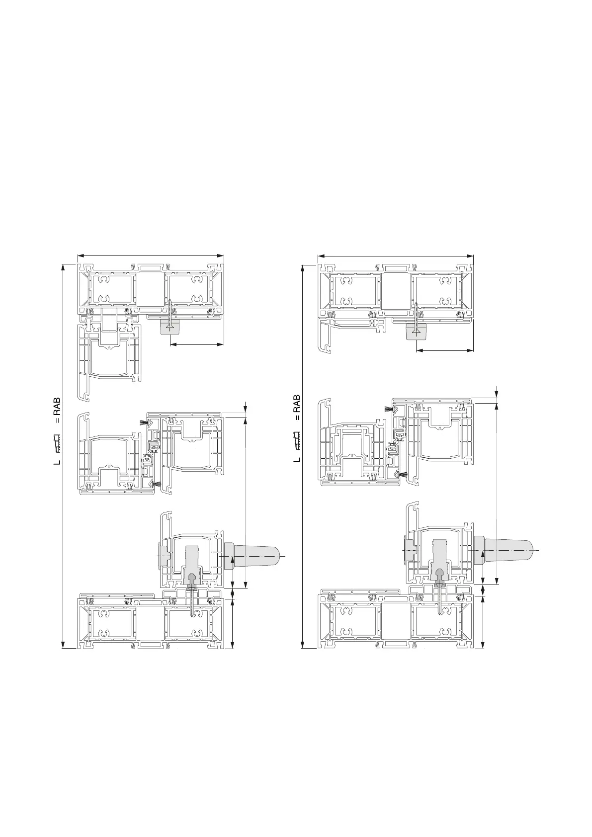
Maco HS Salamander evolution Drive 82 - Horizontal Cross-Section; Scheme A

Default Icon
52 pages
Print Icon
To Next Page IconTo Next Page
To Next Page IconTo Next Page
To Previous Page IconTo Previous Page
To Previous Page IconTo Previous Page
Loading...
46
7
68
68
FB = RAB / 2 - 32,5
65
14
42
65
14
42
7
FB = RAB / 2 - 32,5
190
190
Standard Design
Horizontal cross-section
Scheme A