EasyManua.ls Logo

Magic 105 - MAGIC 180° INSTALLATION; Transmission Lever Configuration for 180° Arc; MECHANICAL STOPPER ADJUSTMENT; Adjusting MAGIC 105° Mechanical Stopper

Magic 105
Print Icon
To Next Page IconTo Next Page
To Next Page IconTo Next Page
To Previous Page IconTo Previous Page
To Previous Page IconTo Previous Page
Loading...
24
ADJUSTMENT OF MAGIC 105° MECHANICAL STOPPER
MAGIC system requires no floor stops or other accessories as the gate travel limit is
determined by means of set screws located internally of the box. Access to the screws is
gained by lifting the cover.
- To adjust the travel limit for the opening movement of the gate, simply turn the screw (A)
left or right as appropriate, then secure the lock nut to prevent the screw from slipping out
of position subsequently (fig. 11).
The procedure is the same for the screw (C) controlling the closing movement.
11
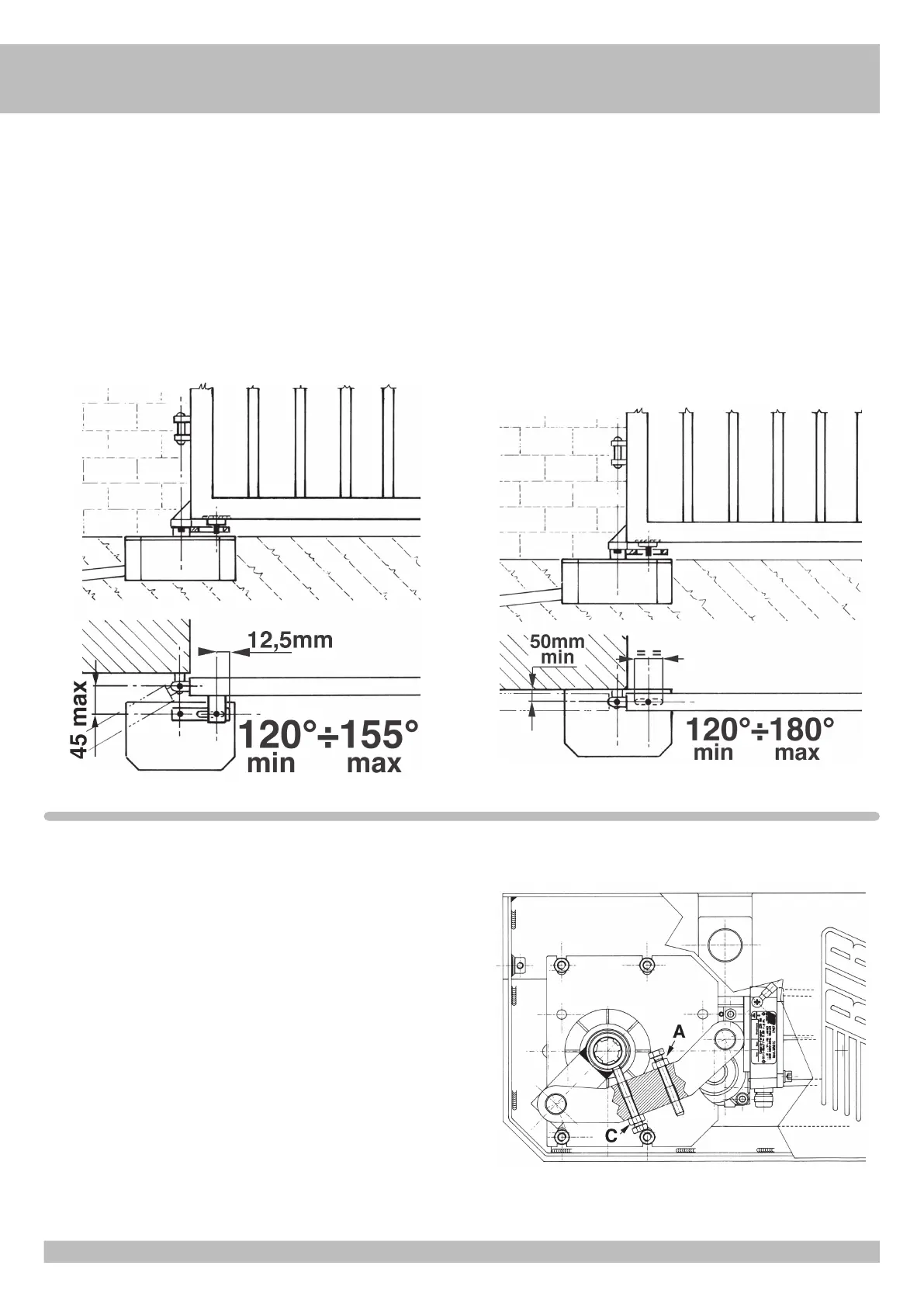
MAGIC 180° INSTALLATION
MAGIC 180° is universal and can be fitted to a left or right hand opening gate; the procedure
is the same as for the 105°, with the following exception:
- Anchor the box with cement mortar, taking care that none of the mix finds its way into the
enclosure, and checking that the shorter sides are faultlessly square with the gate when
in the SHUT position, depending on the required opening arc.
The connection between gate and lever can be made as indicated in figs 9 and 10.
NB - When converting an existing gate with a load bearing support at ground level, the
MAGIC unit can be utilized as a replacement support (see installation fig 10).
- Insert the bolts for cover fixing in places cut into the foundation box.
FIG. 9 - TRANSMISSION LEVER
WITH MAXIMUM OPENING ARC OF 155°
A - DO NOT USE
B - Weld to the gate with pivot as shown in Fig. 9.
FIG. 10 - TRANSMISSION LEVER
WITH MAXIMUM OPENING ARC OF 180°
A - Use only when the gate weighs on the motor. N.B. Do not use with load-bearing hinges.
B - Weld to the gate with pivot as shown in Fig. 10.
9 10
G
B