EasyManua.ls Logo

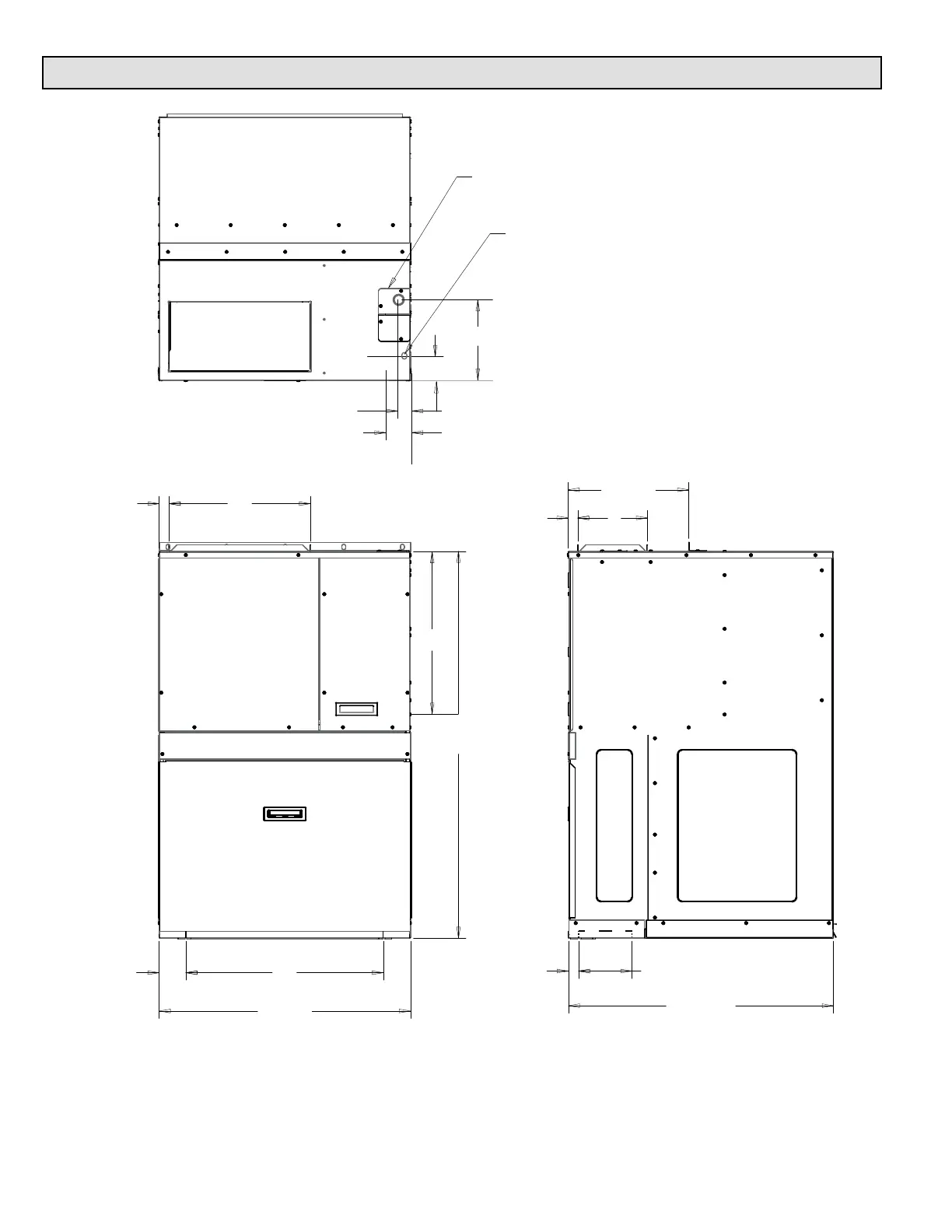
magicpak EWC V-Series - Unit Dimensions

Default Icon
12 pages
Print Icon
To Next Page IconTo Next Page
To Next Page IconTo Next Page
To Previous Page IconTo Previous Page
To Previous Page IconTo Previous Page
Loading...
Page 2 of 12 507390-03Issue 2217
22
27-7/8
29-7/16
13-3/8
43-3/16
18-1/4
2-7/8
161
61
81
Supply
Return
Thermostat Wiring
Connections
Supply
Line Voltage
Connections
1-3/4
8
2 3/4
1-1/2
Supply
Unit Dimensions

Related product manuals