EasyManua.ls Logo

Manaras OPH - Electrical Drawings; Phase Operator - Hardwired Wiring

Default Icon
48 pages
Print Icon
To Next Page IconTo Next Page
To Next Page IconTo Next Page
To Previous Page IconTo Previous Page
To Previous Page IconTo Previous Page
Loading...
34
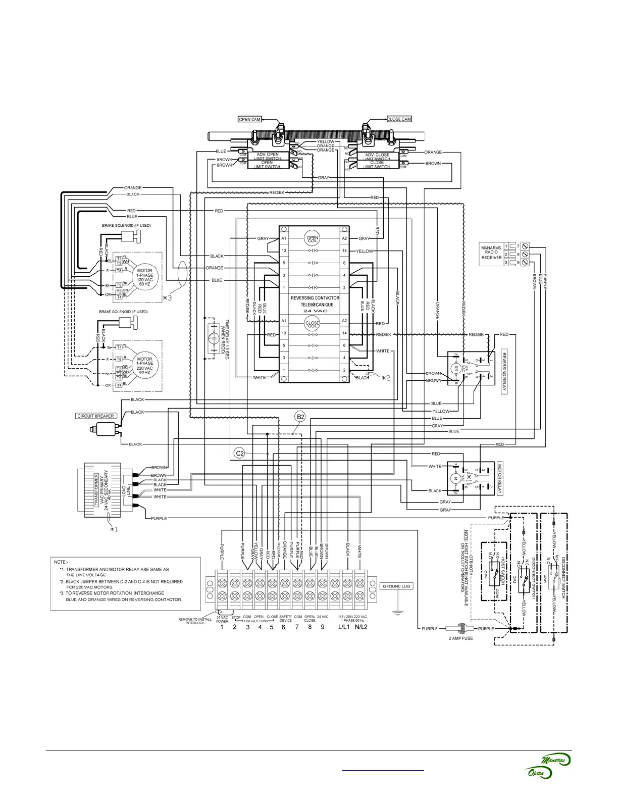
3 Electrical Drawings
3.1 1 Phase Operator – Hardwired Wiring
For technical support, please call 1-800-361-2260 or visit www.manaras.com for more information
Figure 42 - EDWG11HWLC4401

Table of Contents

Related product manuals