EasyManua.ls Logo

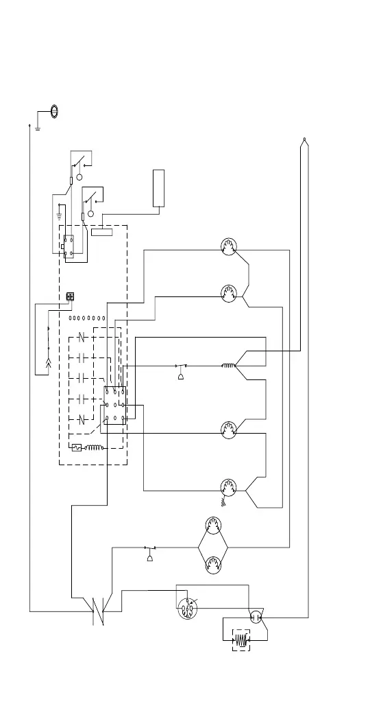
Manitowoc UYF0310W - U0310 Wiring Diagram Prior to Thermistor Terminal - 1 PH Air;Water

Manitowoc UYF0310W
260 pages
Print Icon
To Next Page IconTo Next Page
To Next Page IconTo Next Page
To Previous Page IconTo Previous Page
To Previous Page IconTo Previous Page
Loading...
244 Part Number 000014797 Rev02 05/18


Self Contained Air & Water-cooled
RED
WHT
1
2
3
4
L1
(14) BRN
(12) PRPL
(15) BRN
(48) BLK
C
S
R
S
040003315 REV05
(30) BLU
(32) BLK
(8)
BLU
(7)
BLU
(32) BLK
(31) BLU
(30) BLU
(10)
BLU
(11)
BLU
L2 (N)
(42) WHT
(37) ORG
(2) BLU
(4) YEL
(3) YEL
(6) RED
(5) PNK
(34) PRPL
GRD
(47) YEL
(49) RED
R
(46) ORG (45) BLU
5
11
25
42
17
56
55
41
19
28
18
7
9
40
14
27
26
58
31
14
34
3

Table of Contents

Related product manuals