EasyManua.ls Logo

Mark ERV500 - Page 132

Mark ERV500
160 pages
Print Icon
To Next Page IconTo Next Page
To Next Page IconTo Next Page
To Previous Page IconTo Previous Page
To Previous Page IconTo Previous Page
Loading...
132
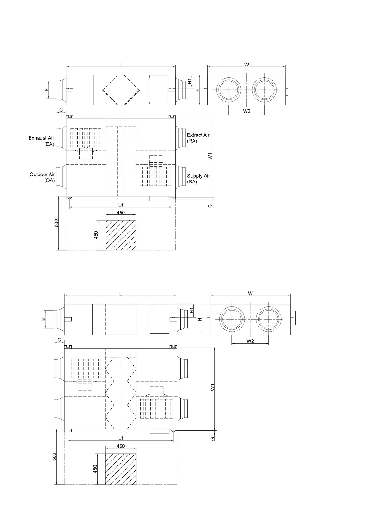
DIMENSIUNI
ERV1000 MODEL
ERV500 MODEL
Capac
tablou
electric
EA = Evacuare aer viciat
OA = Aer proaspat
RA = Aspiratie aer
SA = Introducere aer
Capac
tablou
electric
Evacuare
aer viciat
Aer proas-
pat
Aspiratie
aer
Introdu-
cere aer
Uşă de
acces
Uşă de acces

Related product manuals