EasyManua.ls Logo

Mark ERV500 - Page 133

Mark ERV500
160 pages
Print Icon
To Next Page IconTo Next Page
To Next Page IconTo Next Page
To Previous Page IconTo Previous Page
To Previous Page IconTo Previous Page
Loading...
RO
133
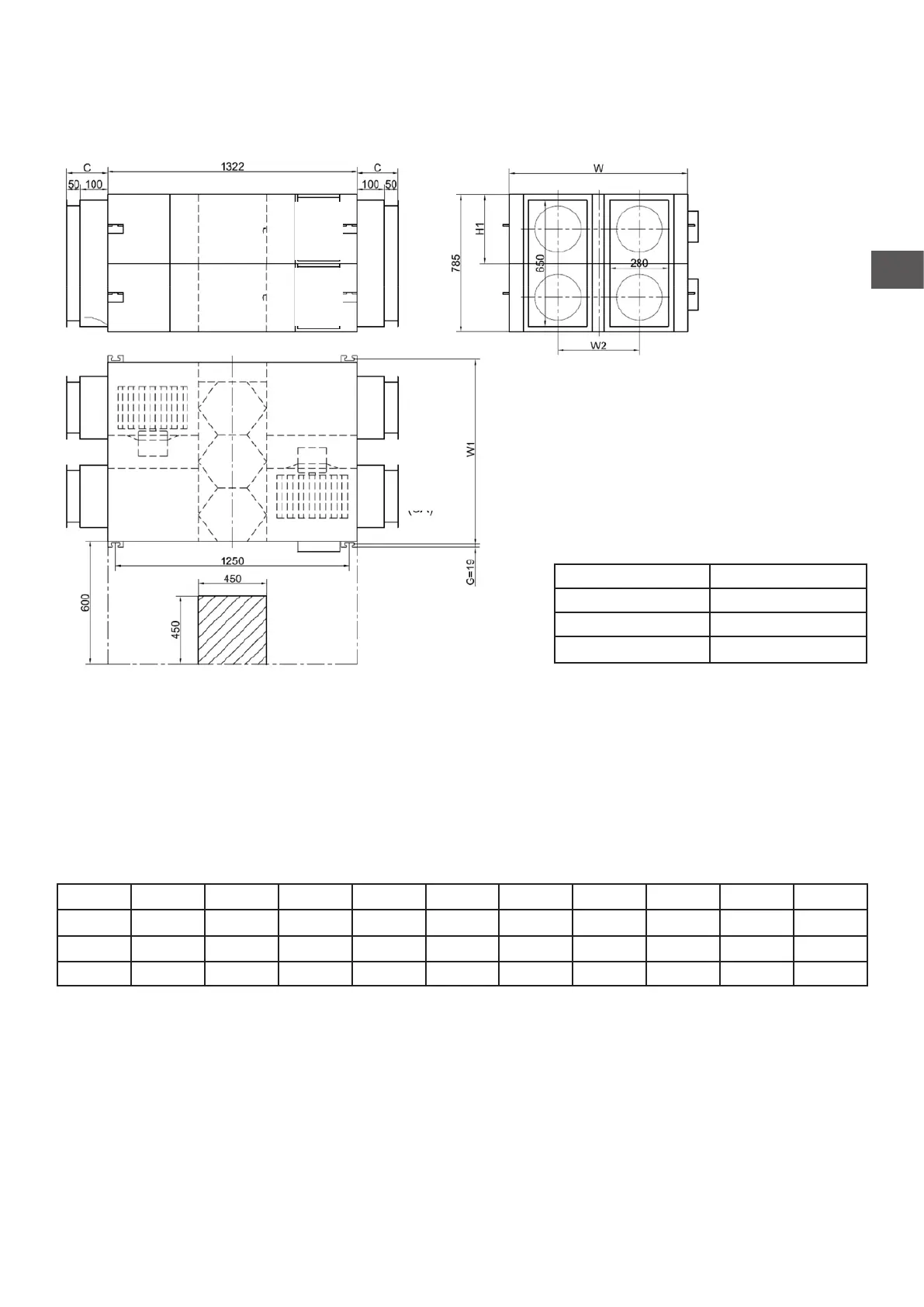
ERV2000 MODEL
Model Dia. (mm)
ERV500 ø 200
ERV1000 ø 250
ERV2000 280*650
DIMENSIUNI CONSTRUCTIVE
In tabelul de mai jos sunt prezentate dimensiunile pentru ecare unitate. Tabelul de mai jos prezintă dimen-
siunile imaginii de mai sus şi cele două imagini anterioare, litera din tabel reprezintă litera din diagramă.
Model L L1 W W1 W2 H H1 C G N
ERV500 962 890 904 960 500 270 111 107 19
ø 194
ERV1000 1322 1250 1134 1190 678 388 170 85 19
ø 242
ERV2000 1322 1250 1134 1190 678 785 170 150 19 280*650
Uşă de
acces
Uşă de
acces
Capac
tablou
electric
Capac
tablou
electric
Aspiratie
aer
Introdu-
cere aer

Related product manuals