EasyManua.ls Logo

Mark ERV500 - Page 36

Mark ERV500
160 pages
Print Icon
To Next Page IconTo Next Page
To Next Page IconTo Next Page
To Previous Page IconTo Previous Page
To Previous Page IconTo Previous Page
Loading...
36
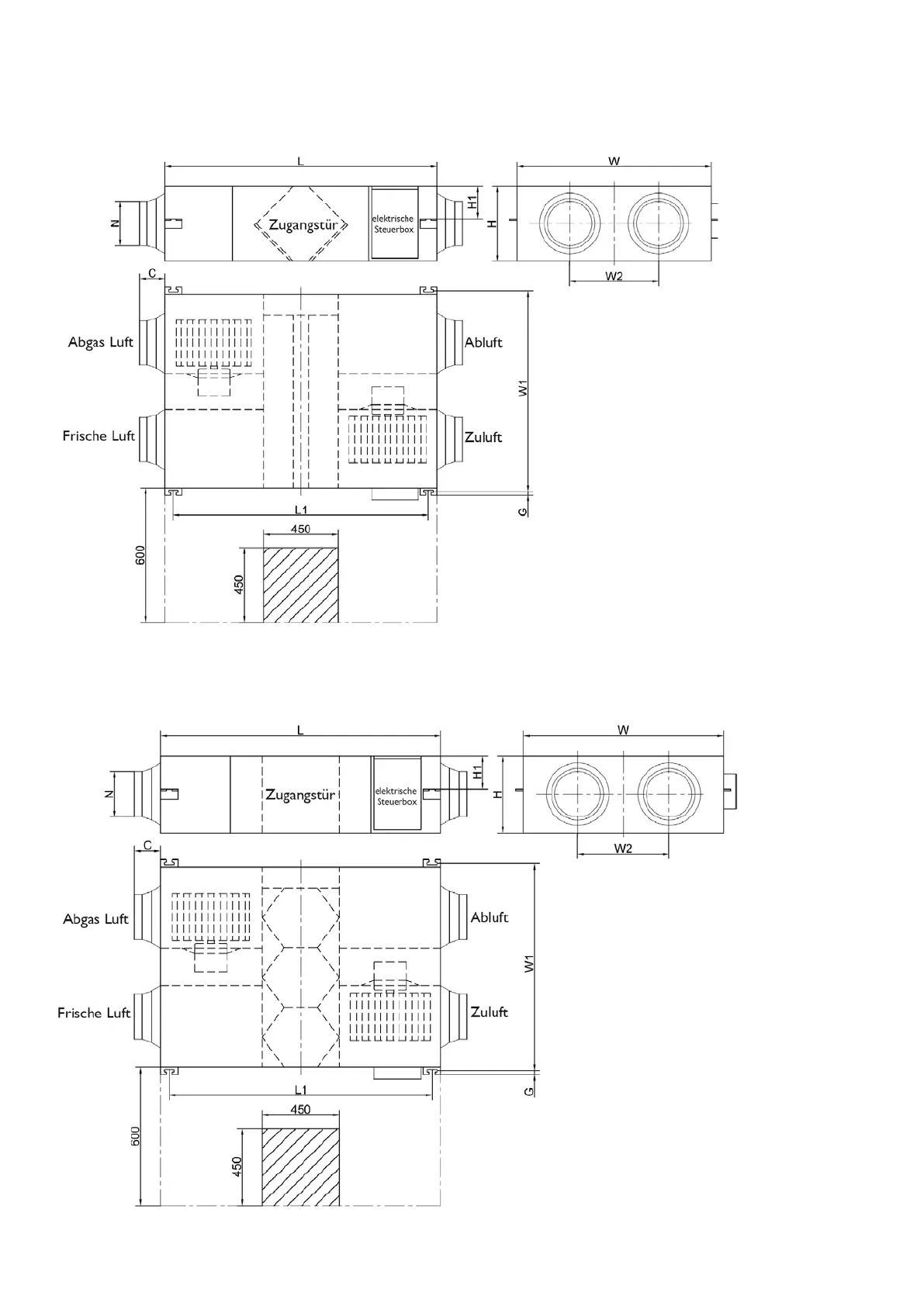
MASSZEICHNUNGEN
ERV1000 MODEL
ERV500 MODEL

Related product manuals