EasyManua.ls Logo

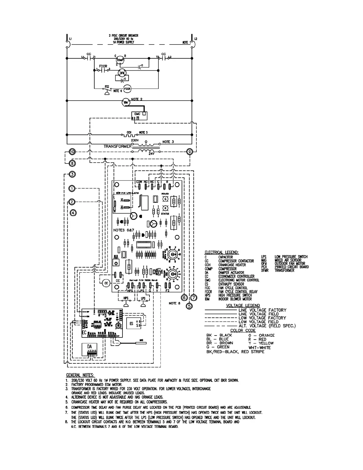
Marvair MAA1018A - Figure 1 B. Typical Electrical Schematic - Model MAA

Marvair MAA1018A
54 pages
Print Icon
To Next Page IconTo Next Page
To Next Page IconTo Next Page
To Previous Page IconTo Previous Page
To Previous Page IconTo Previous Page
Loading...
Marvair MAA/MGA Wall Mount AC Installation & Operation Manual
12/2021 Rev.16
13
Figure 1b. Typical Electrical Schematic - (Economizer) Model MAA

Table of Contents

Related product manuals