EasyManua.ls Logo

Marvair MAA1018A - Table 8 Minimum Clearances; Table 9 Voltage Limitations

Marvair MAA1018A
54 pages
Print Icon
To Next Page IconTo Next Page
To Next Page IconTo Next Page
To Previous Page IconTo Previous Page
To Previous Page IconTo Previous Page
Loading...
Marvair MAA/MGA Wall Mount AC Installation & Operation Manual
12/2021 Rev.16
33
the heater element. This includes proper supply duct sizing, sufcient quantity of supply registers,
and adequate return and lter areas. Duct work must be of correct material and must be properly
insulated. Duct work must be constructed of galvanized steel with a minimum thickness of .019
inches. Duct work must be rmly attached, secured, and sealed to prevent air leakage. See section
2.4 for additional duct work requirements.
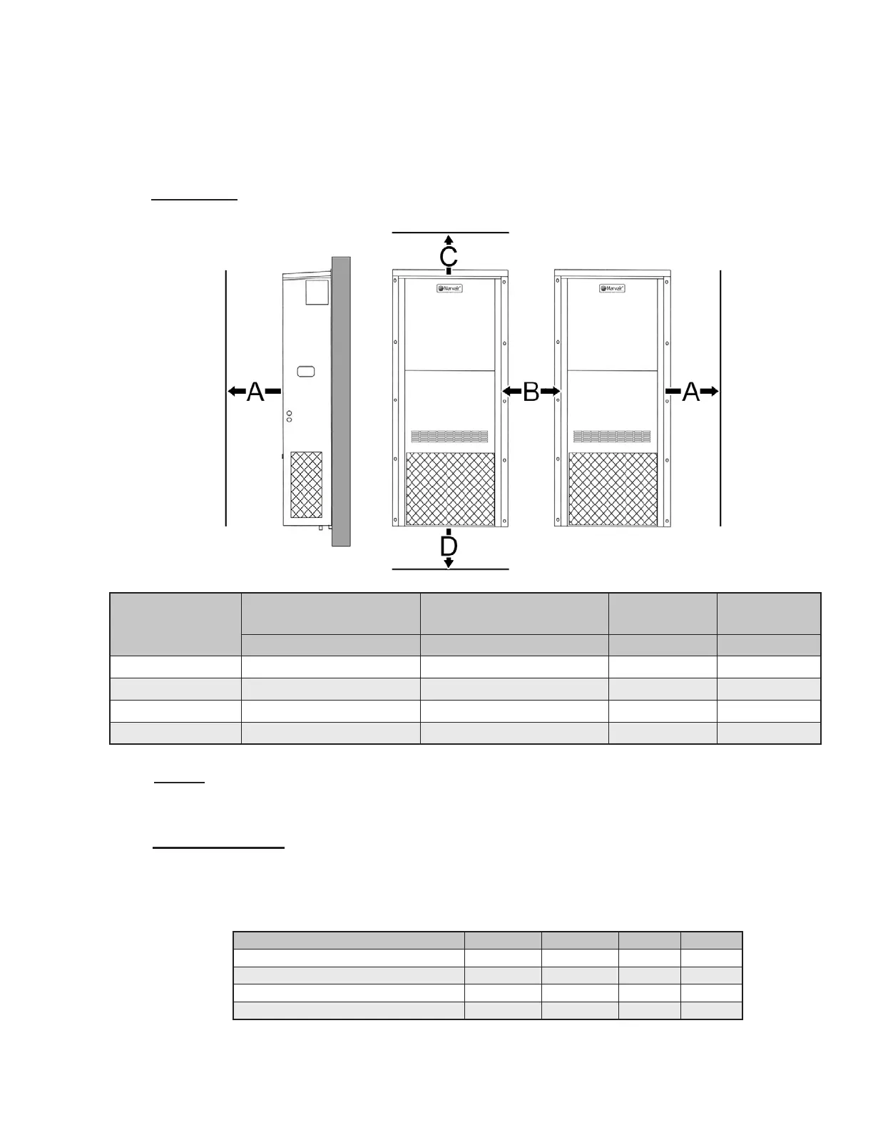
5. Clearances:
Note the minimum clearances required for proper operation and service.
MODEL
MIN. CLEARANCE AROUND
SIDES (SINGLE UNIT)
MIN. CLEARANCE BETWEEN
UNITS (TWO UNITS)
MIN. SPACE
ABOVE UNIT
MIN. SPACE
BELOW UNIT
A B C D
1018/1020/1024 30 inches (76 cm) 18 inches (46 cm) 24 inches (61 cm) 6 inches (15 cm)
1030/1036 30 inches (76 cm) 18 inches (46 cm) 24 inches (61 cm) 6 inches (15 cm)
1042/1048/1060/2060 30 inches (76 cm) 30 inches (76 cm) 24 inches (61 cm) 6 inches (15 cm)
1072/2072 30 inches (76 cm) 30 inches (76 cm) 12 inches (31 cm) 6 inches (15 cm)
Table 8. Minimum Clearances
6. Codes:
Make sure your installation conforms to all applicable electrical, plumbing, building, and municipal
codes. Some codes may limit installation to single story structures.
7. Electrical Supply:
The power supply must have the appropriate voltage, phase, and ampacity for the model selected.
Voltage must be maintained above minimum specied values listed below. Refer to the data sticker
on the unit for ampacity requirements.
Electrical Rating Designations* A C D Z
Nominal Voltage 208/230 208/230 460 575
Phase 1 3 3 3
Minimum Voltage 197 197 414 518
Maximum Voltage 253 253 506 632
* Letters refer to model number code designations. Refer to page 5.
Table 9. Voltage Limitations

Table of Contents

Related product manuals