EasyManua.ls Logo

Master Bilt IHC-48 - Ihc-27 Wiring Diagram

Master Bilt IHC-48
13 pages
Print Icon
To Next Page IconTo Next Page
To Next Page IconTo Next Page
To Previous Page IconTo Previous Page
To Previous Page IconTo Previous Page
Loading...
3/20 Rev. A 57-02699
12
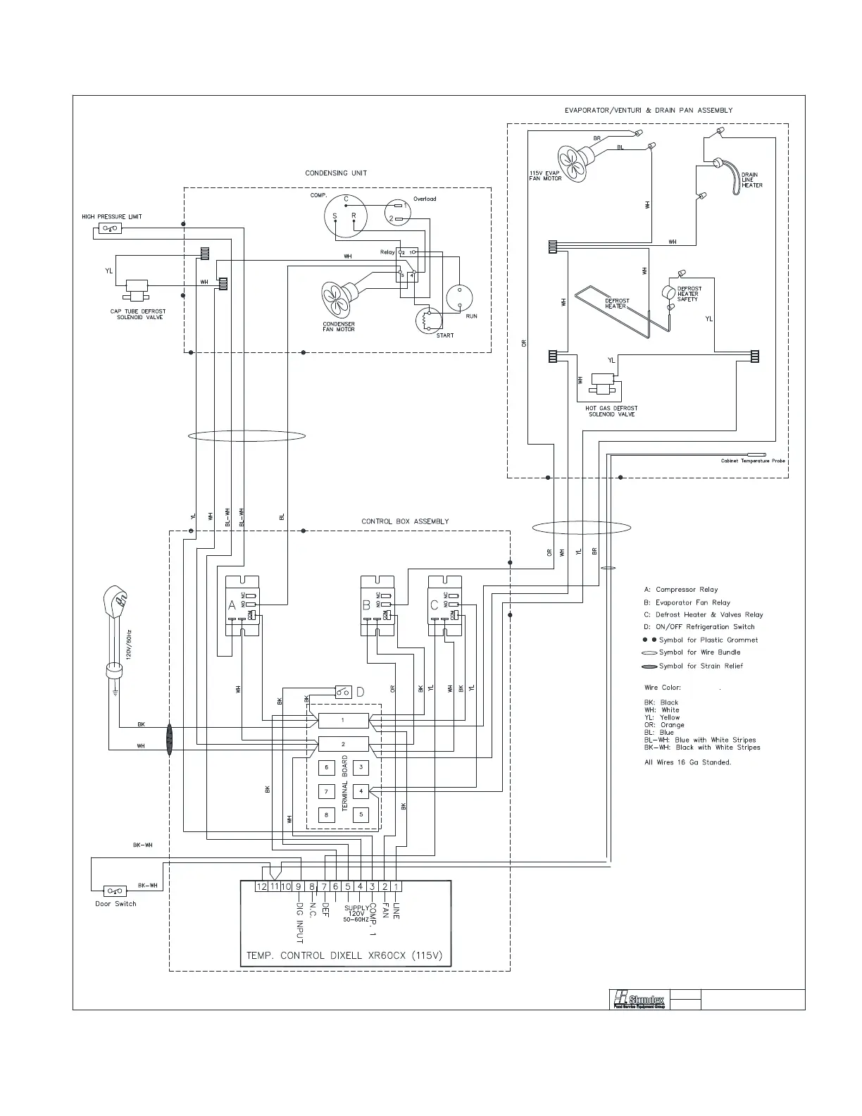
IHC-27 Electrical Diagrams
DATE
MODEL(S)PART NO.
IHC-27-R290
67-0697
03/19/20

Related product manuals