EasyManua.ls Logo

MAXA i-32V504 - Condensation Discharge System; Filling the System

MAXA i-32V504
48 pages
Print Icon
To Next Page IconTo Next Page
To Next Page IconTo Next Page
To Previous Page IconTo Previous Page
To Previous Page IconTo Previous Page
Loading...
i-32V5 Air/Water heat pumps wih axial fans
20
Handbook
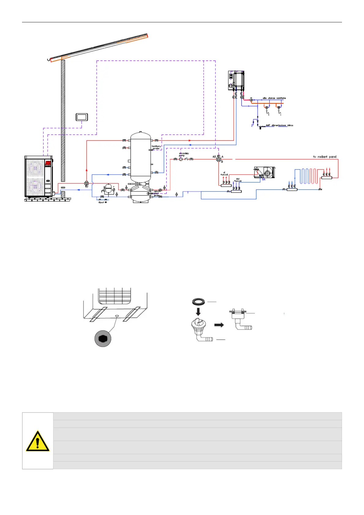
If you need more informaon about the possible conguraons, there is a handbook which is a technical notebook including a series of system
diagrams that have been highlighted regarding the installaon conguraon of our high eciency heat pumps. The Handbook is also intended
to show the symbiosis potenal with some of our elements found in the catalogue.
Consult the technical notebook at our headquarters.

All units are built in such a way that the base of the unit acts as a condensate drip tray. A plasc ng is standard supplied to be connected below
the base in the specic slot in order to connect a pipe which channels the condensate.
Hole in bottom panel of
outdoor unit
Gasket
Drain tting
Gasket
Each unit is therefore ed with a hole on the base of the hydronic kit (on the coil side) to drain condensaon which could drip from the pipes
of the plumbing system. Since these pipes are well insulated, a minimum amount of condensaon is produced anyway and therefore it is not
mandatory to connect a drain pipe to this ng.

UNDER THE UNIT WITHOUT DAMAGING IT BY FREEZING.











Table of Contents

Other manuals for MAXA i-32V504

Related product manuals