EasyManua.ls Logo

Maxx Ice MIM75 - Normal Sounds

Maxx Ice MIM75
35 pages
Print Icon
To Next Page IconTo Next Page
To Next Page IconTo Next Page
To Previous Page IconTo Previous Page
To Previous Page IconTo Previous Page
Loading...
17
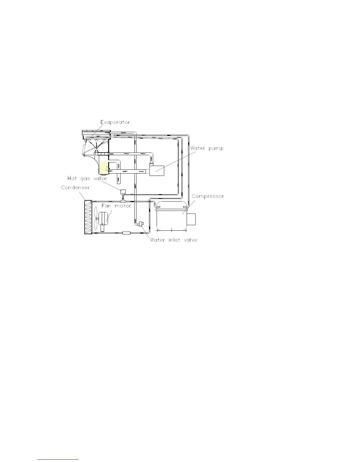
hot gas valve and water inlet valve open to warm up the freezing surface, allowing
the cubes to fall into the bin. Once completed, the freeze cycle begins repeatedly
until the ice has satisfied the maximum level in the bin, then the water and
compressor are shut down until sufficient ice is drawn below the bin level sensor
and the cycle again resumes.
How the machine uses water
The ice maker begins
with a fixed charge of
water that is contained
in the water bin. As
the water is sprayed
against the freezing
evaporator surface,
the portion of water
that does not contain
mineral impurities
will freeze and stick
to the ice cube molds.
The water containing
impurities falls back into the water bin. Gradually, during the freezing portion of
the ice-making cycle, the water in the water bin will become highly concentrated
with mineral impurities.
During the harvest cycle, the fresh water flows into the machine to dilute the bin
water, and to rinse the concentrated minerals down the drain.
Normal Sounds
Your new ice maker may make sounds that are not familiar to you. Most of the
new sounds are normal. Hard surfaces like the floor, walls and cabinets can make
the sounds seem louder than they actually are. The following describes the kinds
of sounds that might be new to you and what may be making them.
You will hear a swooshing sound when the water valve opens to fill the water
bin for each cycle.
Rattling noises may come from the flow of the refrigerant or the water line.
Items stored on top of the ice maker can also make noises.

Related product manuals