EasyManua.ls Logo

McQuay AGS 210CS/H - Page 52

McQuay AGS 210CS/H
88 pages
Print Icon
To Next Page IconTo Next Page
To Next Page IconTo Next Page
To Previous Page IconTo Previous Page
To Previous Page IconTo Previous Page
Loading...
52
IMM AGS-2
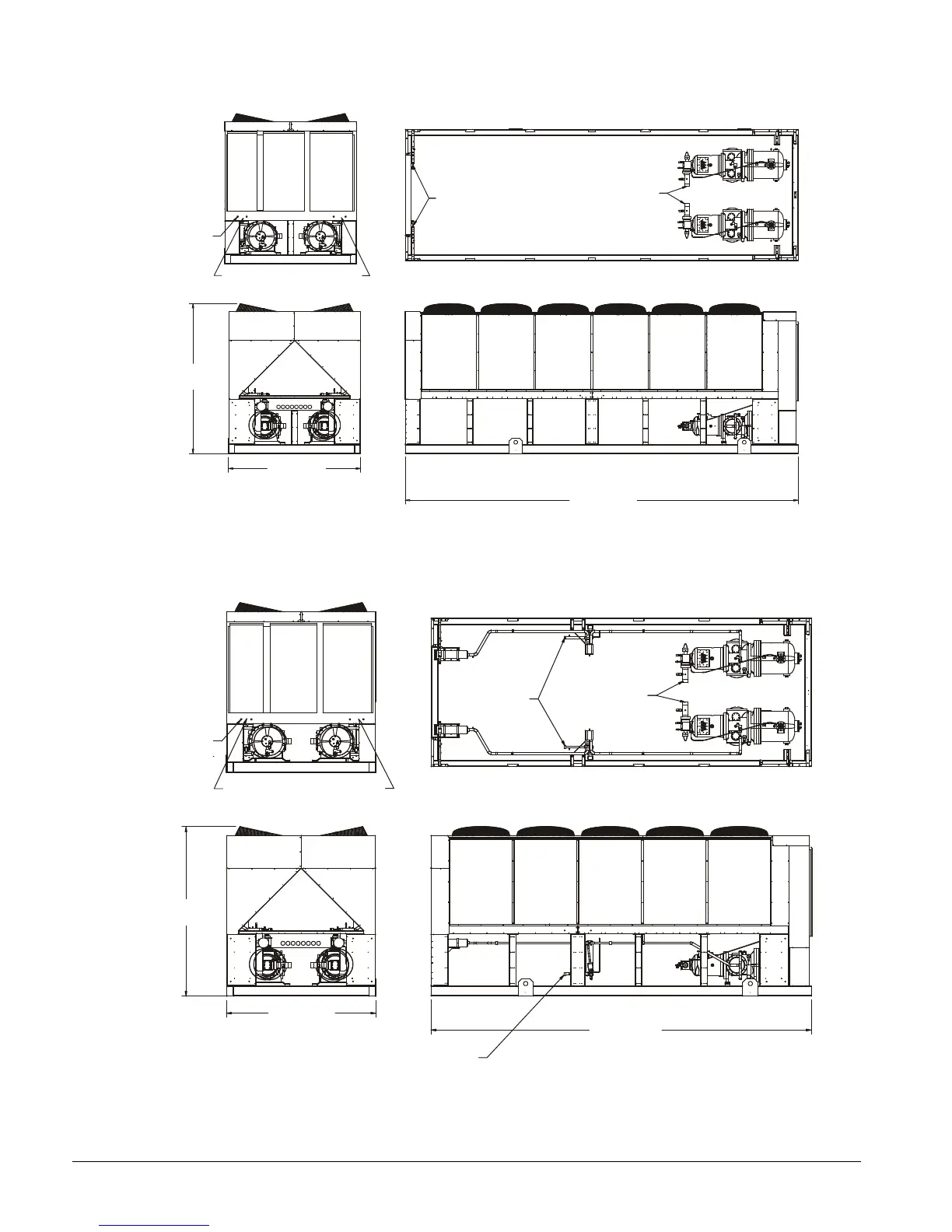
Figure 29, AGS 165CM/B – AGS 175CM/B (with Remote Evaporator)
0.875
KNOCK OUT
( QTY 4 TOTAL)
330712801D030A
AGS-C-165-175
263.0 (6680.2)
SUCTION
CONNECTION
(3.12 O.D.)
(2) POWER
ENTRY
FIELD CONTROL
(2) CONNECTIONS
100.4
(2550.2)
88.5 (2247.9)
LIQUID
CONNECTION
( 1.38 O.D.)
Figure 30, AGS 180CM/B - AGS 190CM/B (with Remote Evaporator)
0.875
KNOCK OUT
( QTY 4 TOTAL)
330712801D020C
AGS-C-180-190
224.8 (5709.9)
LIQUID CONNECTIONS
LIQUID
CONNECTION
( 1.38 O.D.)
SUCTION
CONNECTION
(3.62 O.D.)
(2) POWER
ENTRY
FIELD CONTROL
(2) CONNECTIONS
100.4
(2550.2)
88.5 (2247.9)

Related product manuals