EasyManua.ls Logo

McQuay AGZ 030A - Page 23

McQuay AGZ 030A
88 pages
Print Icon
To Next Page IconTo Next Page
To Next Page IconTo Next Page
To Previous Page IconTo Previous Page
To Previous Page IconTo Previous Page
Loading...
,20  $*= $ WKURXJK $

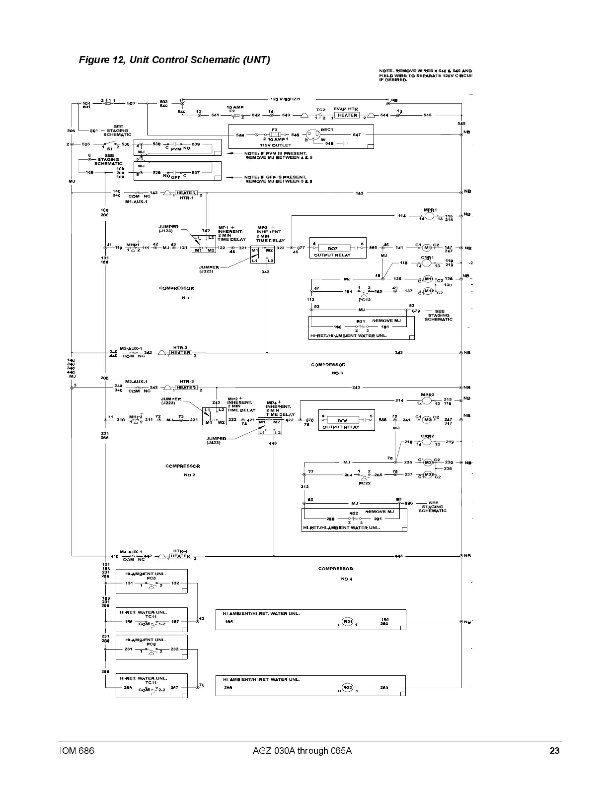
)LJXUH 
8QLW &RQWURO 6FKHPDWLF 817

Table of Contents

Related product manuals