EasyManua.ls Logo

McQuay AGZ 035A - Page 19

McQuay AGZ 035A
96 pages
To Next Page IconTo Next Page
To Next Page IconTo Next Page
To Previous Page IconTo Previous Page
To Previous Page IconTo Previous Page
Loading...
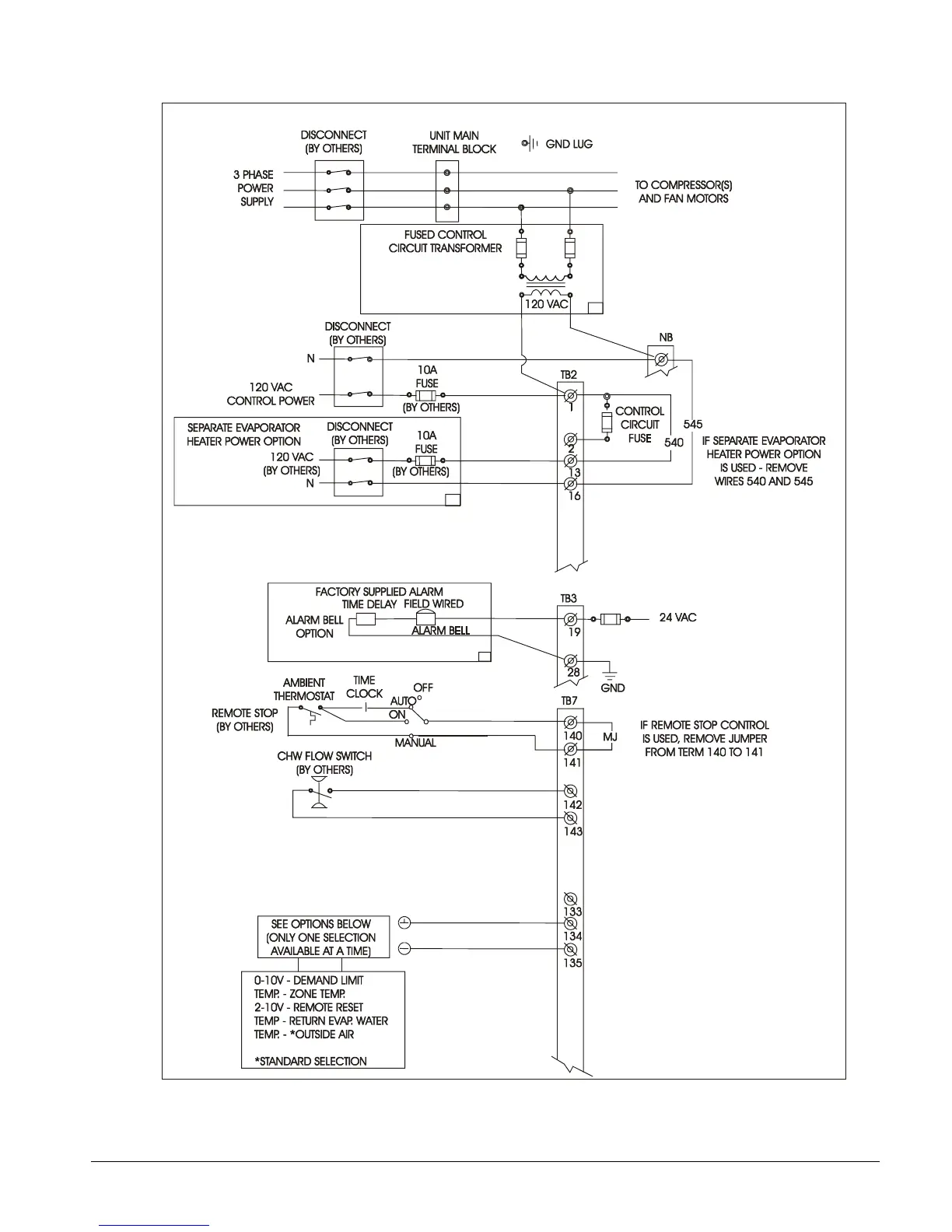
IOMM AGZ-3 AGZ 035A through 065A 19
Figure 9, Typical Field Wiring with Global UNT Controller

Related product manuals