EasyManua.ls Logo

McQuay M5LCY15FR - Schema DI Installazione; Installazione Dellunità Esterna

McQuay M5LCY15FR
120 pages
To Next Page IconTo Next Page
To Next Page IconTo Next Page
To Previous Page IconTo Previous Page
To Previous Page IconTo Previous Page
Loading...
hs
i
l
g
nE
Italiano
2-5
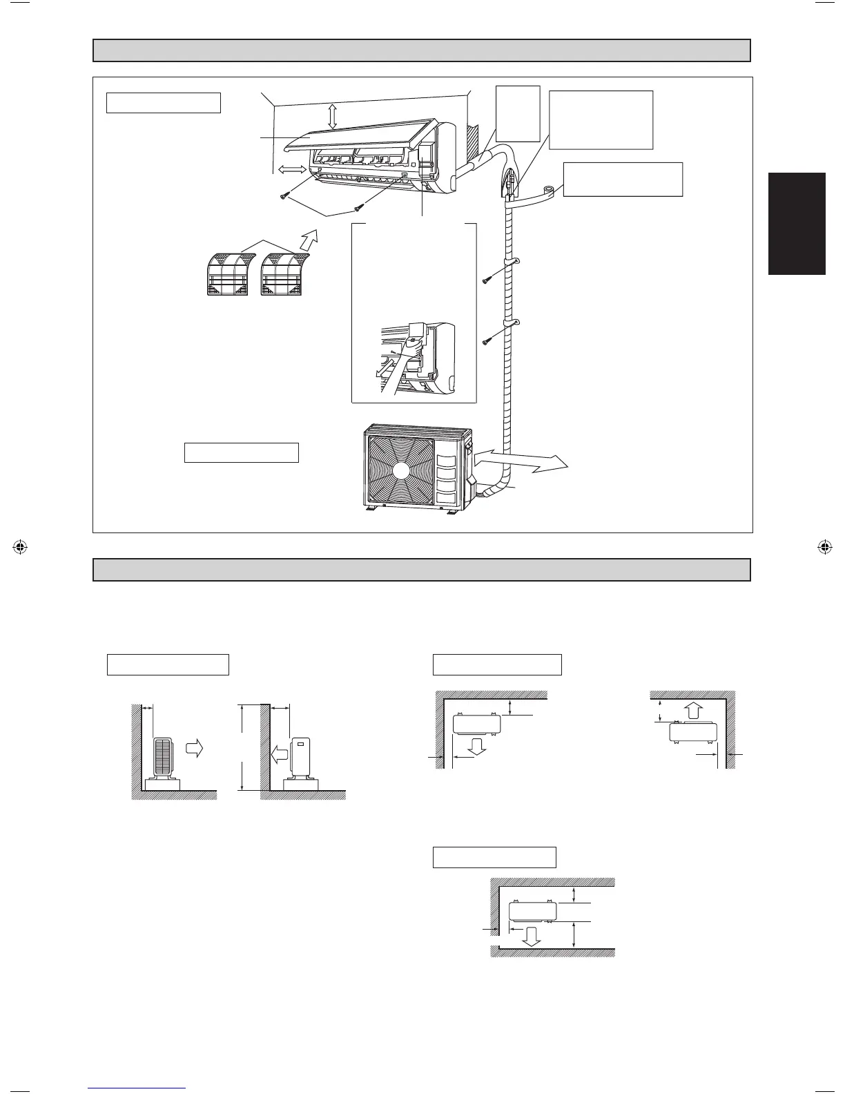
SCHEMA DI INSTALLAZIONE
Unità Interna
30mm o più dal soffi tto
Pannello anteriore
50mm o più dalle pareti (su
entrambi i lati)
Filtri d’aria
Unità Esterna
Stuccare
lo spazio
del foro del
tubo con
stucco da
legno.
Tagliare il tubo di isolamento
termico a una lunghezza
appropriata e avvolgerlo con
nastro, accertandosi che non ci
siano buchi nella linea di taglio
del tubo di isolamento.
Avvolgere il tubo di isolamento da
cima a fondo con nastro di fi nitura.
250mm dalla parete
M4 X 12L
Sportellino di manutenzione
Apertura del coperchio di servizio
Il coperchio di servizio può
essere aperto/chiuso.
Metodo di apertura
1) Rimuovere le viti del
coperchio di servizio.
2) Estrarre il coperchio di
accesso per assistenza tecnica
spostandolo verso il basso e in
diagonale, nella direzione della
freccia.
3) Tirare verso il basso.
INSTALLAZIONE DELL’UNITÀ ESTERNA
Nei casi in cui una parete o un altro ostacolo impedissero il passaggio del fl usso d’aria in ingresso o in uscita dall’unità esterna,
seguire le seguenti istruzioni di installazione.
Per ognuno degli schemi di installazione seguenti, l’altezza massima del lato di uscita deve essere pari a 1200mm.
Parete su un lato Parete sui due lati
Più di 50 Più di 100
Vista laterale
Più di 50
Più di 100
Più di 150
Più di 50
Vista dall’alto
Parete sui tre lati
Più di 150
Più di 300
Più di 50
Vista dall’alto
unità: mm
Massimo
1.200
McQuay IM-WMJ-0111(0)_IT.indd 5McQuay IM-WMJ-0111(0)_IT.indd 5 1/12/2011 12:41:21 PM1/12/2011 12:41:21 PM

Table of Contents

Related product manuals