EasyManua.ls Logo

McQuay M5LCY15FR - Installation des Aussengerätes

McQuay M5LCY15FR
120 pages
To Next Page IconTo Next Page
To Next Page IconTo Next Page
To Previous Page IconTo Previous Page
To Previous Page IconTo Previous Page
Loading...
3-5
h
s
i
l
g
nE
Deutsch
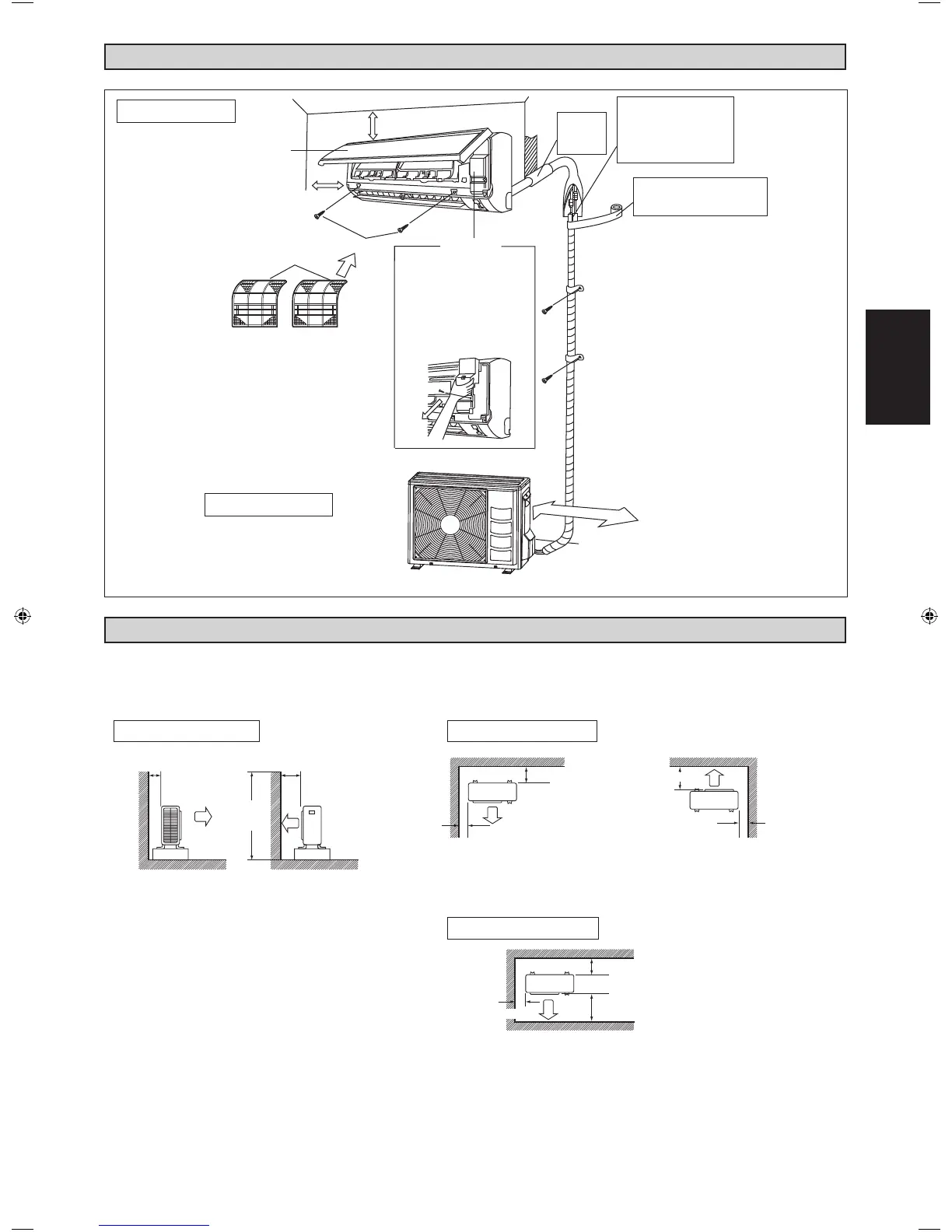
INSTALLATIONSDIAGRAMM
.
INSTALLATION DES AUSSENGERÄTES
• Befolgen Sie die nachfolgend aufgeführten Installationshinweise, wenn sich eine Wand oder ein anderes Hindernis im Zu- oder
Abluftstrom des Außengeräts befi ndet.
• Bei allen unten dargestellten Installationsmustern darf die Wandhöhe auf der Abluftseite höchstens 1.200 mm betragen.
Mehr als 50 Mehr als 50
Mehr als 150
Mehr als
100
Mehr als 50 Mehr als 100
Seitenansicht
1.200 oder
weniger
Wand an einer Seite Wand an zwei Seiten
Draufsicht
Draufsicht
einheit: mm
Mehr als 150
Mehr als 300
Mehr als 50
Wände an drei Seiten
Innen-Gerät
30mm oder mehr von der Decke
Vorderseite
50mm oder mehr von der
Wand (auf beiden Seiten)
Luftfi lter
Außen-Gerät
Das Rohrloch
mit Kitt
abdichten.
Wärmeisolierung auf eine
angemessene Länge
zuschneiden und mit Band
umwickeln.
Hierbei sicherstellen, daß am
Schnitt der Wärmeisolierung kein
Spalt verbleibt.
Die Wärmeisolierung von unten nach
oben mit Verkleidungsband umwickeln.
Wartungsdeckel
• Öffnen des Wartungsdeckels
Der Wartungsdeckel ist vom Typ
offen/geschlossen.
Vorgehensweise zum Öffnen
1) Entfernen Sie die Schrauben
des Wartungsdeckels.
2) Ziehen Sie den
Wartungsdeckel in Pfeilrichtung
diagonal nach unten heraus.
3) Nach unten ziehen.
250mm dalla parete
M4 X 12L
McQuay IM-5WMYJ-1110(0)_DE.indd Sec1:5McQuay IM-5WMYJ-1110(0)_DE.indd Sec1:5 1/12/2011 1:57:22 PM1/12/2011 1:57:22 PM

Table of Contents

Related product manuals