EasyManua.ls Logo

McQuay RCM20D - Electrical Wiring Connection

McQuay RCM20D
16 pages
Print Icon
To Next Page IconTo Next Page
To Next Page IconTo Next Page
To Previous Page IconTo Previous Page
To Previous Page IconTo Previous Page
Loading...
1-9
English
ELECTRICAL WIRING CONNECTION
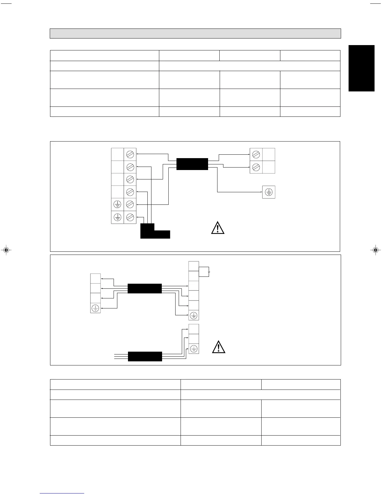
ELECTRICAL WIRING CONNECTION FOR CE 20D/25D/30D
IMPORTANT: These values are for information only, they should be checked and selected to comply with the local and/or
national codes and regulations. They are also subjected to the type of installation and size of
conductors used.
Model 40D 50D
Voltage range 380V – 415V/3Ph/50Hz + !
Power Supply Cable size mm
2
2.5 2.5
Number of conductors 55
Interconnection Cable size mm
2
1.5 1.5
Number of conductors 44
Recommended fuse A 15 20
ELECTRICAL WIRING CONNECTION FOR CE 40D/50D
The electrical power must be provided with
protection devices (circuit breaker or fuse)
with double pole separation system (phase +
neutral) with minimum contact gap of 3mm.
TERMINAL STRIP
INDOOR UNIT
INTERCONNECTION
CABLE
TERMINAL STRIP
OUTDOOR UNIT
COMP
L
N
N
COMP
N
Model 20D 25D 30D
Voltage range 220V – 240V/1Ph/50Hz + !
Power Supply Cable size mm
2
2.5 2.5 4
Number of conductors 333
Interconnection Cable size mm
2
2.5 2.5 2.5
Number of conductors 334
Recommended fuse A 16 20 25
CE20D/25D
L
N
COMP
L
N
COMP
S
R
L
N
TERMINAL
STRIP
INDOOR
UNIT
INTERCONNECTION CABLE
CAPACITOR
TERMINAL
STRIP
OUTDOOR
UNIT
The electrical power must be provided with
protection devices (circuit breaker or fuse)
with double pole separation system (phase +
neutral) with minimum contact gap of 3mm.
POWER SUPPLY
CABLE
IMPORTANT: These values are for information only, they should be checked and selected to comply with the local
and/or national codes and regulations. They are also subjected to the type of installation and size of con-
ductors used.
CE30D
POWER SUPPLY
CABLE
CED1099 (01~09/E) 2/1/01, 3:47 PM9

Related product manuals