EasyManua.ls Logo

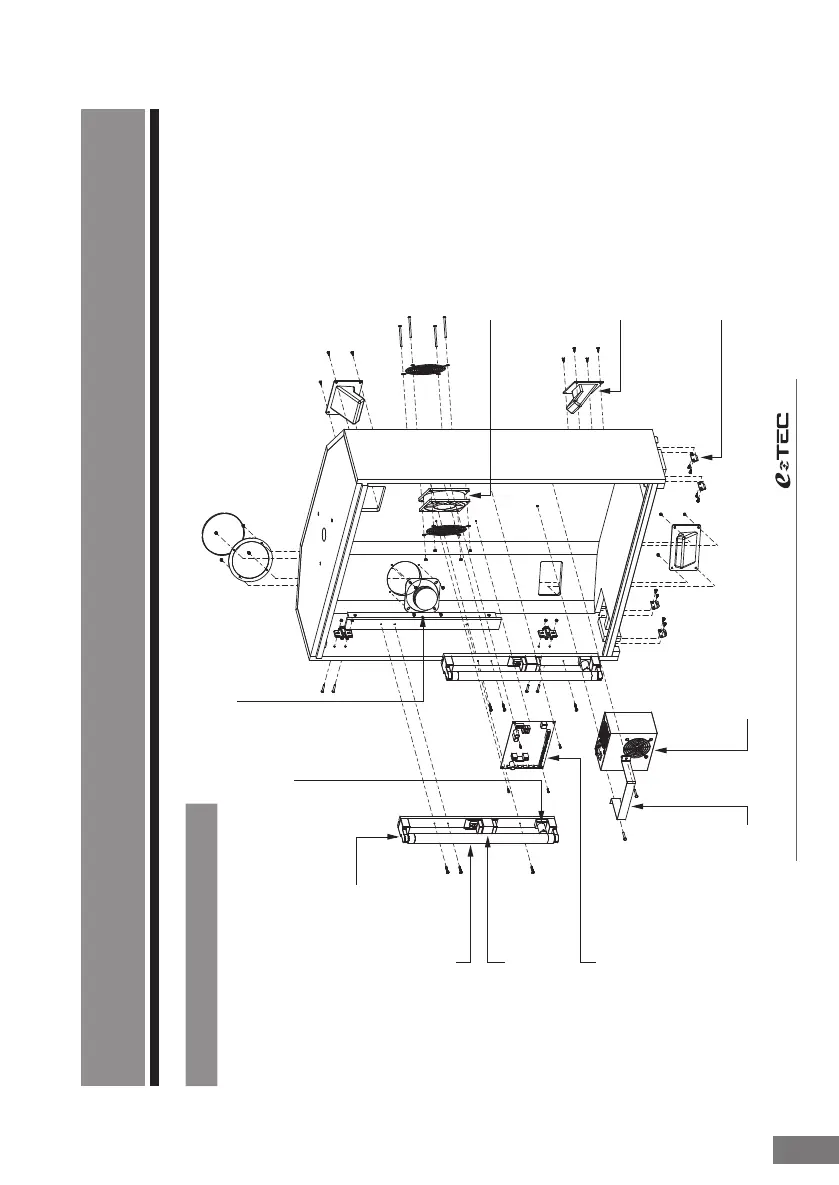
Medalist Spectrum E-Tec - 6 - Technical Information; 6 A. Exploded Drawing

Medalist Spectrum E-Tec
50 pages
Print Icon
To Next Page IconTo Next Page
To Next Page IconTo Next Page
To Previous Page IconTo Previous Page
To Previous Page IconTo Previous Page
Loading...
12
6 - Technical Information
Figure 5.1: Exploded Upper Cabinet (T)
6A. Exploded Drawing
Fluorescent Lamp Assembly
( , PA 0618)Electrical
Ballast-110
( , PA 0620 1)Electrical
Fluorescent Lamp
( , PA 0619)Electrical
I.O.Board
( , PE 0609)Electrical
ATX Power Supply
Hand Cup
( , PA 0121)Cabinet
Fan
( , PE 0612)Electrical
Power Supply Strap
Hook Latch Security
Speaker
( , PA 0626)Electrical
Starter-110
( , PA 0621 1)Electrical
( , PE 0614)Electrical

Table of Contents

Related product manuals